




















Valoisa viidennen (5) kerroksen kulmahuoneisto. Tässä kodissa on vaaleilla pintamateriaaleilla sekä laadukkailla kodinkoneilla varusteltu moderni avokeittiö. Asunnon ikkunat ovat kahteen suuntaan (etelä-itä). Kylpyhuone on tilava ja siellä on mukavasti säilytystilaa, kaunis laatoitus mikä tekee siitä käytännöllisen sekä tyylikkään myös tilavaraus ja liitäntä on pyykinpesukoneelle. Oman saunan löylyistä voit nauttia sinulle sopivaan aikaan. Makuuhuoneet sijoitettu asunnon eri kulmiin ja toisen makuuhuoneen yhteydessä on mukavan kokoinen vaatehuone. Lasitettu parveke antaa lisätilaa aikaisin keväällä pitkälle syksyyn. Lemmikit myös tervetulleita Ilmoituksen kuvat huoneistoa vastaavasta asunnosta. Huomioithan, että näkymät vaihtelevat kerroksien välillä. Kiinnostuitko? Voit vuokrata asunnon verkosta tai täyttämällä asuntohakemuksen. Lisätietoja saat välittäjältä sähköpostitse. Yleisissä vuokraukseen liittyvissä asioissa palvelee asiakaspalvelumme: Puh: 030 609 5555 asuntovuokraus@rettamanagement.fi
| Katuosoite | Matroonankatu 2 A 35 |
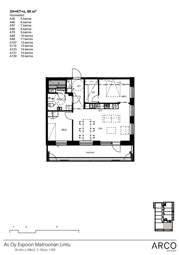
| Pinta-ala | 68 m² |
| Kaupunki | Espoo |
| Kaupunginosa | Finnoo |
| Kerros | 5/17 |
| Kunto | erinomainen |
| Huoneiston vapautuminen | Vapautumassa 01.02.26 |
| Sauna | Kyllä |
| Parvekkeen tiedot | Kyllä, lasitettu, huoneiston levyinen, ilmansuunta: etelä |
| Lemmikit sallittu | Kyllä |
| Muut ehdot | Asukkaan vastuulla ottaa oma kotivakuutus. Vuokralainen tekee oman sähkösopimuksen. |
| Lisätiedot | savuton |
| Keittiön varustelu | liesi, lieden tyyppi: keraaminen liesi, astianpesukone, jää-pakastinkaappi, liesituuletin |
| Kylpyhuoneen varustelu | peilikaappi, pesukoneliitäntä, lattiamateriaali: laatta, seinämateriaali: laatta, lattialämmitys, sähkö, suihkuseinä, allaskaappi |
| Lattiamateriaali | vinyylilankku |
| Huoneistokohtainen varasto | Kyllä, Irtainvarasto |
| Vaatehuone | Kyllä |
| Lisätiedot | Savuton huoneisto |
| Vuokra / kk | 1235 € |
| Vuokravakuus | 350 € / 350 € sopimustyypistä riippuen |
| Sopimuksen tyyppi | Toistaiseksi voimassaoleva tai toistaiseksi voimassaoleva, vuokrasopimus voi päättyä aikaisintaan 12 kuukauden päästä ilman sopimussakkoa |
| Kampanjatieto | 1. kuukauden vuokra 0€, edellyttää 12kk sitoutumista asuntoon. Edun saa uusiin vuokrasopimuksiin jotka alkavat viimeistään 1.3.2026. |
| Vesimaksu | 24 €/hlö/kk |
| Vesimaksun lisätiedot | ennakko 24,00€/hlö/kk, tasaus 2 krt / vuosi |
| Uudiskohde | Kyllä |
| Taloyhtiön nimi | Matroonankatu 2 - Asunto Oy Espoon Matroonan Lintu |
| Rakennuksen tyyppi | ASUINKERROSTALO |
| Rakennusvuosi | 2024 |
| Huoneistojen lukumäärä | 146 |
| Kerroksia | 17 |
| Hissi | Kyllä |
| Energialuokka | A2018 |
| Energiatodistus | Kyllä |
| Autopaikat | Autopaikkoja hallinnoi ulkopuolinen toimija, vuokrattava erikseen |
| Sähköauton latauspiste | Ei. |
| Yhteiset tilat | kerhohuone, ulkoiluvälinevarasto, sauna, pesutupa |
| Lisätiedot | savuton talo, lemmikit sallittu |
Kajsa Pyyhtiä
Vuokrausneuvottelija
kajsa.pyyhtia@rettamanagement.fiRetta Asuntovuokraus, Pääkaupunkiseutu