






2h, kt, s, 47 m²
755 €/kk
Vuokravakuus 0 € / 350 € sopimustyypistä riippuen
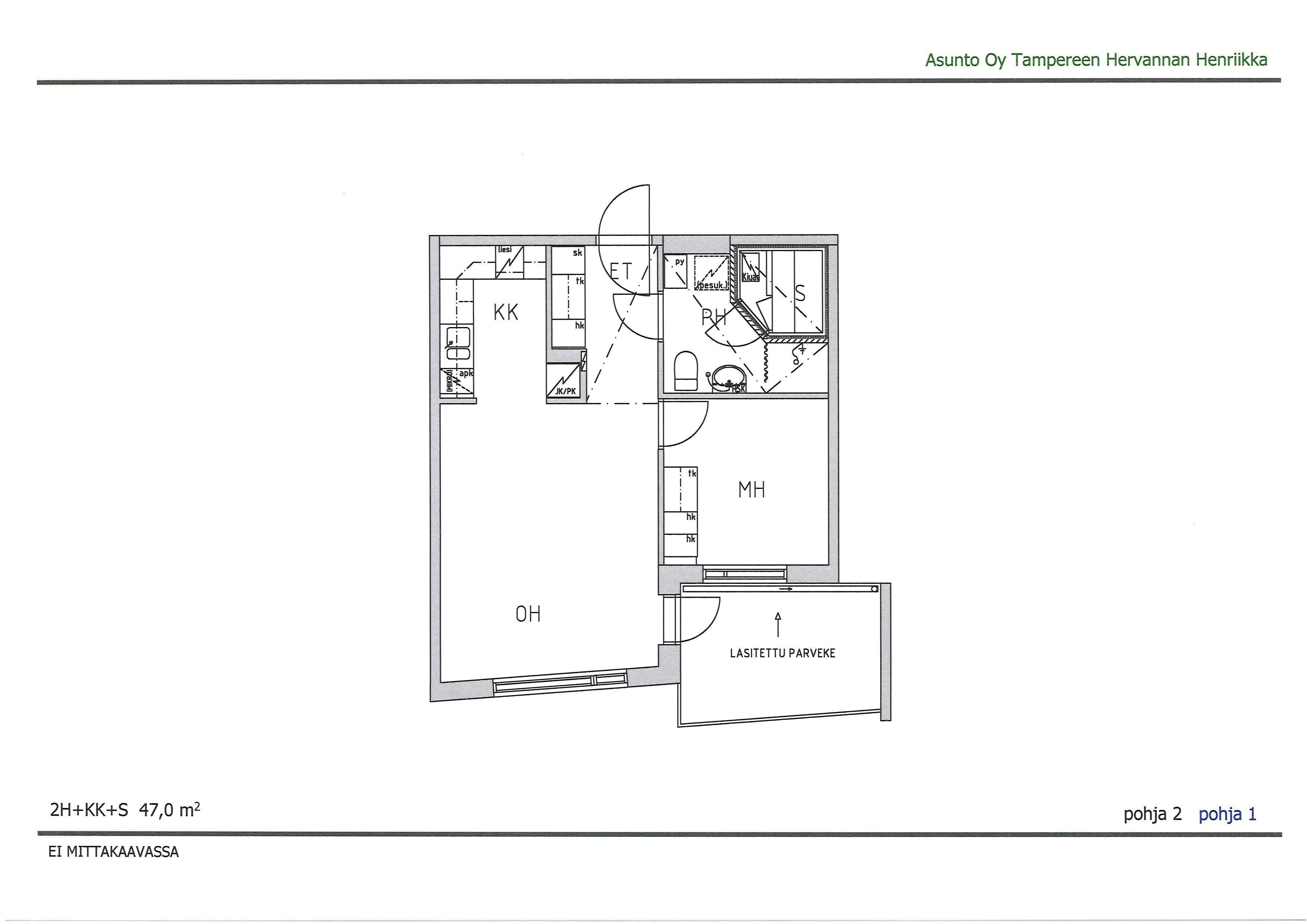
2.2.2026 vapautuva toisen kerroksen kaksio aivan Hervannan keskustasta. Tässä asunnossa kiva avoin pohjakuva, jossa keittiö omassa rauhassaan mutta yhdistyen kuitenkin luontevasti olohuoneeseen tuoden avaruutta asumiseen. Säilytystä helpottamassa eteisen ja makuuhuoneen kaapistot sekä tietenkin irtaimistovarasto. Asumismukavuutta lisäämässä oma sauna ja lasitettu parveke. Täytäthän ensimmäisenä asuntohakemuksen osoitteessa vuokraus.rettamanagement.fi/asunnot. Kiitos! Asunnon voit halutessasi vuokrata myös suoraan verkkokaupastamme.
| Katuosoite | Tamppikuja 1 C 45 |
| Pinta-ala | 47 m² |
| Kaupunki | Tampere |
| Kaupunginosa | Hervanta |
| Kerros | 2/0 |
| Huoneiston vapautuminen | Vapautumassa 02.02.26 |
| Sauna | Kyllä |
| Parvekkeen tiedot | Kyllä, lasitettu |
| Lemmikit sallittu | Kyllä |
| Muut ehdot | Asukkaan vastuulla ottaa oma kotivakuutus. Vuokralainen tekee oman sähkösopimuksen. |
| Lisätiedot | savuton |
| Keittiön varustelu | liesi, lieden tyyppi: keraaminen liesi, jää-pakastinkaappi |
| Kylpyhuoneen varustelu | peilikaappi, pesukoneliitäntä, lattiamateriaali: laatta, seinämateriaali: laatta, lattialämmitys |
| Lattiamateriaali | laminaatti |
| Huoneistokohtainen varasto | Kyllä, irtaimistovarasto |
| Vaatehuone | Ei |
| Vuokra / kk | 755 € |
| Vuokravakuus | 0 € / 350 € sopimustyypistä riippuen |
| Sopimuksen tyyppi | Toistaiseksi voimassaoleva tai toistaiseksi voimassaoleva, vuokrasopimus voi päättyä aikaisintaan 12 kuukauden päästä ilman sopimussakkoa |
| Vesimaksu | 25 €/hlö/kk |
| Uudiskohde | Ei |
| Taloyhtiön nimi | Tamppikuja 1 - Asunto Oy Tampereen Hervannan Henriikka |
| Rakennuksen tyyppi | ASUINKERROSTALO |
| Rakennusvuosi | 2007 |
| Huoneistojen lukumäärä | 64 |
| Kerroksia | 0 |
| Hissi | Kyllä |
| Energialuokka | B 2018 |
| Energiatodistus | Kyllä |
| Antennityyppi | Kaapelitelevisiojärjestelmä |
| Autopaikat | Autopaikkoja hallinnoi ulkopuolinen toimija, vuokrattava erikseen |
| Sähköauton latauspiste | Ei. |
| Yhteiset tilat | ulkoiluvälinevarasto |
| Lisätiedot | lemmikit sallittu |
Hannele Lähteenmäki
Vuokravälittäjä
hannele.lahteenmaki@rettamanagement.fiRetta Asuntovuokraus, Tampere
Puh. 030 609 5555