Asunnossa:

  • Parveke
  • Sauna
  • Laajakaista kuuluu vuokraan
  • Huoneistokohtainen varasto
  • Astianpesukone
  • Lemmikit sallittu

Talossa:

  • Kerroksia 6
  • Hissi
  • Rakennusvuosi 2000
  • Pesutupa

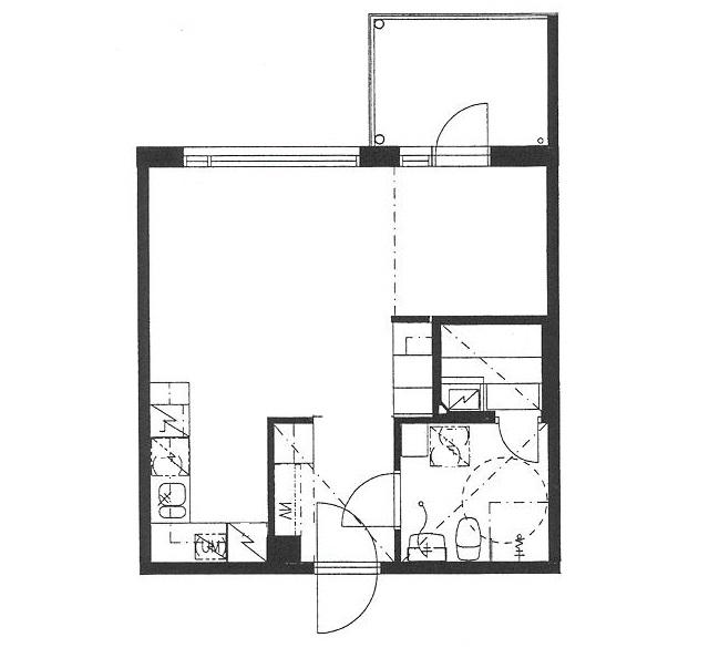
Asunnon kuvaus

Tämä tilava ylimmän kerroksen yksiö omalla saunalla ja parvekkeella löytyy Lutakosta. Alkovi ja keittotila on laitettu vastakkaisiin nurkkiin, mikä rauhoittaa molempia tiloja huoneistoissa ja helpottaa sisustamista. Huoneiston parveke on sisäpihan suuntaan. Asuntoon on asennettu uudet kodinkoneet, laminaattilattia sekä parvekelasitus syksyllä 2024. Jos kiinnostuitte asunnosta, jätättehän hakemuksen osoitteessa https://vuokraus.rettamanagement.fi/asunnot

Asunnon tiedot

KatuosoiteSchaumanin puistotie 15 A 23
Pinta-ala36.5 m²
KaupunkiJyväskylä
KaupunginosaLutakko
Kerros6/6
Kuntohyvä
Huoneiston vapautuminenVapautumassa 02.02.26
SaunaKyllä
Parvekkeen tiedotKyllä, lasitettu
Lemmikit sallittuKyllä
Muut ehdotAsukkaan vastuulla ottaa oma kotivakuutus. Vuokralainen tekee oman sähkösopimuksen.
Lisätiedotsavuton

Asunnon varustelu

Keittiön varusteluliesi, lieden tyyppi: keraaminen liesi, astianpesukone, jää-pakastinkaappi
Kylpyhuoneen varustelupeilikaappi, pesukoneliitäntä, lattiamateriaali: muovimatto, seinämateriaali: laatta
Lattiamateriaalilaminaatti
Huoneistokohtainen varastoKyllä, irtaimistovarasto
VaatehuoneEi

Hinta ja kustannukset

Vuokra / kk670 €
Vuokravakuus250 €
Sopimuksen tyyppiToistaiseksi voimassaoleva
Vesimaksu22 €/hlö/kk

Taloyhtiön tiedot

UudiskohdeEi
Taloyhtiön nimiSchaumanin puistotie 15 - Jyväskylän Schaumanin puistotie 15
Rakennuksen tyyppiASUINKERROSTALO
Rakennusvuosi2000
Huoneistojen lukumäärä51
Kerroksia6
HissiKyllä
EnergialuokkaD2013
EnergiatodistusKyllä
AntennityyppiKaapelitelevisiojärjestelmä
AutopaikatAutopaikkoja hallinnoi ulkopuolinen toimija, vuokrattava erikseen
Sähköauton latauspisteEi.
Yhteiset tilatulkoiluvälinevarasto, pesutupa
Lisätiedotlemmikit sallittu

Sijainti kartalla

Kohdetta välittää:

Carita Alatalo

Vuokravälittäjä

carita.alatalo@rettamanagement.fi

Retta Asuntovuokraus, Jyväskylä