Viihtyisä toisen kerroksen kaksio etsii uusia asukkaita, Asunto sijaitsee luonnonläheisellä alueella Vantaan Kaivokselassa. Asunnon lähettyviltä on hyvät liikenneyhteydet ja ulkoilumaastot. Lähikaupat Lidl Kaivoksela ja S-Market Kaivoksela palvelee kävelyetäisyydellä, sekä kauppakeskus Myyrmannin kattavat palvelut löytyy n. 2km päästä. Asunnossa on toimiva pohjaratkaisu, sekä modernit kaluste- ja materiaalivalinnat. Tämän kodin kruunaa tietysti lasitettu parveke ja oma sauna. Kysy vuokrattavista autopaikoista lisää välittäjältä. Mikäli kiinnostuit asunnosta, täytäthän asuntohakemuksen Rettan sivuilta. Hyväksytyn hakemuksen jälkeen on mahdollista sopia asunnon esittelystä. Hakemus ei sido mihinkään. Yleisissä asunnonhakuun liittyvissä kysymyksissä voitte olla yhteydessä asiakaspalveluumme, p. 030 609 5555.
| Katuosoite | Aapramintie 14 B 32 |
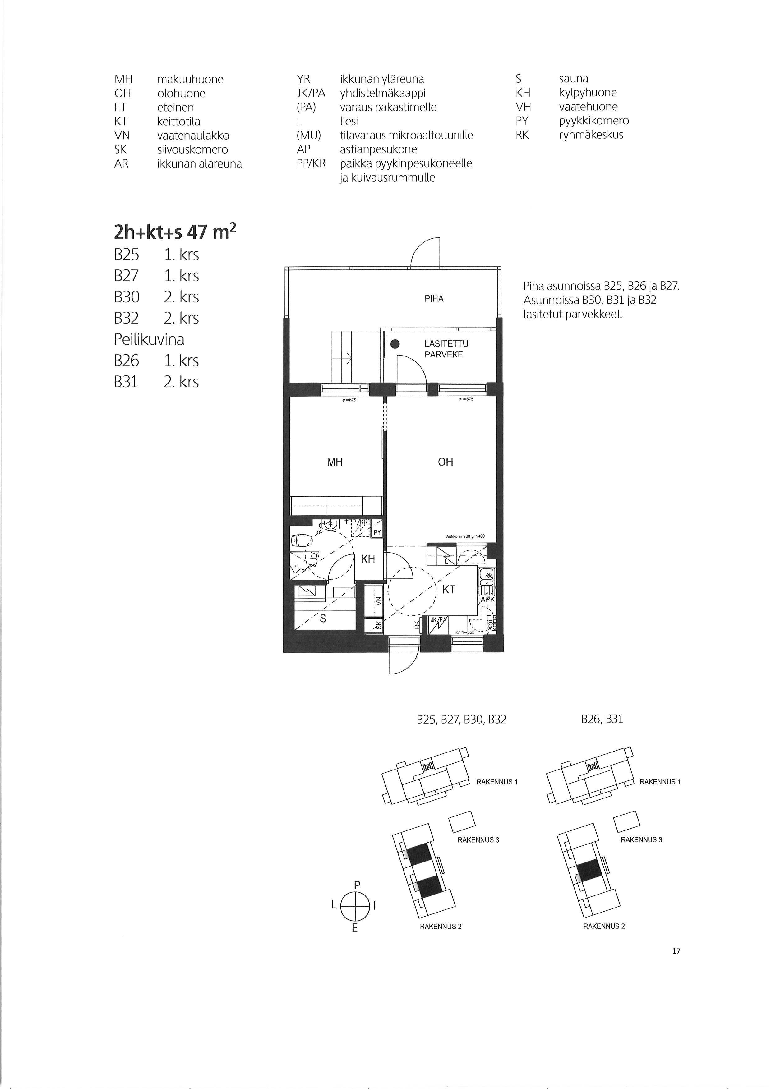
| Pinta-ala | 47 m² |
| Kaupunki | Vantaa |
| Kaupunginosa | Kaivoksela |
| Kerros | 2/4 |
| Huoneiston vapautuminen | Heti vapaa |
| Sauna | Kyllä |
| Parvekkeen tiedot | Kyllä, lasitettu, lasitettu |
| Lemmikit sallittu | Kyllä |
| Muut ehdot | Asukkaan vastuulla ottaa oma kotivakuutus. Vuokralainen tekee oman sähkösopimuksen. |
| Lisätiedot | savuton |
| Keittiön varustelu | liesi, lieden selite: keraaminen keittotaso, kalusteuuni, astianpesukone, jää-pakastinkaappi |
| Kylpyhuoneen varustelu | peilikaappi, pesukoneliitäntä, lattiamateriaali: laatta, seinämateriaali: laatta, lattialämmitys, asunnon sähköön |
| Lattiamateriaali | parketti |
| Huoneistokohtainen varasto | Kyllä, Irtainvarasto |
| Vaatehuone | Ei |
| Vuokra / kk | 894 € |
| Vuokravakuus | 894 € |
| Sopimuksen tyyppi | Toistaiseksi voimassaoleva, vuokrasopimus voi päättyä aikaisintaan 6 kuukauden päästä ilman sopimussakkoa |
| Vesimaksu | 24 €/hlö/kk |
| Uudiskohde | Ei |
| Taloyhtiön nimi | Aapramintie 14 - Asunto Oy Vantaan Vuorikilta |
| Rakennuksen tyyppi | ASUINKERROSTALO |
| Rakennusvuosi | 2015 |
| Huoneistojen lukumäärä | 13 |
| Kerroksia | 4 |
| Hissi | Kyllä |
| Energialuokka | C2013 |
| Energiatodistus | Ei |
| Antennityyppi | Kaapelitelevisiojärjestelmä |
| Autopaikat | Autopaikkoja hallinnoi ulkopuolinen toimija, vuokrattava erikseen |
| Sähköauton latauspiste | Ei. |
| Lisätiedot | lemmikit sallittu |
Sonja Gupta
Vuokrausneuvottelija
Puh. +358444946420
sonja.gupta@rettamanagement.fiRetta Asuntovuokraus, Pääkaupunkiseutu