










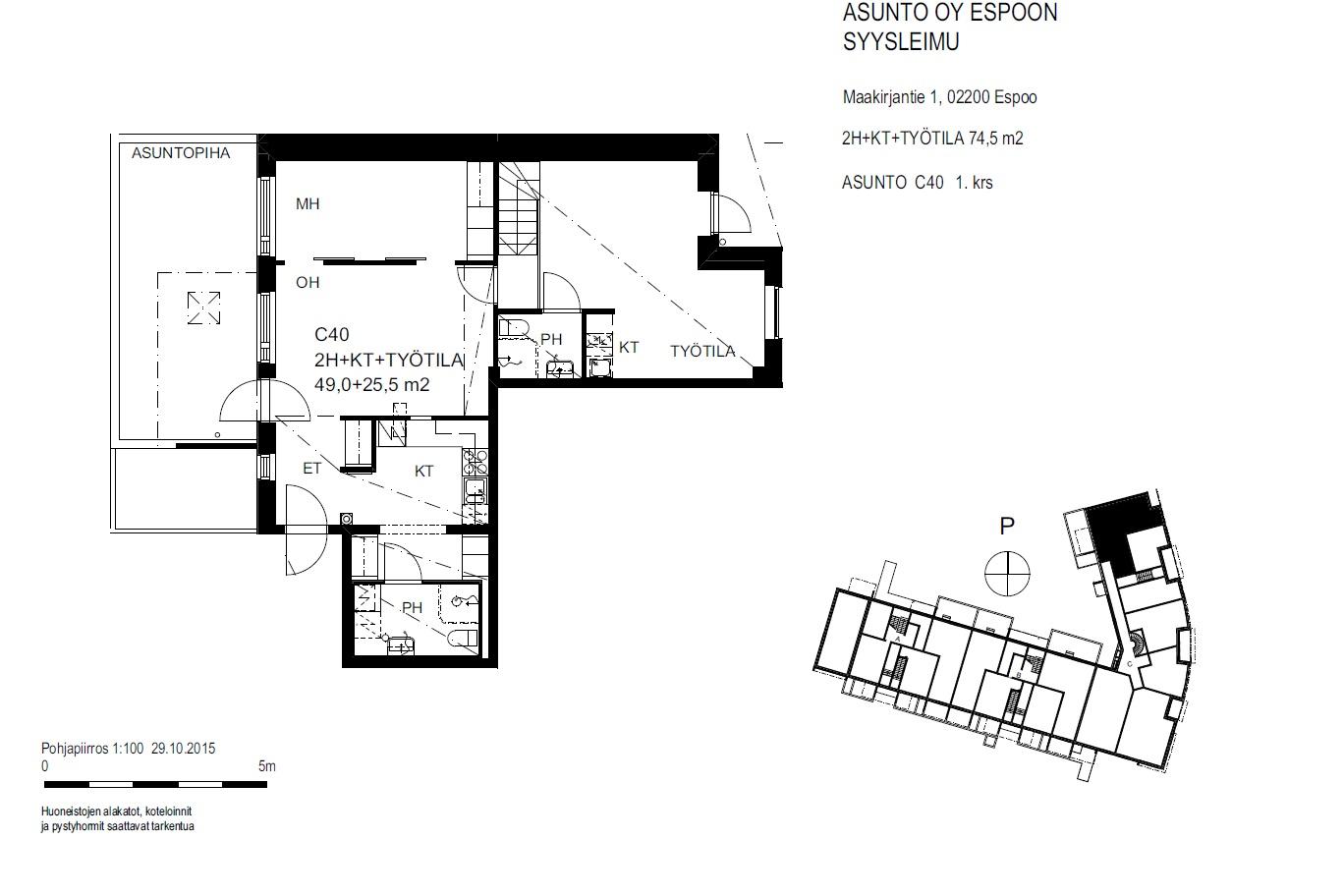
Avara kahden kerroksen maatason koti, joka tarjoaa monipuoliset tilat niin asumiseen tai vaikkapa työskentelyyn alakerran omalla sisäänkäynnillä varustetulla huone ( 49m2 + alakerrrassa 25,5m2= 74,5m2). Asunnossa on 2 erillistä laatoitettua kylpyhuonetta, tilavahko asuinpiha, keittiö, jossa astianpesukone, jääkaappi/pakastin, keraaminen liesi. Alakerran huoneessa on laatoitettu kylpyhuone, josta on myös oma sisäänkäynti ulkoa. Kiinnostuitko? Voit vuokrata asunnon suoraan verkkokaupankautta tai täyttämällä asuntohakemuksen. Hakemus ei ole sitova. Ota yhteyttä kohteen välittäjään sähköpostitse etunimi.sukunimi@rettamanagement.fi.
| Katuosoite | Maakirjantie 1 C 40 |
| Pinta-ala | 74.5 m² |
| Kaupunki | Espoo |
| Kaupunginosa | Suurpelto |
| Kerros | 1/5 |
| Huoneiston vapautuminen | Heti vapaa |
| Sauna | Ei |
| Parvekkeen tiedot | Kyllä |
| Lemmikit sallittu | Kyllä |
| Muut ehdot | Asukkaan vastuulla ottaa oma kotivakuutus. Vuokralainen tekee oman sähkösopimuksen. |
| Lisätiedot | kaksi kerrosta, savuton |
| Keittiön varustelu | liesi, lieden tyyppi: keraaminen liesi, astianpesukone, astianpesukoneen leveys: 60cm, jää-pakastinkaappi |
| Kylpyhuoneen varustelu | peilikaappi, pesukoneliitäntä, lattiamateriaali: laatta, seinämateriaali: laatta, lattialämmitys, mukavuuslämmitys |
| Lattiamateriaali | laminaatti |
| Huoneistokohtainen varasto | Kyllä, Irtainvarasto |
| Vaatehuone | Ei |
| Lisätiedot | Savuton huoneisto |
| Vuokra / kk | 1240 € |
| Vuokravakuus | 350 € / 350 € sopimustyypistä riippuen |
| Sopimuksen tyyppi | Toistaiseksi voimassaoleva tai toistaiseksi voimassaoleva, vuokrasopimus voi päättyä aikaisintaan 6 kuukauden päästä ilman sopimussakkoa |
| Kampanjatieto | Jouluksi uuteen kotiin! Säästä 500 € joulukuun vuokrassa. Edun saa uusin vuokrasopimuksiin, jotka on allekirjoitettu 30.11.2025 mennessä, edellyttää min. 6 kk:n sitoutumista. |
| Vesimaksu | 23 €/hlö/kk |
| Uudiskohde | Ei |
| Taloyhtiön nimi | Maakirjantie 1 - Asunto Oy Espoon Syysleimu |
| Rakennuksen tyyppi | ASUINKERROSTALO |
| Rakennusvuosi | 2016 |
| Huoneistojen lukumäärä | 68 |
| Kerroksia | 5 |
| Hissi | Kyllä |
| Energialuokka | D2013 |
| Energiatodistus | Ei |
| Autopaikat | Autopaikkoja hallinnoi ulkopuolinen toimija, vuokrattava erikseen |
| Sähköauton latauspiste | Ei. |
| Yhteiset tilat | ulkoiluvälinevarasto, sauna |
| Lisätiedot | savuton talo, lemmikit sallittu |
Emilia Pakarinen
Vuokrausneuvottelija
emilia.pakarinen@rettamanagement.fiRetta Asuntovuokraus, Pääkaupunkiseutu