


















1h, kt, parv, 28 m²
619 €/kk
Vuokravakuus 0 € / 350 € sopimustyypistä riippuen
Vuokrattavana uudenveroinen parvekkeellinen 5. kerroksen yksiö keskeisellä sijainnilla Keravan Jaakkolassa. Asunnossa on moderni vaaleasävyinen avokeittiö, joka on varusteltu laadukkain kodinkonein astianpesukoneella, induktioliedellä, erillisuunilla sekä jääkaappipakastimella. Asunnossa on kauttaaltaan modernin vaaleat pintamateriaalit, lattiat ovat kaunista vaaleanharmaaseen taittavaa laminaattia. Asunnossa on upeat isot ikkunat, jotka tuovat kauniisti luonnonvalon asuntoon. Laatoitetussa kylpyhuoneessa varaus pesutornille sekä jalan alla mukava sähköinen lattialämmitys. Tässä kodissa pääset nauttimaan ihanasta aurinkoisesta lasitetusta parvekkeesta! Asunnon kuvat vastaavasta asunnosta.
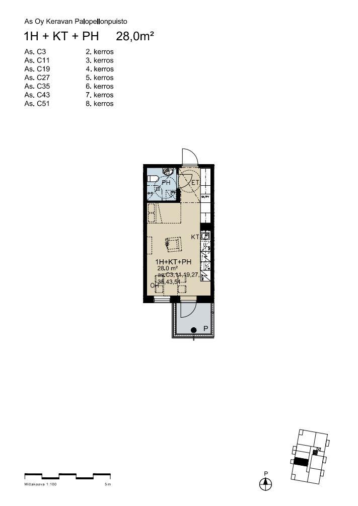
| Katuosoite | Palopellonkatu 6 C 27 |
| Pinta-ala | 28 m² |
| Kaupunki | Kerava |
| Kaupunginosa | Jaakkola |
| Kerros | 5/8 |
| Kunto | erinomainen |
| Huoneiston vapautuminen | Heti vapaa |
| Sauna | Ei |
| Parvekkeen tiedot | Kyllä, lasitettu, ilmansuunta: länsi |
| Lemmikit sallittu | Kyllä |
| Muut ehdot | Asukkaan vastuulla ottaa oma kotivakuutus. Vuokralainen tekee oman sähkösopimuksen. |
| Lisätiedot | savuton |
| Keittiön varustelu | liesi, lieden tyyppi: induktio, astianpesukone, jää-pakastinkaappi, uuni, liesikupu |
| Kylpyhuoneen varustelu | peilikaappi, pesukoneliitäntä, lattiamateriaali: laatta, seinämateriaali: laatta, lattialämmitys, sähköinen mukavuuslattialämmitys |
| Lattiamateriaali | laminaatti |
| Huoneistokohtainen varasto | Kyllä, lämmin irtaimistovarasto |
| Vaatehuone | Ei |
| Lisätiedot | Savuton huoneisto |
| Vuokra / kk | 619 € |
| Vuokravakuus | 0 € / 350 € sopimustyypistä riippuen |
| Sopimuksen tyyppi | Toistaiseksi voimassaoleva tai toistaiseksi voimassaoleva, vuokrasopimus voi päättyä aikaisintaan 12 kuukauden päästä ilman sopimussakkoa |
| Vesimaksu | 27 €/hlö/kk |
| Vesimaksun lisätiedot | Vesi kulutuksen mukaan. Tasauslaskutus tehdään 2 kertaa vuodessa ja vuokrasopimuksen päättyessä. |
| Uudiskohde | Kyllä |
| Taloyhtiön nimi | Palopellonkatu 6 C - Asunto Oy Keravan Palopellonpuisto |
| Rakennuksen tyyppi | ASUINKERROSTALO |
| Rakennusvuosi | 2024 |
| Huoneistojen lukumäärä | 55 |
| Kerroksia | 8 |
| Hissi | Kyllä |
| Energialuokka | B2018 |
| Energiatodistus | Kyllä |
| Antennityyppi | Kaapelitelevisiojärjestelmä |
| Autopaikat | Autopaikkoja hallinnoi ulkopuolinen toimija, vuokrattava erikseen |
| Sähköauton latauspiste | Ei. |
| Yhteiset tilat | kuivaushuone, ulkoiluvälinevarasto, sauna |
| Lisätiedot | savuton talo, lemmikit sallittu |
Noora Kostiainen
Vuokrausneuvottelija
Noora.Kostiainen@rettamanagement.fiRetta Asuntovuokraus, Hyvinkää
Puh. 030 609 5555