Asunnossa:

  • Parveke
  • Laajakaista kuuluu vuokraan
  • Huoneistokohtainen varasto
  • Vaatehuone
  • Astianpesukone
  • Lemmikit sallittu

Talossa:

  • Kerroksia 7
  • Hissi
  • Sauna
  • Rakennusvuosi 2025
  • Pesutupa

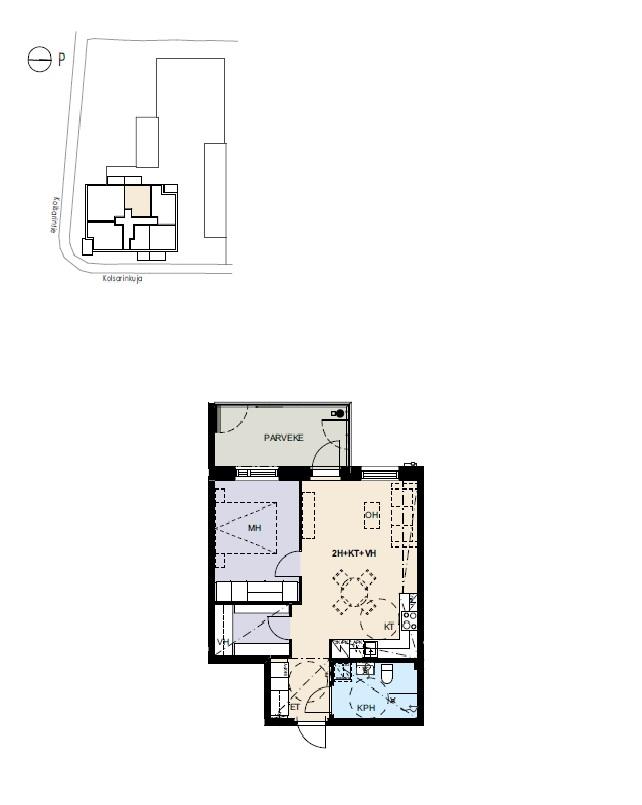
Asunnon kuvaus

Tyylikäs ja toimiva kaksio, jossa reilun kokoinen vaatehuone tuo arkeen lisämukavuutta ja tilaa. Kodin sydän on avara keittiö-olohuoneen yhdistelmä. Isossa kulmakeittiössä on hyvin säilytys- ja työskentelytilaa sekä modernit, arkea helpottavat kodinkoneet. Makuuhuoneessa on hyvin tilaa sängylle ja säilytystilaa löytyy mukavasti kaapistojen ansiosta. Lisäksi kodin iso vaatehuone pitää huolen siitä, että jokaiselle tavaralle löytyy oma paikkansa. Tyylikkäästi laatoitetussa kylpyhuoneessa on peilikaappi, lasiset suihkuseinät sekä paikka pyykinpesutornille. Tässä kodissa yhdistyvät moderni mukavuus, huolellisesti suunniteltu toiminnallisuus ja ripaus arjen luksusta – kaikki paketissa, jota täydentää ilta-auringossa kylpevä lasitettu länsiparveke. Kiinnostuitko? Tämänkin kodin voit vuokrata verkkokaupastamme tai jätä hakemus, niin lähetämme sinulle asuntotarjouksen sähköpostitse. Yleisissä vuokrausta koskevissa asioissa palvelee asiakaspalvelumme: puh. 030 609 5555 tai asuntovuokraus@rettamanagement.fi

Asunnon tiedot

KatuosoiteKolsarinkuja 2a A 21
Pinta-ala47 m²
KaupunkiHelsinki
KaupunginosaKonala
Kerros5/7
Huoneiston vapautuminenVapautumassa 01.12.25
SaunaEi
Parvekkeen tiedotKyllä, lasitettu, ilmansuunta: länsi
Lemmikit sallittuKyllä
Muut ehdotAsukkaan vastuulla ottaa oma kotivakuutus. Vuokralainen tekee oman sähkösopimuksen.
Lisätiedotsavuton

Asunnon varustelu

Keittiön varusteluliesi, astianpesukone, jää-pakastinkaappi
Kylpyhuoneen varustelupeilikaappi, pesukoneliitäntä, lattiamateriaali: laatta, seinämateriaali: laatta, lattialämmitys
Lattiamateriaalilaminaatti
Huoneistokohtainen varastoKyllä, irtainvarasto
VaatehuoneKyllä
LisätiedotSavuton huoneisto

Hinta ja kustannukset

Vuokra / kk1009 €
Vuokravakuus0 €
Sopimuksen tyyppiToistaiseksi voimassaoleva
Vesimaksu24 €/hlö/kk

Taloyhtiön tiedot

UudiskohdeKyllä
Taloyhtiön nimiKolsarinkuja 2a - Asunto Oy Helsingin Aamuaurinko
Rakennuksen tyyppiASUINKERROSTALO
Rakennusvuosi2025
Huoneistojen lukumäärä35
Kerroksia7
HissiKyllä
EnergiatodistusEi
AutopaikatAutopaikkoja hallinnoi ulkopuolinen toimija, vuokrattava erikseen
Sähköauton latauspisteEi.
Yhteiset tilatkuivaushuone, kerhohuone, ulkoiluvälinevarasto, sauna, pesutupa
Lisätiedotsavuton talo

Sijainti kartalla

Oletko kiinnostunut tästä asunnosta?

Kohdetta välittää:

Veera Wollsten

Vuokrausneuvottelija

Veera.Wollsten@rettamanagement.fi

Retta Asuntovuokraus, Pääkaupunkiseutu