Asunnossa:

  • Parveke
  • Sauna
  • Laajakaista kuuluu vuokraan
  • Huoneistokohtainen varasto
  • Astianpesukone
  • Lemmikit sallittu

Talossa:

  • Kerroksia 4
  • Hissi
  • Rakennusvuosi 2015

Asunnon kuvaus

Valoisa toisen kerroksen kolmio etsii uusia asukkaita, Asunto sijaitsee luonnonläheisellä alueella Vantaan Kaivokselassa. Asunnon lähettyviltä on hyvät liikenneyhteydet ja ulkoilumaastot. Lähikaupat Lidl Kaivoksela ja S-Market Kaivoksela palvelee kävelyetäisyydellä, sekä kauppakeskus Myyrmannin kattavat palvelut löytyy n. 2km päästä. Asunnossa on toimiva pohjaratkaisu, sekä modernit kaluste- ja materiaalivalinnat. Tämän kodin kruunaa tietysti lasitettu parveke ja oma sauna. Lemmikit ovat tervetulleita. Huom! Kuvat vastaavanlaisesta asunnosta yhtiössä. Kysy vuokrattavista autopaikoista lisää välittäjältä. Mikäli kiinnostuit asunnosta, täytäthän asuntohakemuksen Rettan sivuilta. Hyväksytyn hakemuksen jälkeen on mahdollista sopia asunnon esittelystä. Hakemus ei sido mihinkään. Yleisissä asunnonhakuun liittyvissä kysymyksissä voitte olla yhteydessä asiakaspalveluumme, p. 030 609 5555.

Asunnon tiedot

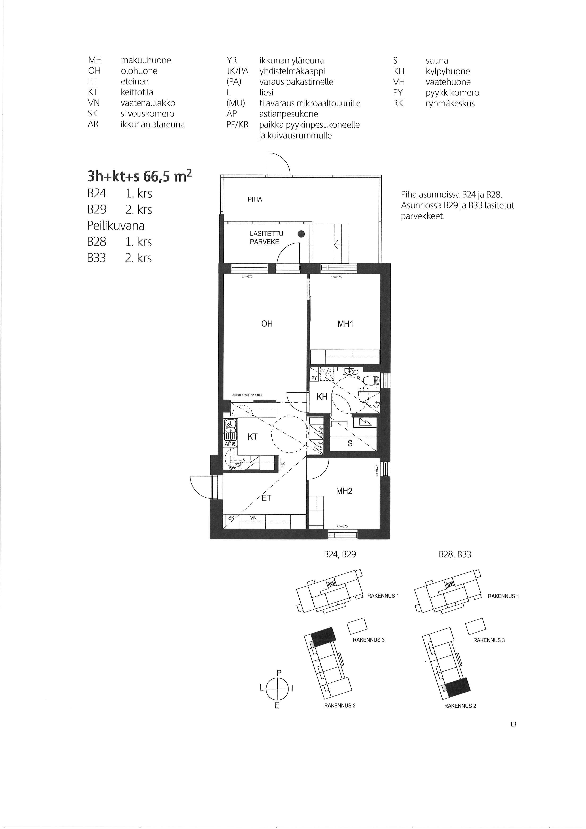
KatuosoiteAapramintie 14 B 29
Pinta-ala66.5 m²
KaupunkiVantaa
KaupunginosaKaivoksela
Kerros2/4
Kuntohyvä
Huoneiston vapautuminenHeti vapaa
SaunaKyllä
Parvekkeen tiedotKyllä, lasitettu
Lemmikit sallittuKyllä
Muut ehdotAsukkaan vastuulla ottaa oma kotivakuutus. Vuokralainen tekee oman sähkösopimuksen.
Lisätiedotsavuton

Asunnon varustelu

Keittiön varusteluliesi, lieden selite: keraaminen, astianpesukone, jääkaappi
Kylpyhuoneen varustelupeilikaappi, pesukoneliitäntä, lattiamateriaali: laatta, seinämateriaali: laatta, lattialämmitys, mukavuuslämmitys asunnon sähköstä
Lattiamateriaaliparketti
Huoneistokohtainen varastoKyllä, Irtainvarasto
VaatehuoneEi

Hinta ja kustannukset

Vuokra / kk1215 €
Vuokravakuus1215 €
Sopimuksen tyyppiToistaiseksi voimassaoleva, vuokrasopimus voi päättyä aikaisintaan 6 kuukauden päästä ilman sopimussakkoa
Vesimaksu24 €/hlö/kk

Taloyhtiön tiedot

UudiskohdeEi
Taloyhtiön nimiAapramintie 14 - Asunto Oy Vantaan Vuorikilta
Rakennuksen tyyppiASUINKERROSTALO
Rakennusvuosi2015
Huoneistojen lukumäärä13
Kerroksia4
HissiKyllä
EnergialuokkaC2013
EnergiatodistusEi
AntennityyppiKaapelitelevisiojärjestelmä
AutopaikatAutopaikkoja hallinnoi ulkopuolinen toimija, vuokrattava erikseen
Sähköauton latauspisteEi.
Lisätiedotlemmikit sallittu

Sijainti kartalla

Kohdetta välittää:

Jonna Hyrylä

Vuokrausneuvottelija

Puh. +358401209249

Jonna.Hyryla@rettamanagement.fi

Retta Asuntovuokraus, Pääkaupunkiseutu