













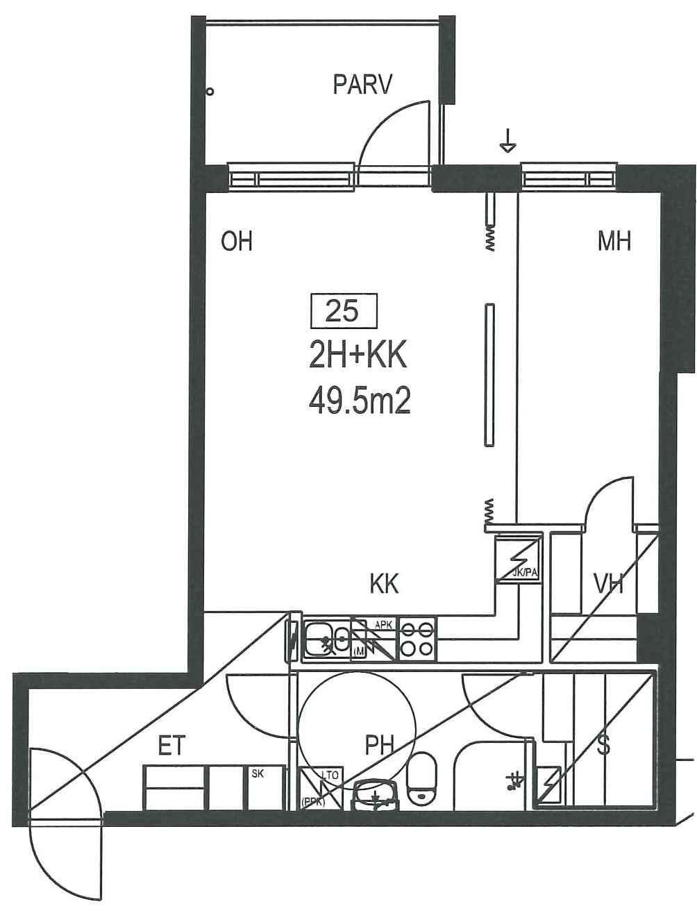
2h, kt, s, parv, 49.5 m²
795 €/kk
Vuokravakuus 350 € / 795 € sopimustyypistä riippuen
Tilava ylimmän kerroksen saunallinen kaksio hyvällä sijainnilla Keravan Ahjossa Vuokraetu! Tässä Leona-kodissa säästät -50 € vuokrasta 15 kuukauden ajan, kun sitoudut vähintään vuoden mittaiseen asumiseen. Lisäksi asut samalla vuokralla vuoden 2026 loppuun asti. Tee tästä uusi kotisi! Leona-kodin tiedot Tässä toimivassa kodissa on nykyaikainen varustelutaso, oma sauna ja säilytysratkaisuna käytännöllinen vaatehuone. Avokeittiössä on hyvät säilytystilat ja varusteluun kuuluu myös astianpesukone. Avara ja valoisa olohuone muodostaa yhtenäisen tilan keittiön kanssa ja mahdollistaa erilaiset sisustusratkaisut. Kylpyhuoneessa on liitännät pesukoneelle sekä miellyttävä sähkötoiminen mukavuuslattialämmitys ja kokonaisuuden kruunaa oma sauna. Lisäoleskelutilaa tarjoaa viihtyisä lasitettu parveke, jolla on miellyttävää vilvoitella saunan jälkeen. Ilmoituksen kuvat ovat vastaavasta asunnosta samassa taloyhtiössä.
| Katuosoite | Moukaritie 7 B 30 |
| Pinta-ala | 49.5 m² |
| Kaupunki | Kerava |
| Kaupunginosa | Ahjo |
| Kerros | 3/4 |
| Huoneiston vapautuminen | Heti vapaa |
| Sauna | Kyllä |
| Parvekkeen tiedot | Kyllä, lasitettu |
| Lemmikit sallittu | Kyllä |
| Muut ehdot | Asukkaan vastuulla ottaa oma kotivakuutus. Vuokralainen tekee oman sähkösopimuksen. |
| Lisätiedot | savuton |
| Keittiön varustelu | liesi, lieden tyyppi: keraaminen liesi, astianpesukone, jää-pakastinkaappi |
| Kylpyhuoneen varustelu | peilikaappi, pesukoneliitäntä, lattiamateriaali: laatta, seinämateriaali: laatta, lattialämmitys, mukavuuslattialämmitys (huoneiston sähköstä) |
| Lattiamateriaali | laminaatti |
| Huoneistokohtainen varasto | Kyllä, irtaimistovarasto |
| Vaatehuone | Kyllä |
| Lisätiedot | Savuton huoneisto |
| Vuokra / kk | 795 € |
| Vuokravakuus | 350 € / 795 € sopimustyypistä riippuen |
| Sopimuksen tyyppi | Toistaiseksi voimassaoleva tai toistaiseksi voimassaoleva, vuokrasopimus voi päättyä aikaisintaan 12 kuukauden päästä ilman sopimussakkoa |
| Kampanjatieto | Vuokraetu! Tässä Leona-kodissa säästät -50 € vuokrasta 15 kuukauden ajan, kun sitoudut vähintään vuoden mittaiseen asumiseen. Lisäksi asut samalla vuokralla vuoden 2026 loppuun asti. Tee tästä uusi kotisi! |
| Vesimaksu | 25 €/hlö/kk |
| Vesimaksun lisätiedot | Kiinteä vesimaksu. Lasketaan asukasluvun mukaisesti, ei tasausta |
| Uudiskohde | Ei |
| Taloyhtiön nimi | Moukaritie 7 - Asunto Oy Keravan Allina |
| Rakennuksen tyyppi | ASUINKERROSTALO |
| Rakennusvuosi | 2009 |
| Huoneistojen lukumäärä | 31 |
| Kerroksia | 4 |
| Hissi | Kyllä |
| Energialuokka | D2013 |
| Energiatodistus | Kyllä |
| Antennityyppi | Kaapelitelevisiojärjestelmä |
| Autopaikat | Autopaikkoja hallinnoi ulkopuolinen toimija, vuokrattava erikseen |
| Sähköauton latauspiste | Ei. |
| Yhteiset tilat | kuivaushuone, ulkoiluvälinevarasto |
| Lisätiedot | savuton talo, lemmikit sallittu |
Annika Rämö
Vuokravälittäjä
Puh. +358406674597
annika.ramo@rettamanagement.fiRetta Asuntovuokraus, Hyvinkää
Puh. 030 609 5555