-50% vuokrasta neljän kuukauden ajan! Edellyttää 12 kuukauden sitoutumisen.

Kirkkonummi, Sundsberg

Kartanontie 8 A 23

Kartanontie 8 - Asunto Oy Kirkkonummen Tolsan Asema Ja Kartanonmäki

2h, kt, 27

708 €/kk

Vuokravakuus 0 €

Asunnossa:

  • Laajakaista kuuluu vuokraan
  • Huoneistokohtainen varasto
  • Astianpesukone
  • Lemmikit sallittu

Talossa:

  • Kerroksia 4
  • Hissi
  • Rakennusvuosi 2016

Asunnon kuvaus

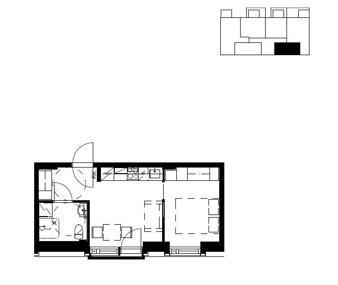
Valoisa kaksio rauhalliselta Sundsbergin alueelta. Asunnossa hyvin kaappitilaa ja tyylikäs avokeittiö olohuoneen yhteydessä. Kauniisti laatoitetussa ja tilavassa kylpyhuoneessa liitäntä pyykinpesukoneelle. Ilmoituksen kuvat asunnosta A 6, joka pohjaltaan muutaman neliön suurempi ja peilikuva tästä asunnosta - muutoin asunnot lähes identtiset. Huomioithan, että näkymät vaihtelevat kerroksien välillä. Voit valita sopimuksen joko 12kk asumisajan mukaan, jolloin saat vuokrasta -50% neljän ensimmäisen täyden asumiskuukauden ajalta, tai 6kk sitoutumisen ilman vuokraetua. Lemmikit tervetulleita! Voit vuokrata asunnon verkosta tai täyttämällä asuntohakemuksen. Lisätietoja välittäjältä sähköpostitse etunimi.sukunimi@retta.fi. Yleisimpiin vuokraukseen liittyvissä asioissa voit olla yhteydessä asiakaspalveluumme p. 030 609 5555, arkisin klo 8-16.

Asunnon tiedot

KatuosoiteKartanontie 8 A 23
Pinta-ala27 m²
KaupunkiKirkkonummi
KaupunginosaSundsberg
Kerros4/4
Kuntohyvä
Huoneiston vapautuminenVapautumassa 01.11.25
SaunaEi
Parvekkeen tiedotEi
Lemmikit sallittuKyllä
Muut ehdotAsukkaan vastuulla ottaa oma kotivakuutus. Vuokralainen tekee oman sähkösopimuksen.
Lisätiedotsavuton

Asunnon varustelu

Keittiön varusteluliesi, lieden selite: keraaminen, astianpesukone, jääkaappi, liesituuletin
Kylpyhuoneen varustelupeilikaappi, pesukoneliitäntä, lattiamateriaali: laatta, seinämateriaali: laatta, allaskaappi, peilikaappi
Lattiamateriaaliparketti
Huoneistokohtainen varastoKyllä, irtaimistovarasto
VaatehuoneEi

Hinta ja kustannukset

Vuokra / kk708 €
Vuokravakuus0 €
Sopimuksen tyyppiToistaiseksi voimassaoleva, vuokrasopimus voi päättyä aikaisintaan 6 kuukauden päästä ilman sopimussakkoa
Kampanjatieto-50% vuokrasta neljän kuukauden ajan! Edellyttää 12 kuukauden sitoutumisen.
Vesimaksu0 €/hlö/kk
Vesimaksun lisätiedotVesi laskutetaan toteutuneen kulutuksen mukaan 4 krt/v.

Taloyhtiön tiedot

UudiskohdeEi
Taloyhtiön nimiKartanontie 8 - Asunto Oy Kirkkonummen Tolsan Asema Ja Kartanonmäki
Rakennuksen tyyppiASUINKERROSTALO
Rakennusvuosi2016
Huoneistojen lukumäärä61
Kerroksia4
HissiKyllä
EnergialuokkaC2013
EnergiatodistusEi
AutopaikatAutopaikkoja hallinnoi ulkopuolinen toimija, vuokrattava erikseen
Sähköauton latauspisteEi.
Yhteiset tilatulkoiluvälinevarasto
Lisätiedotlemmikit sallittu

Sijainti kartalla

Kohdetta välittää:

Carla Järventausta

Tiiminvetäjä, asuntovuokrauspalvelut

Puh. +358401597513

carla.jarventausta@rettamanagement.fi

Retta Asuntovuokraus, Pääkaupunkiseutu