














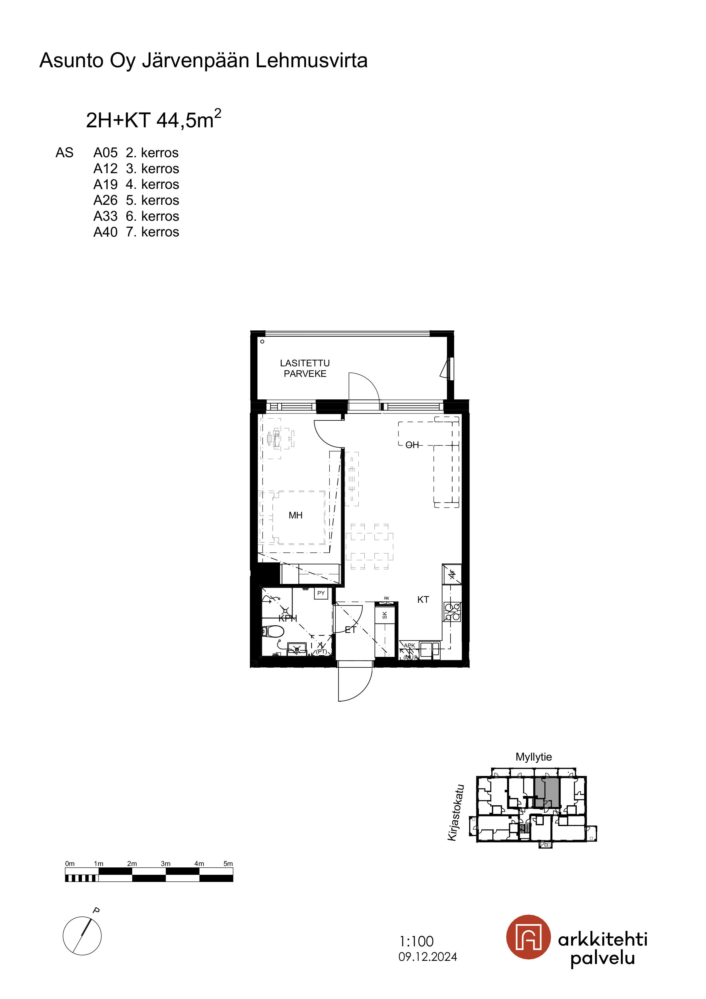
2h, kt, parv, 44.5 m²
889 €/kk
Vuokravakuus 0 €
Vuokrattavana viihtyisä, uusi koti Järvenpään Pajalasta! Valoisa kaksio, jossa on tilava kulma-avokeittiö. Keittiössä on vaaleat materiaalit sekä laadukkaat kodinkoneet: induktiotaso, kalusteuuni, jääkaappipakastin sekä astianpesukone. Modernissa laatoitetussa kylpyhuoneessa on mukavuuslattialämmitys, peilikaappi, lasiset kääntyvät suihkuseinät sekä varaus pesutornille. Asunnon erillisestä makuuhuoneesta löytyy mukavasti säilytystilaa. Kodin kruunaa koko asunnon levyinen lasitettu luoteisparveke! Kiinnostuitko? Jätä hakemus, niin olemme teihin yhteydessä, mikäli asunto on tarjottavissa.
| Katuosoite | Valtuustonkatu 12 A 26 |
| Pinta-ala | 44.5 m² |
| Kaupunki | Järvenpää |
| Kaupunginosa | Pöytäalho |
| Kerros | 5/7 |
| Kunto | erinomainen |
| Huoneiston vapautuminen | Vapautumassa 19.12.25 |
| Sauna | Ei |
| Parvekkeen tiedot | Kyllä, lasitettu, ilmansuunta: luode |
| Lemmikit sallittu | Kyllä |
| Muut ehdot | Asukkaan vastuulla ottaa oma kotivakuutus. Vuokralainen tekee oman sähkösopimuksen. |
| Lisätiedot | savuton |
| Keittiön varustelu | liesi, lieden tyyppi: induktio, lieden selite: liesitaso + erillisuuni, astianpesukone, jää-pakastinkaappi |
| Kylpyhuoneen varustelu | peilikaappi, pesukoneliitäntä, lattiamateriaali: laatta, seinämateriaali: laatta, lattialämmitys, sähköinen mukavuuslattialämmitys |
| Lattiamateriaali | laminaatti |
| Huoneistokohtainen varasto | Kyllä, irtaimistovarasto pohjakerroksessa |
| Vaatehuone | Ei |
| Lisätiedot | Savuton huoneisto |
| Vuokra / kk | 889 € |
| Vuokravakuus | 0 € |
| Sopimuksen tyyppi | Toistaiseksi voimassaoleva |
| Kampanjatieto | Joulukuun vuokra 0 €! Etu voimassa uusiin vuokrasopimuksiin. Etu edellyttää 12 kk sitoutumista. |
| Vesimaksu | 27 €/hlö/kk |
| Vesimaksun lisätiedot | Vesi kulutuksen mukaan. Tasauslaskutus tehdään 2 kertaa vuodessa ja vuokrasopimuksen päättyessä. |
| Uudiskohde | Kyllä |
| Taloyhtiön nimi | Valtuustonkatu 12 A - Asunto Oy Järvenpään Lehmusvirta |
| Rakennuksen tyyppi | ASUINKERROSTALO |
| Rakennusvuosi | 2025 |
| Huoneistojen lukumäärä | 43 |
| Kerroksia | 7 |
| Hissi | Kyllä |
| Energialuokka | A2018 |
| Energiatodistus | Kyllä |
| Antennityyppi | Kaapelitelevisiojärjestelmä |
| Autopaikat | Autopaikkoja hallinnoi ulkopuolinen toimija, vuokrattava erikseen |
| Sähköauton latauspiste | Ei. |
| Yhteiset tilat | pesutupa |
| Lisätiedot | savuton talo, lemmikit sallittu |
Jenna Tuovinen
Vuokravälittäjä
Puh. +358404822225
jenna.tuovinen@rettamanagement.fiRetta Asuntovuokraus, Hyvinkää
Puh. 030 609 5555