


















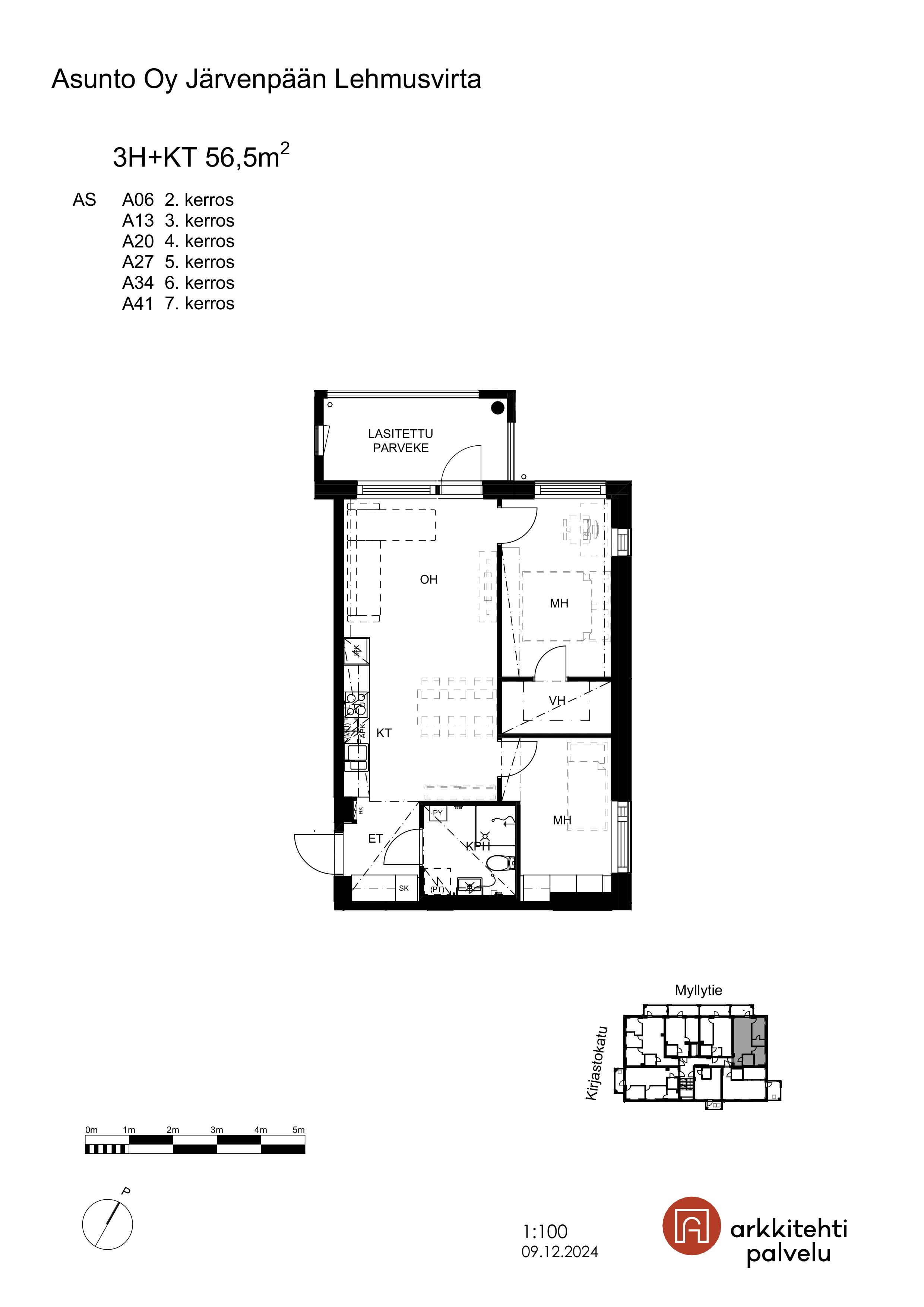
3h, kt, parv, 55.5 m²
1145 €/kk
Vuokravakuus 0 €
Vuokrattavana valoisa kolmio vaatehuoneella Pajalasta! Asunnossa on tilava avokeittiö, joka on varusteltu astianpesukoneella, induktiotasolla, kalusteuunilla sekä jääkaappipakastimella. Olohuoneessa on kauttaaltaan vaaleat pintamateriaalit sekä upeat isot ikkunat, jotka tuovat kauniisti luonnonvaloa asuntoon. Asunnossa on kaksi erillistä makuuhuonetta sekä lisäksi kätevä erillinen vaatehuone. Laatoitetussa kylpyhuoneessa on mukavuuslattialämmitys, peilikaappi, lasiset kääntyvät suihkuseinät sekä varaus pesutornille. Kokonaisuuden kruunaa iso lasitettu luoteisparveke. Tämä koti on yhdistelmä mukavuutta, toimivuutta ja käytännöllisyyttä parhaimmillaan. Kiinnostuitko? Jätä hakemus, niin olemme teihin yhteydessä, mikäli asunto on tarjottavissa.
| Katuosoite | Valtuustonkatu 12 A 27 |
| Pinta-ala | 55.5 m² |
| Kaupunki | Järvenpää |
| Kaupunginosa | Pöytäalho |
| Kerros | 5/7 |
| Kunto | erinomainen |
| Huoneiston vapautuminen | Vapautumassa 19.12.25 |
| Sauna | Ei |
| Parvekkeen tiedot | Kyllä, lasitettu, ilmansuunta: luode |
| Lemmikit sallittu | Kyllä |
| Muut ehdot | Asukkaan vastuulla ottaa oma kotivakuutus. Vuokralainen tekee oman sähkösopimuksen. |
| Lisätiedot | savuton |
| Keittiön varustelu | liesi, lieden tyyppi: induktio, lieden selite: liesitaso + erillisuuni, astianpesukone, jää-pakastinkaappi |
| Kylpyhuoneen varustelu | peilikaappi, pesukoneliitäntä, lattiamateriaali: laatta, seinämateriaali: laatta, lattialämmitys, sähköinen mukavuuslattialämmitys |
| Lattiamateriaali | laminaatti |
| Huoneistokohtainen varasto | Kyllä, irtaimistovarasto pohjakerroksessa |
| Vaatehuone | Kyllä |
| Lisätiedot | Savuton huoneisto |
| Vuokra / kk | 1145 € |
| Vuokravakuus | 0 € |
| Sopimuksen tyyppi | Toistaiseksi voimassaoleva |
| Kampanjatieto | Joulukuun vuokra 0 €! Etu voimassa uusiin vuokrasopimuksiin. Etu edellyttää 12 kk sitoutumista. |
| Vesimaksu | 27 €/hlö/kk |
| Vesimaksun lisätiedot | Vesi kulutuksen mukaan. Tasauslaskutus tehdään 2 kertaa vuodessa ja vuokrasopimuksen päättyessä. |
| Uudiskohde | Kyllä |
| Taloyhtiön nimi | Valtuustonkatu 12 A - Asunto Oy Järvenpään Lehmusvirta |
| Rakennuksen tyyppi | ASUINKERROSTALO |
| Rakennusvuosi | 2025 |
| Huoneistojen lukumäärä | 43 |
| Kerroksia | 7 |
| Hissi | Kyllä |
| Energialuokka | A2018 |
| Energiatodistus | Kyllä |
| Antennityyppi | Kaapelitelevisiojärjestelmä |
| Autopaikat | Autopaikkoja hallinnoi ulkopuolinen toimija, vuokrattava erikseen |
| Sähköauton latauspiste | Ei. |
| Yhteiset tilat | pesutupa |
| Lisätiedot | savuton talo, lemmikit sallittu |
Jenna Tuovinen
Vuokravälittäjä
Puh. +358404822225
jenna.tuovinen@rettamanagement.fiRetta Asuntovuokraus, Hyvinkää
Puh. 030 609 5555