












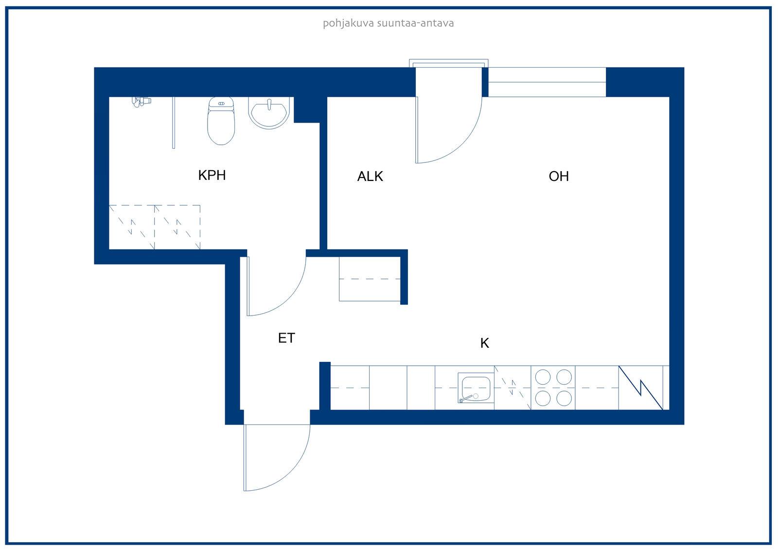
1h, kt, 29 m²
569 €/kk
Vuokravakuus 250 €
Moderni alkovillinen yksiö luonnonläheisellä sijainnilla Nurmijärven Klaukkalassa. Uudenveroinen pikkukoti, jossa kauniit vaaleat pintamateriaalit sekä lattiamateriaalina kauttaaltaan vaaleasävyinen tammilaminaatti. Avokeittiössä moderni varustelutaso, mm. astianpesukone, keraaminen liesi ja erillisuuni. Tilavassa laatoitetussa kylpyhuoneessa paikkavaraus pesutornille sekä miellyttävä sähköinen mukavuuslattialämmitys. Kiva ranskalainen parveke sekä maksuton Elisan 50M taloyhtiölaajakaista takaavat asumisen mukavuuden.
| Katuosoite | Korpiorvokinkuja 2 A 4 |
| Pinta-ala | 29 m² |
| Kaupunki | Nurmijärvi |
| Kaupunginosa | Klaukkala |
| Kerros | 2/5 |
| Kunto | hyvä |
| Huoneiston vapautuminen | Vapautumassa 01.12.25 |
| Sauna | Ei |
| Parvekkeen tiedot | Ei, ranskalainen parveke |
| Lemmikit sallittu | Kyllä |
| Muut ehdot | Asukkaan vastuulla ottaa oma kotivakuutus. Vuokralainen tekee oman sähkösopimuksen. |
| Lisätiedot | savuton |
| Keittiön varustelu | liesi, lieden tyyppi: keraaminen liesi, astianpesukone, jää-pakastinkaappi, erillisuuni, liesikupu |
| Kylpyhuoneen varustelu | pesukoneliitäntä, lattiamateriaali: laatta, seinämateriaali: laatta, lattialämmitys, sähköinen lattialämmitys huoneiston sähköstä |
| Lattiamateriaali | laminaatti |
| Huoneistokohtainen varasto | Kyllä, lämmin irtaimistovarasto pohjakerroksessa |
| Vaatehuone | Ei |
| Lisätiedot | Savuton huoneisto |
| Vuokra / kk | 569 € |
| Vuokravakuus | 250 € |
| Sopimuksen tyyppi | Toistaiseksi voimassaoleva, vuokrasopimus voi päättyä aikaisintaan 6 kuukauden päästä ilman sopimussakkoa |
| Vesimaksu | 23 €/hlö/kk |
| Vesimaksun lisätiedot | Tasaus kaksi (2) kertaa vuodessa tai vuokrasopimuksen päättyessä |
| Uudiskohde | Ei |
| Taloyhtiön nimi | Korpiorvokinkuja 2 - Asunto Oy Nurmijärven Vannas |
| Rakennuksen tyyppi | ASUINKERROSTALO |
| Rakennusvuosi | 2023 |
| Huoneistojen lukumäärä | 35 |
| Kerroksia | 5 |
| Hissi | Kyllä |
| Energialuokka | A2018 |
| Energiatodistus | Kyllä |
| Autopaikat | Autopaikkoja hallinnoi ulkopuolinen toimija, vuokrattava erikseen |
| Sähköauton latauspiste | Kyllä. |
| Yhteiset tilat | ulkoiluvälinevarasto |
| Lisätiedot | savuton talo, lemmikit sallittu |
Jenna Tuovinen
Vuokravälittäjä
Puh. +358404822225
jenna.tuovinen@rettamanagement.fiRetta Asuntovuokraus, Hyvinkää
Puh. 030 609 5555