Espoo, Olari

Gräsantörmä 1 E 180

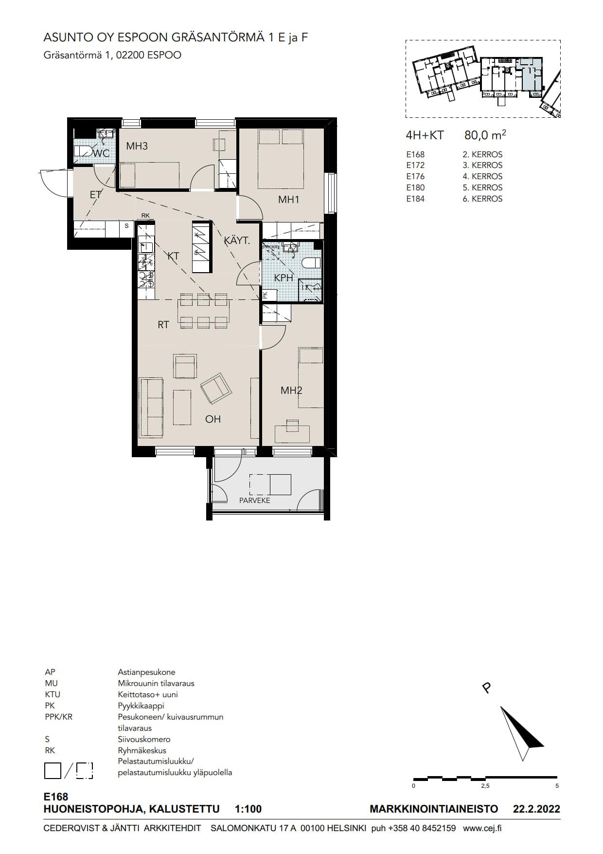
Gräsantörmä 1 E ja F - Asunto Oy Espoon Gräsantörmä 1 E ja F

4h, kt, 80

1579 €/kk

Vuokravakuus 0 € / 350 € sopimustyypistä riippuen

Asunnossa:

  • Parveke
  • Laajakaista kuuluu vuokraan
  • Huoneistokohtainen varasto
  • Astianpesukone
  • Lemmikit sallittu

Talossa:

  • Hissi
  • Sauna
  • Rakennusvuosi 2023
  • Pesutupa

Asunnon kuvaus

Tilava ja valoisa 4h+kt Olarin viihtyisällä alueella Tervetuloa tutustumaan tähän upeaan, 80 neliöiseen neljän huoneen asuntoon Olarin rauhallisella ja halutulla alueella! Asunnossa on avara ja käytännöllinen pohjaratkaisu, jossa olohuone ja moderni keittiö muodostavat yhtenäisen, valoisan oleskelutilan. Suuret ikkunat tuovat runsaasti luonnonvaloa ja lisäävät kodin viihtyisyyttä. Kolme makuuhuonetta tarjoavat hyvin tilaa perheelle, etätyölle tai harrastuksille. Tyylikkäässä keittiössä on laadukkaat kodinkoneet ja runsaasti säilytystilaa. Kylpyhuone on moderni ja tilava, ja lisäksi asunnossa on oma sauna, joka kruunaa arjen. Asunto sijaitsee loistavien kulkuyhteyksien varrella – lähellä kouluja, päiväkoteja, palveluita ja ulkoilumahdollisuuksia. Metro ja bussiyhteydet kulkevat sujuvasti, ja Iso Omena on 2 kilometrin päässä. Tämä koti sopii erinomaisesti perheelle tai tilaa arvostavalle pariskunnalle. • Asunnon voi vuokrata helposti verkossa tai täyttämällä asuntohakemuksen. • Lisätietoja saat välittäjältä sähköpostitse. • Yleisissä vuokrausta koskevissa asioissa palvelee asiakaspalvelumme: • puh. 030 609 5555 tai asuntovuokraus@rettamanagement.fi

Asunnon tiedot

KatuosoiteGräsantörmä 1 E 180
Pinta-ala80 m²
KaupunkiEspoo
KaupunginosaOlari
Kerros5/0
Huoneiston vapautuminenHeti vapaa
SaunaEi
Parvekkeen tiedotKyllä, lasitettu
Lemmikit sallittuKyllä
Muut ehdotAsukkaan vastuulla ottaa oma kotivakuutus. Vuokralainen tekee oman sähkösopimuksen.
Lisätiedotsavuton

Asunnon varustelu

Keittiön varusteluliesi, astianpesukone, jää-pakastinkaappi
Kylpyhuoneen varustelupeilikaappi, pesukoneliitäntä, lattiamateriaali: laatta, seinämateriaali: laatta, lattialämmitys, mukavuus lämmitys omasta sähköstä.
Lattiamateriaalilaminaatti
Huoneistokohtainen varastoKyllä, Irtaimistovarasto
VaatehuoneEi

Hinta ja kustannukset

Vuokra / kk1579 €
Vuokravakuus 0 € / 350 € sopimustyypistä riippuen
Sopimuksen tyyppiToistaiseksi voimassaoleva tai toistaiseksi voimassaoleva, vuokrasopimus voi päättyä aikaisintaan 11 kuukauden päästä ilman sopimussakkoa
Vesimaksu27 €/hlö/kk

Taloyhtiön tiedot

UudiskohdeKyllä
Taloyhtiön nimiGräsantörmä 1 E ja F - Asunto Oy Espoon Gräsantörmä 1 E ja F
Rakennuksen tyyppiASUINKERROSTALO
Rakennusvuosi2023
Huoneistojen lukumäärä41
Kerroksia0
HissiKyllä
EnergialuokkaB2018
EnergiatodistusKyllä
AutopaikatAutopaikkoja hallinnoi ulkopuolinen toimija, vuokrattava erikseen
Sähköauton latauspisteEi.
Yhteiset tilatsauna, pesutupa
Lisätiedotesteetön

Sijainti kartalla

Kohdetta välittää:

Emilia Pakarinen

Vuokrausneuvottelija

emilia.pakarinen@rettamanagement.fi

Retta Asuntovuokraus, Pääkaupunkiseutu