Asunnossa:

  • Parveke
  • Laajakaista kuuluu vuokraan
  • Huoneistokohtainen varasto
  • Astianpesukone
  • Lemmikit sallittu

Talossa:

  • Hissi
  • Sauna
  • Rakennusvuosi 2019

Asunnon kuvaus

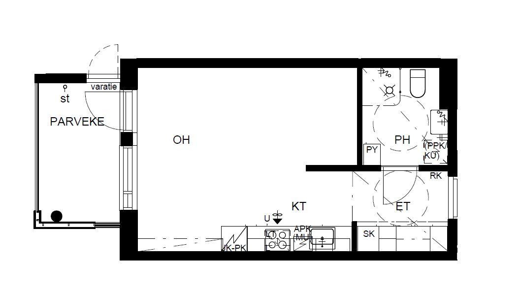
5. kerroksen yksiö Korsossa etsii uutta asukasta. Asunto on hyvällä sijainnilla, talon lähettyviltä on hyvät kulkuyhteydet, sekä kaikki päivittäiset palvelut löytyvät kävelyetäisyydeltä. Asunnossa on toimiva pohjaratkaisu, sekä modernit kaluste- ja materiaalivalinnat. Lasitettu parveke lisää asumisviihtyvyyttä ja keittiöstä löytyy astianpesukone helpottamaan arjen askareita. Lemmikit ovat tervetulleita. Kysy vuokrattavista autopaikoista lisää välittäjältä. Mikäli kiinnostuit asunnosta, täytäthän asuntohakemuksen ilmoitukselta. Hakemus ei sido mihinkään. Yleisissä asunnonhakuun liittyvissä kysymyksissä voitte olla yhteydessä asiakaspalveluumme, p. 030 609 5555

Asunnon tiedot

KatuosoiteKorsontie 14 A 32
Pinta-ala31.5 m²
KaupunkiVantaa
KaupunginosaKorso
Kerros5/0
Kuntohyvä
Huoneiston vapautuminenVapautumassa 02.02.26
SaunaEi
Parvekkeen tiedotKyllä, lasitettu
Lemmikit sallittuKyllä
Muut ehdotAsukkaan vastuulla ottaa oma kotivakuutus. Vuokralainen tekee oman sähkösopimuksen.
Lisätiedotsavuton

Asunnon varustelu

Keittiön varusteluliesi, lieden selite: keraaminen, astianpesukone, jääkaappi
Kylpyhuoneen varustelupeilikaappi, pesukoneliitäntä, lattiamateriaali: laatta, seinämateriaali: laatta, lattialämmitys, mukavuuslattialämmitys asunnon sähköstä
Lattiamateriaaliparketti
Huoneistokohtainen varastoKyllä, Irtainvarasto
VaatehuoneEi

Hinta ja kustannukset

Vuokra / kk697 €
Vuokravakuus697 €
Sopimuksen tyyppiToistaiseksi voimassaoleva, vuokrasopimus voi päättyä aikaisintaan 6 kuukauden päästä ilman sopimussakkoa
Vesimaksu24 €/hlö/kk

Taloyhtiön tiedot

UudiskohdeEi
Taloyhtiön nimiKorsontie 14 - Asunto Oy Vantaan Melodia
Rakennuksen tyyppiASUINKERROSTALO
Rakennusvuosi2019
Huoneistojen lukumäärä9
Kerroksia0
HissiKyllä
EnergialuokkaB2018
EnergiatodistusEi
AutopaikatAutopaikkoja hallinnoi ulkopuolinen toimija, vuokrattava erikseen
Sähköauton latauspisteEi.
Yhteiset tilatulkoiluvälinevarasto, sauna
Lisätiedotlemmikit sallittu

Sijainti kartalla

Kohdetta välittää:

Sonja Gupta

Vuokrausneuvottelija

Puh. +358444946420

sonja.gupta@rettamanagement.fi

Retta Asuntovuokraus, Pääkaupunkiseutu