Asunnossa:

  • Parveke
  • Laajakaista kuuluu vuokraan
  • Astianpesukone
  • Lemmikit sallittu

Talossa:

  • Kerroksia 16
  • Sauna
  • Rakennusvuosi 2023
  • Pesutupa

Asunnon kuvaus

Tervetuloa tähän 2. kerroksen yksiöön alkovilla, jossa lasitettu parveke. Asunnossa on laadukkaat vaaleat pintamateriaalit, laminaattilattia ja tummansävyinen keittiötaso. Keittiön vakiovarusteina kalusteuuni, keraaminen liesitaso, jää-pakastinkaappi sekä arkea sujuvoittava astianpesukone. Kylpyhuoneessa mukavuuslattialämmitys ja liitäntä pyykinpesukoneelle. Alkovissa hyvin kaapistoja ja tilaa pienelle sängylle. Ilmoituksen kuvat huoneistoa vastaavasta asunnosta. Huomioithan, että näkymät vaihtelevat kerroksien välillä. Voit vuokrata asunnon suoraan verkkokaupan kautta tai täytä asuntohakemus. Lisätietoja saat välittäjältä sähköpostitse. Yleisissä vuokraukseen liittyvissä asioissa palvelee asiakaspalvelumme: Puh: 030 609 5555 asuntovuokraus@rettamanagement.fi

Asunnon tiedot

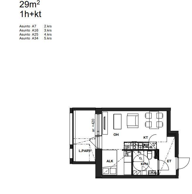
KatuosoiteVuotie 49a A 7
Pinta-ala29 m²
KaupunkiHelsinki
KaupunginosaVuosaari
Kerros2/16
Huoneiston vapautuminenVapautumassa 15.12.25
SaunaEi
Parvekkeen tiedotKyllä, lasitettu
Lemmikit sallittuKyllä
Muut ehdotAsukkaan vastuulla ottaa oma kotivakuutus. Vuokralainen tekee oman sähkösopimuksen.
Lisätiedotsavuton

Asunnon varustelu

Keittiön varusteluliesi, lieden tyyppi: keraaminen liesi, astianpesukone, jää-pakastinkaappi
Kylpyhuoneen varustelupeilikaappi, pesukoneliitäntä, lattiamateriaali: laatta, seinämateriaali: laatta, lattialämmitys, mukavuuslattialämmitys, paikka omalle pesukoneelle, tyylikkäät lasiset kääntyvät suihkuseinät, allaslaatikosto, pyykkikaappi sekä peilikaappi.
Lattiamateriaalilaminaatti
Huoneistokohtainen varastoEi
VaatehuoneEi
LisätiedotSavuton huoneisto

Hinta ja kustannukset

Vuokra / kk749 €
Vuokravakuus0 €
Sopimuksen tyyppiToistaiseksi voimassaoleva
Vesimaksu27 €/hlö/kk

Taloyhtiön tiedot

UudiskohdeKyllä
Taloyhtiön nimiVuotie 49a - Asunto Oy Helsingin Sitadelli 2
Rakennuksen tyyppiASUINKERROSTALO
Rakennusvuosi2023
Huoneistojen lukumäärä138
Kerroksia16
HissiEi
EnergialuokkaA 2018
EnergiatodistusKyllä
AutopaikatAutopaikkoja hallinnoi ulkopuolinen toimija, vuokrattava erikseen
Sähköauton latauspisteEi.
Yhteiset tilatkerhohuone, ulkoiluvälinevarasto, sauna, pesutupa
Lisätiedotsavuton talo, lemmikit sallittu

Sijainti kartalla

Kohdetta välittää:

Kajsa Pyyhtiä

Vuokrausneuvottelija

kajsa.pyyhtia@rettamanagement.fi

Retta Asuntovuokraus, Pääkaupunkiseutu