Asunnossa:

  • Parveke
  • Sauna
  • Laajakaista kuuluu vuokraan
  • Huoneistokohtainen varasto
  • Astianpesukone
  • Lemmikit sallittu

Talossa:

  • Hissi
  • Rakennusvuosi 2015

Asunnon kuvaus

Vapautumassa mukavan kokoinen kaksio Kangasalan Vatialasta. Nykyaikaiset mukavuudet ja varustelu tekevät tästä asunnosta viihtyisän kodin. Kauniit laminaattilattiat, arkea helpottamassa astianpesukone ja asumismukavuutta lisäämässä oma sauna sekä lasitettu parveke. HUOM Täytäthän ensin asuntohakemuksen osoitteessa vuokraus.rettamanagement.fi/asunnot, Kiitos!

Asunnon tiedot

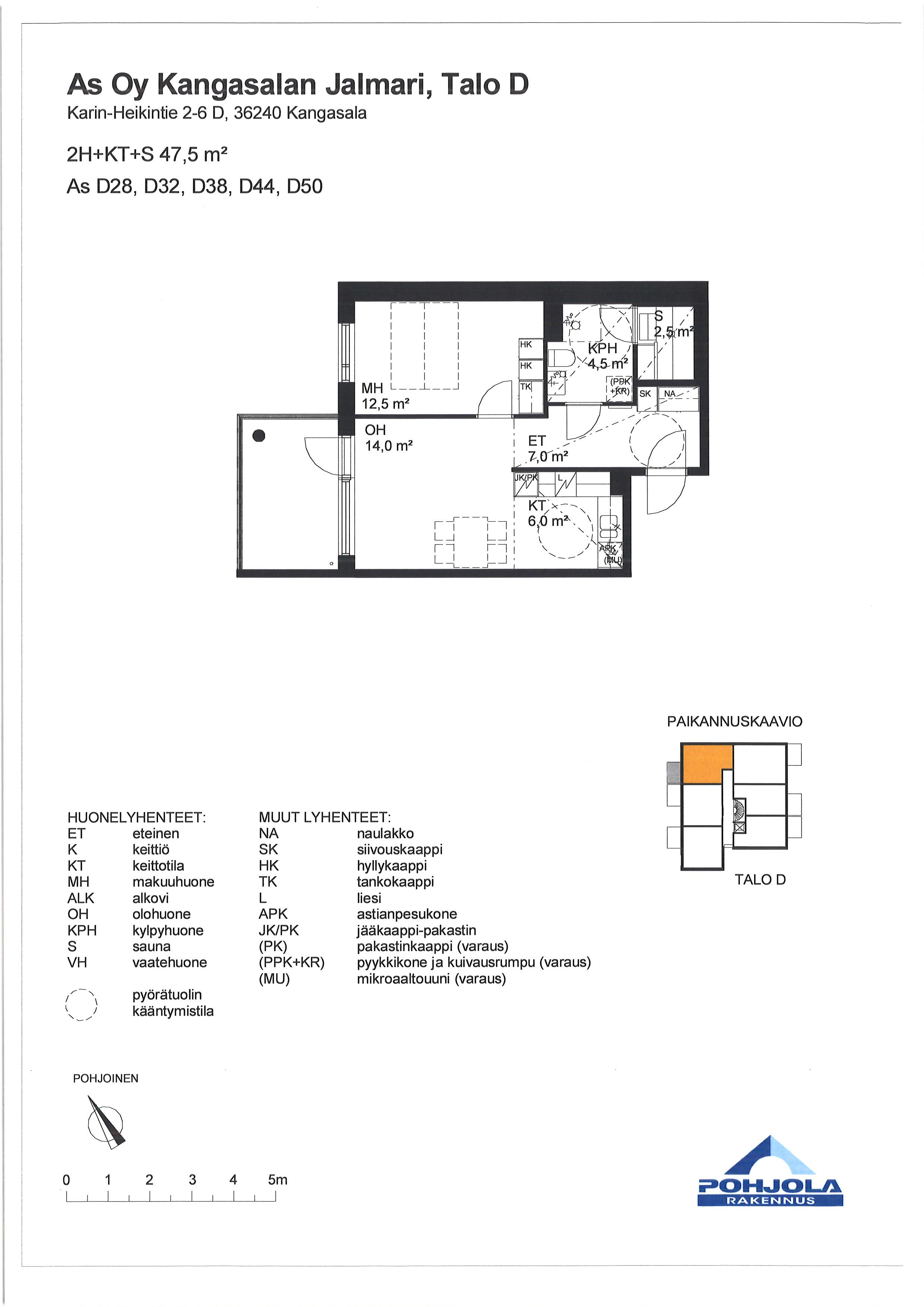
KatuosoiteKarin-Heikintie 2 D 28
Pinta-ala47.5 m²
KaupunkiKangasala
KaupunginosaVatiala
Kerros1/0
Kuntohyvä
Huoneiston vapautuminenVapautumassa 03.11.25
SaunaKyllä
Parvekkeen tiedotKyllä, lasitettu
Lemmikit sallittuKyllä
Muut ehdotAsukkaan vastuulla ottaa oma kotivakuutus. Vuokralainen tekee oman sähkösopimuksen.
Lisätiedotsavuton

Asunnon varustelu

Keittiön varusteluliesi, astianpesukone, astianpesukoneen leveys: 60cm, jää-pakastinkaappi
Kylpyhuoneen varustelupeilikaappi, pesukoneliitäntä, lattiamateriaali: laatta, seinämateriaali: laatta, lattialämmitys, asunnon sähköstä
Lattiamateriaalilaminaatti
Huoneistokohtainen varastoKyllä, irtaimistovarasto
VaatehuoneEi

Hinta ja kustannukset

Vuokra / kk710 €
Vuokravakuus710 €
Sopimuksen tyyppiToistaiseksi voimassaoleva
Vesimaksu23 €/hlö/kk

Taloyhtiön tiedot

UudiskohdeEi
Taloyhtiön nimiKarin-Heikintie 2 - As Oy Karin-Heikintie 2 Kangasala
Rakennuksen tyyppiASUINKERROSTALO
Rakennusvuosi2015
Huoneistojen lukumäärä52
Kerroksia0
HissiKyllä
EnergialuokkaC
EnergiatodistusEi
AntennityyppiKaapelitelevisiojärjestelmä
AutopaikatAutopaikkoja hallinnoi ulkopuolinen toimija, vuokrattava erikseen
Sähköauton latauspisteEi.
Yhteiset tilatulkoiluvälinevarasto
Lisätiedotlemmikit sallittu

Sijainti kartalla

Kohdetta välittää:

Joni Mäkelä

Vuokrausneuvottelija

Puh. +358405035909

joni.makela@rettamanagement.fi

Retta Asuntovuokraus, Tampere

Puh. 030 609 5555