Vapautumassa 1. kerroksen, saunallinen luhtitalokolmio, Atalan rauhalliselta ja luonnonläheiseltä alueelta. Asumismukavuutta lisäävät oma sauna, lasitettu parveke sekä laminaattilattiat. HUOM Täytäthän ensin asuntohakemuksen osoitteessa vuokraus.rettamanagement.fi/asunnot, Kiitos!
| Katuosoite | Kellonkuja 1 B 13 |
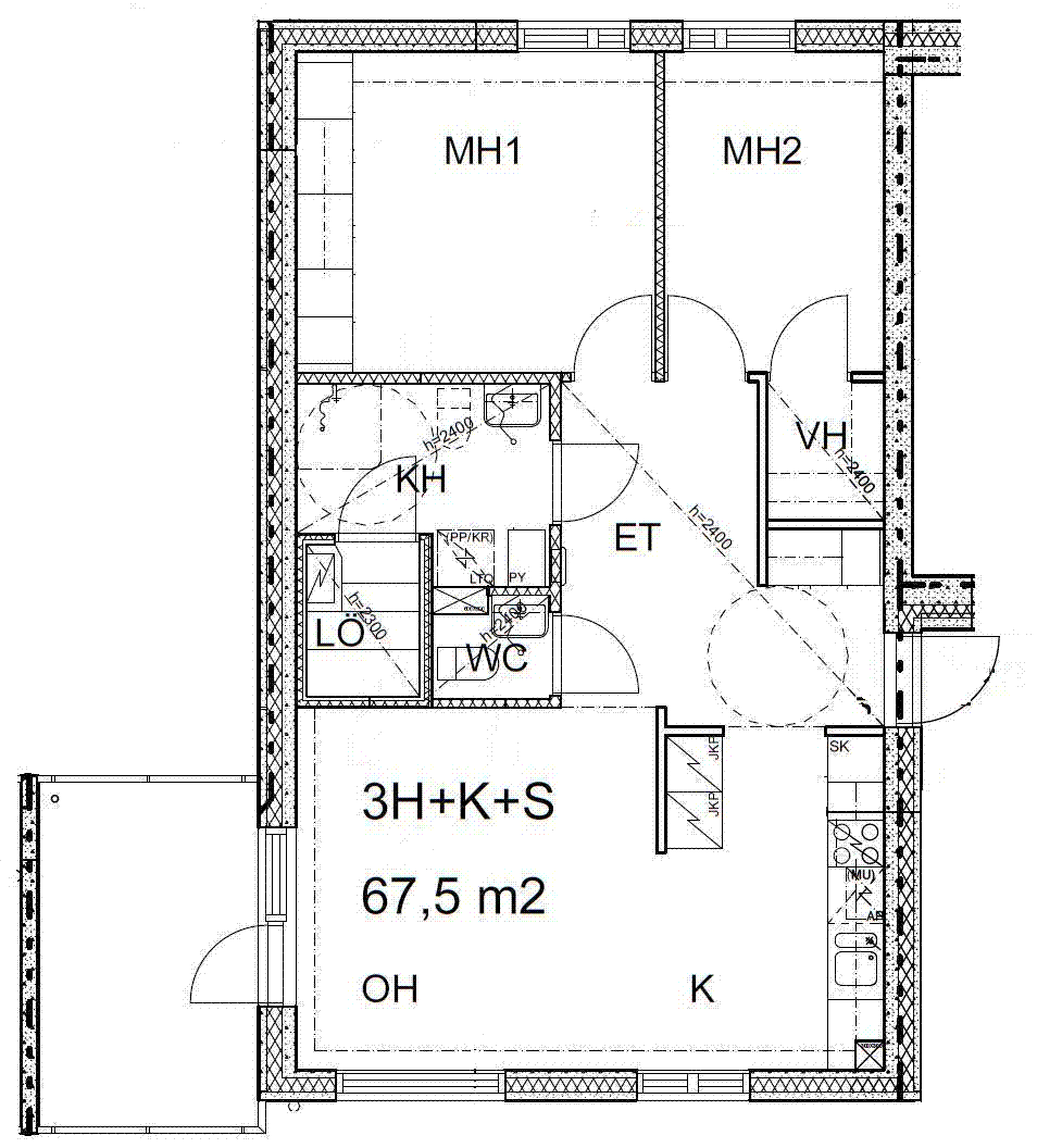
| Pinta-ala | 67.5 m² |
| Kaupunki | Tampere |
| Kaupunginosa | Atala |
| Kerros | 1/0 |
| Huoneiston vapautuminen | Heti vapaa |
| Sauna | Kyllä |
| Parvekkeen tiedot | Kyllä, lasitettu |
| Lemmikit sallittu | Kyllä |
| Muut ehdot | Asukkaan vastuulla ottaa oma kotivakuutus. Vuokralainen tekee oman sähkösopimuksen. |
| Lisätiedot | savuton |
| Keittiön varustelu | liesi, astianpesukoneen selite: tilavaraus astianpesukoneelle, jää-pakastinkaappi |
| Kylpyhuoneen varustelu | peilikaappi, pesukoneliitäntä, lattiamateriaali: laatta, seinämateriaali: laatta, lattialämmitys, sähkökulu asukkaalle |
| Lattiamateriaali | laminaatti |
| Huoneistokohtainen varasto | Kyllä, häkkivarasto |
| Vaatehuone | Kyllä |
| Vuokra / kk | 888 € |
| Vuokravakuus | 888 € |
| Sopimuksen tyyppi | Toistaiseksi voimassaoleva |
| Vesimaksu | 24 €/hlö/kk |
| Uudiskohde | Ei |
| Taloyhtiön nimi | Kellonkuja 1 - Asunto Oy Tampereen Atalan Linnapiha |
| Rakennuksen tyyppi | ASUINKERROSTALO |
| Rakennusvuosi | 2010 |
| Huoneistojen lukumäärä | 45 |
| Kerroksia | 0 |
| Hissi | Ei |
| Energialuokka | D |
| Energiatodistus | Ei |
| Autopaikat | Autopaikkoja hallinnoi ulkopuolinen toimija, vuokrattava erikseen |
| Sähköauton latauspiste | Ei. |
| Yhteiset tilat | ulkoiluvälinevarasto |
| Lisätiedot | lemmikit sallittu |
Joni Mäkelä
Vuokrausneuvottelija
Puh. +358405035909
joni.makela@rettamanagement.fiRetta Asuntovuokraus, Tampere
Puh. 030 609 5555