Asunnossa:

  • Parveke
  • Laajakaista kuuluu vuokraan
  • Huoneistokohtainen varasto
  • Astianpesukone
  • Lemmikit sallittu

Talossa:

  • Kerroksia 8
  • Hissi
  • Rakennusvuosi 2024
  • Pesutupa
  • Kuntosali
  • SmartPost

Asunnon kuvaus

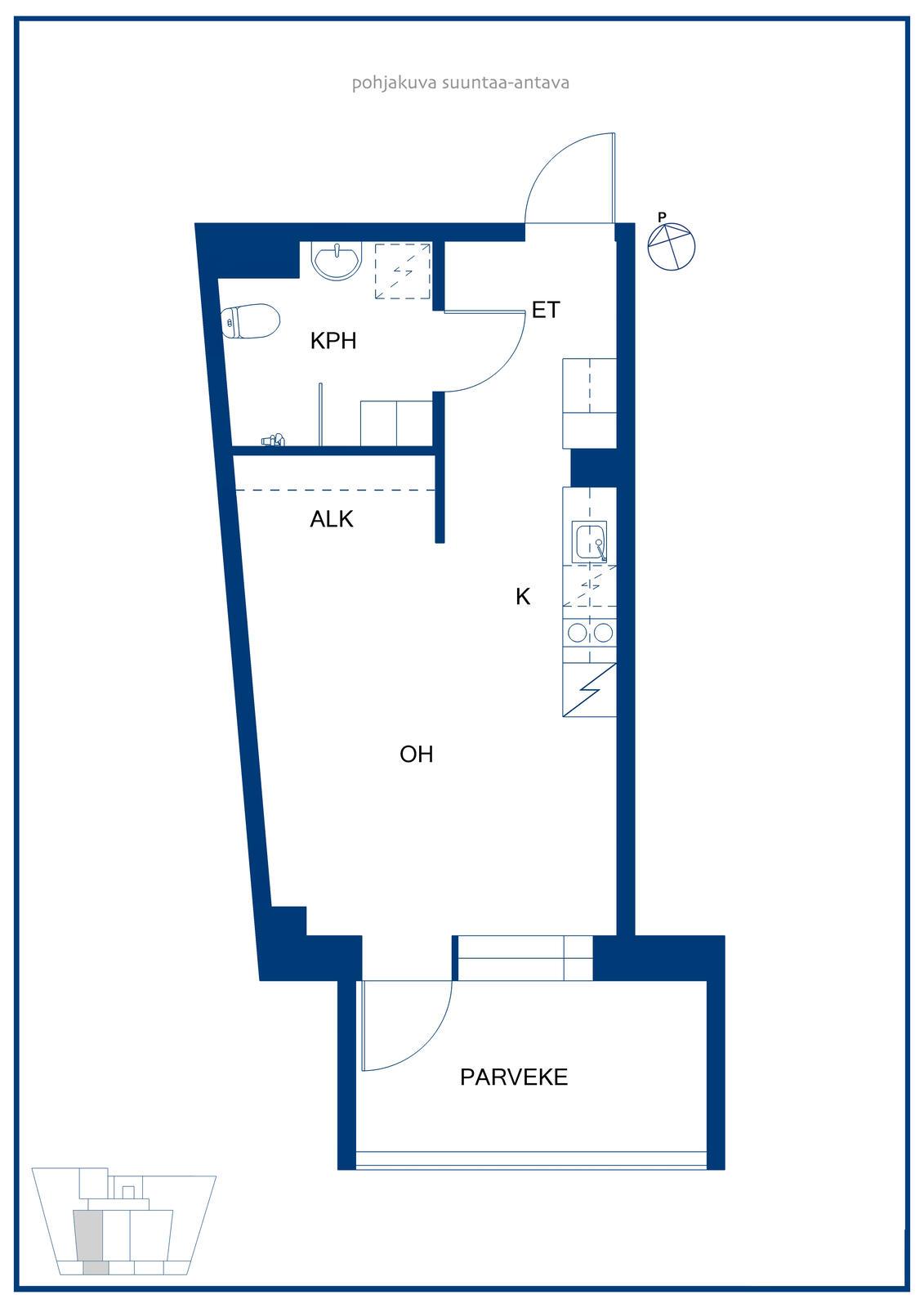
Asunto Oy Espoon Notos on valmistunut merelliseen Kivenlahteen alkuvuodesta 2024 kattavien palvelujen ja upeiden maisemien äärelle. Tämä asunto on neljännen kerroksen tilava yksiö. Asuinviihtyvyyttä lisäävät lasitettu parveke sekä alkovi. Vaaleat pintamateriaalit antavat asunnolle valoisan yleisilmeen. Huoneistossa on tasokkaat kodinkoneet sekä käytännölliset säilytysratkaisut. Myös lemmikit ovat tervetulleita. Huomioithan, että ilmoituksen mallikuvat ovat vastaavasta asunnosta ja näkymät voivat vaihdella kerroksittain. Voit vuokrata asunnon verkosta tai täyttämällä asuntohakemuksen https://vuokraus.rettamanagement.fi. Lisätietoja välittäjältä sähköpostitse etunimi.sukunimi@rettamanagement.fi. Yleisimpiin vuokraukseen liittyvissä asioissa voit olla yhteydessä asiakaspalveluumme p. 030 609 5555, arkisin klo 8-16.

Asunnon tiedot

KatuosoiteMarinkallio 10 A 16
Pinta-ala31 m²
KaupunkiEspoo
KaupunginosaKivenlahti
Kerros4/8
Huoneiston vapautuminenVapautumassa 03.11.25
SaunaEi
Parvekkeen tiedotKyllä, lasitettu
Lemmikit sallittuKyllä
Muut ehdotAsukkaan vastuulla ottaa oma kotivakuutus. Vuokralainen tekee oman sähkösopimuksen.
Lisätiedotsavuton

Asunnon varustelu

Keittiön varusteluliesi, lieden tyyppi: keraaminen liesi, astianpesukone, jää-pakastinkaappi
Kylpyhuoneen varustelupeilikaappi, pesukoneliitäntä, lattiamateriaali: laatta, seinämateriaali: laatta
Lattiamateriaalilaminaatti
Huoneistokohtainen varastoKyllä, irtaimistovarasto
VaatehuoneEi
LisätiedotSavuton huoneisto

Hinta ja kustannukset

Vuokra / kk735 €
Vuokravakuus250 €
Sopimuksen tyyppiToistaiseksi voimassaoleva, vuokrasopimus voi päättyä aikaisintaan 6 kuukauden päästä ilman sopimussakkoa
Vesimaksu23 €/hlö/kk

Taloyhtiön tiedot

UudiskohdeEi
Taloyhtiön nimiMarinkallio 10 - Asunto Oy Espoon Notos
Rakennuksen tyyppiASUINKERROSTALO
Rakennusvuosi2024
Huoneistojen lukumäärä30
Kerroksia8
HissiKyllä
EnergialuokkaB
EnergiatodistusEi
AutopaikatAutopaikkoja hallinnoi ulkopuolinen toimija, vuokrattava erikseen
Sähköauton latauspisteEi.
Yhteiset tilatkuivaushuone, kerhohuone, kuntosali, smartpost, pesutupa
Lisätiedotsavuton talo, lemmikit sallittu

Sijainti kartalla

Oletko kiinnostunut tästä asunnosta?

Kohdetta välittää:

Carla Järventausta

Tiiminvetäjä, asuntovuokrauspalvelut

Puh. +358401597513

carla.jarventausta@rettamanagement.fi

Retta Asuntovuokraus, Pääkaupunkiseutu