














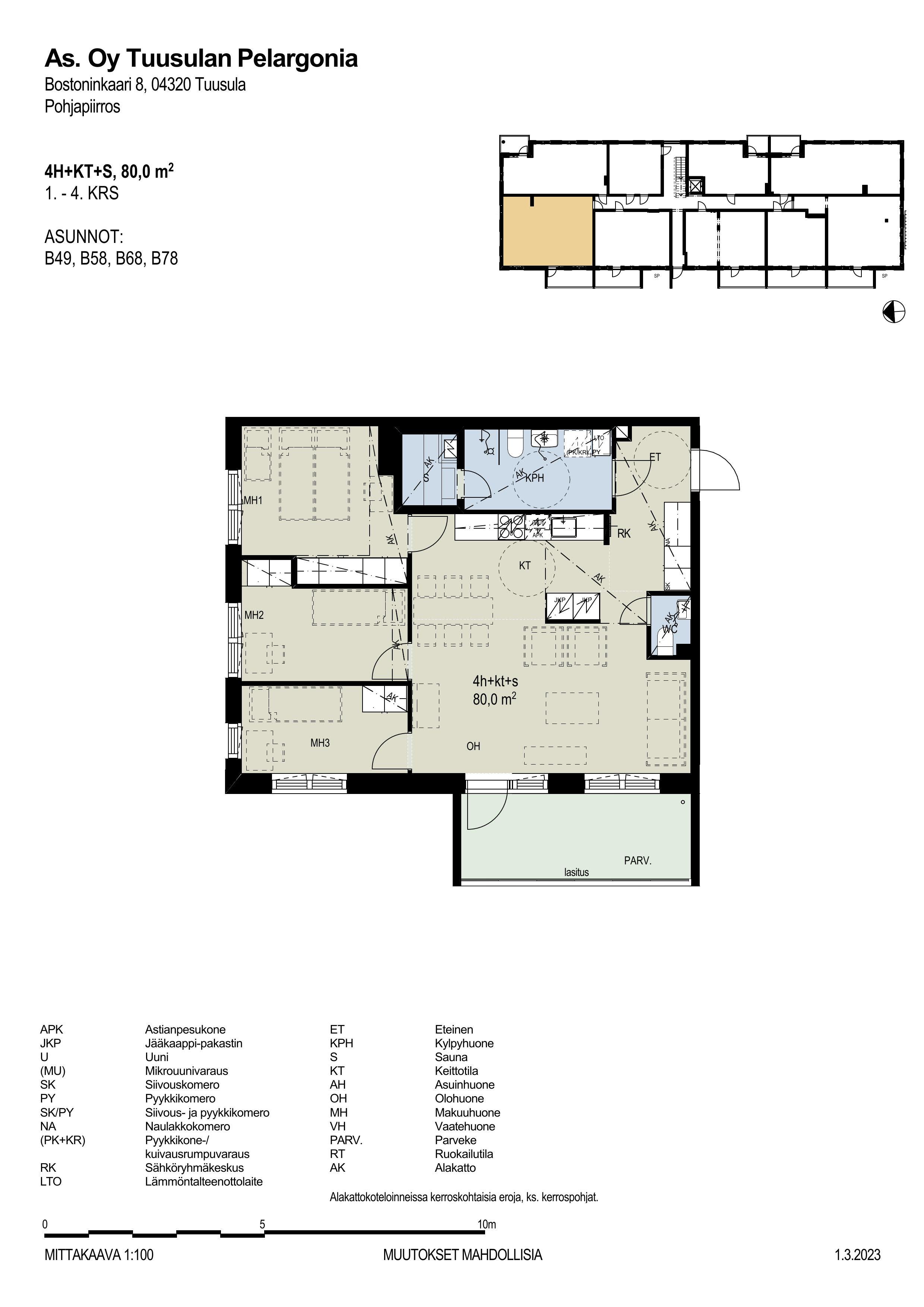
4h, kt, sauna, 80 m²
1295 €/kk
Vuokravakuus 250 €
Vuokrattavana moderni 3. kerroksen saunallinen perhekoti Tuusulan Bostonin uudisalueella. Uudenveroinen tilava neliö, jossa on kauniit vaaleat pintamateriaalit sekä lattiamateriaalina kauttaaltaan vaaleasävyinen tammilaminaatti. Avokeittiössä laadukas varustelutaso, mm. astianpesukone, induktioliesi ja erillisuuni. Kaikissa kolmessa makuuhuoneessa tilavat vaatekaapistot. Laatoitetussa kylpyhuoneessa on paikkavaraus pesutornille, miellyttävä sähköinen mukavuuslattialämmitys sekä oma sauna. Arjen sujuvuutta tuo erillinen pikku-wc, joka sijaitsee eteisen yhteydessä. Upea aurinkoinen lasitettu parveke sekä maksuton Elisan 50M taloyhtiölaajakaista takaavat asumisen mukavuuden.
| Katuosoite | Bostoninkaari 8 B 58 |
| Pinta-ala | 80 m² |
| Kaupunki | Tuusula |
| Kaupunginosa | Boston |
| Kerros | 2/4 |
| Kunto | hyvä |
| Huoneiston vapautuminen | Vapautumassa 02.01.26 |
| Sauna | Kyllä |
| Parvekkeen tiedot | Kyllä, lasitettu, ilmansuunta: länsi |
| Lemmikit sallittu | Kyllä |
| Muut ehdot | Asukkaan vastuulla ottaa oma kotivakuutus. Vuokralainen tekee oman sähkösopimuksen. |
| Lisätiedot | savuton |
| Keittiön varustelu | liesi, lieden tyyppi: induktio, astianpesukone, jää-pakastinkaappi, kylmäkalusteiden selite: 2 x jää-pakastinkaappi, erillisuuni, liesikupu |
| Kylpyhuoneen varustelu | peilikaappi, pesukoneliitäntä, lattiamateriaali: laatta, seinämateriaali: laatta, erillinen wc, lattialämmitys, sähköinen mukavuuslattialämmitys huoneiston sähköstä |
| Lattiamateriaali | laminaatti |
| Huoneistokohtainen varasto | Kyllä, lämmin irtaimistovarasto kellarikerroksessa |
| Vaatehuone | Ei |
| Lisätiedot | Savuton huoneisto |
| Vuokra / kk | 1295 € |
| Vuokravakuus | 250 € |
| Sopimuksen tyyppi | Toistaiseksi voimassaoleva, vuokrasopimus voi päättyä aikaisintaan 6 kuukauden päästä ilman sopimussakkoa |
| Vesimaksu | 23 €/hlö/kk |
| Vesimaksun lisätiedot | Vesimaksuennakko. Vesi tasataan kahdesti (2) vuodessa tai vuokrasopimuksen päättyessä. |
| Uudiskohde | Ei |
| Taloyhtiön nimi | Bostoninkaari 8 - Asunto Oy Tuusulan Pelargonia |
| Rakennuksen tyyppi | ASUINKERROSTALO |
| Rakennusvuosi | 2024 |
| Huoneistojen lukumäärä | 103 |
| Kerroksia | 4 |
| Hissi | Kyllä |
| Energialuokka | A2018 |
| Energiatodistus | Kyllä |
| Antennityyppi | Kaapelitelevisiojärjestelmä |
| Autopaikat | Autopaikkoja hallinnoi ulkopuolinen toimija, vuokrattava erikseen |
| Sähköauton latauspiste | Kyllä. 7 kpl, keskinopea lataus. Sähköauton latauspaikka 70 €/kk + käyttösähkö |
| Yhteiset tilat | kuivaushuone, ulkoiluvälinevarasto, sauna, pesutupa |
| Lisätiedot | savuton talo, lemmikit sallittu |
Jenna Tuovinen
Vuokravälittäjä
Puh. +358404822225
jenna.tuovinen@rettamanagement.fiRetta Asuntovuokraus, Hyvinkää
Puh. 030 609 5555