Asunnossa:

  • Parveke
  • Laajakaista kuuluu vuokraan
  • Huoneistokohtainen varasto
  • Astianpesukone
  • Lemmikit sallittu

Talossa:

  • Kerroksia 7
  • Hissi
  • Sauna
  • Rakennusvuosi 2017
  • Pesutupa

Asunnon kuvaus

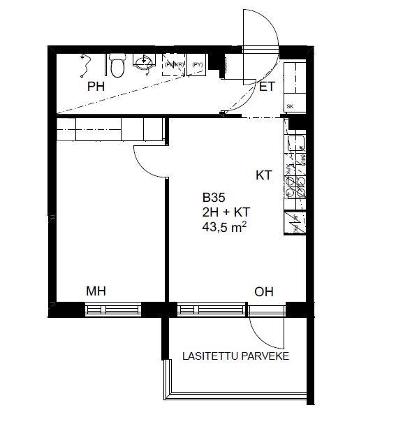
Kuudennen kerroksen kaksio lasitetulla parvekkeella. Erinomaisen pohjaratkaisun ansiosta hukkaneliöitä ei ole. Makuuhuoneen yhteydessä mukavasti säilytystilaa. Laatoitetussa kylpyhuoneessa liitäntä pyykinpesukoneelle. Sijainti on mitä parhain, päivittäiset palvelut sekä erinomaiset kulkuyhteydet löytyvät kävelymatkan päästä. Ulkoilu- sekä urheilumahdollisuudet ovat aivan ulottuvillasi, vierestä löytyvät mm. kauniit lenkkeilymaastot sekä monipuolinen urheiluhalli kuntosaleineen ja tenniskenttineen. Ilmoituksen kuvat huoneistoa vastaavasta asunnosta. Huomioithan, että näkymät vaihtelevat kerroksien välillä. Voit vuokrata asunnon verkosta tai täyttämällä asuntohakemuksen. Lisätietoja välittäjältä sähköpostitse. Yleisimpiin vuokraukseen liittyvissä asioissa voit olla yhteydessä asiakaspalveluumme p. 030 609 5555, arkisin klo 8-16.

Asunnon tiedot

KatuosoiteUllanmäentie 14 C 84
Pinta-ala43.5 m²
KaupunkiEspoo
KaupunginosaYmmersta
Kerros6/7
Huoneiston vapautuminenVapautumassa 01.01.26
SaunaEi
Parvekkeen tiedotKyllä, lasitettu
Lemmikit sallittuKyllä
Muut ehdotAsukkaan vastuulla ottaa oma kotivakuutus. Vuokralainen tekee oman sähkösopimuksen.
Lisätiedotsavuton

Asunnon varustelu

Keittiön varusteluliesi, lieden tyyppi: keraaminen liesi, astianpesukone, jää-pakastinkaappi
Kylpyhuoneen varustelupeilikaappi, pesukoneliitäntä, lattiamateriaali: laatta, seinämateriaali: laatta, lattialämmitys, mukavuuslattialämmitys asunnon omasta sähköstä
Lattiamateriaalilaminaatti
Huoneistokohtainen varastoKyllä, irtaimistovarasto
VaatehuoneEi
LisätiedotSavuton huoneisto

Hinta ja kustannukset

Vuokra / kk889 €
Vuokravakuus0 €
Sopimuksen tyyppiToistaiseksi voimassaoleva, vuokrasopimus voi päättyä aikaisintaan 12 kuukauden päästä ilman sopimussakkoa
Vesimaksu0 €/hlö/kk
Vesimaksun lisätiedotVesimaksu laskutetaan toteutuneen kulutuksen mukaan 4krt/vuosi.

Taloyhtiön tiedot

UudiskohdeEi
Taloyhtiön nimiUllanmäentie 14 - Asunto Oy Espoon Etuhovi II
Rakennuksen tyyppiASUINKERROSTALO
Rakennusvuosi2017
Huoneistojen lukumäärä87
Kerroksia7
HissiKyllä
EnergialuokkaC2013
EnergiatodistusEi
AutopaikatAutopaikkoja hallinnoi ulkopuolinen toimija, vuokrattava erikseen
Sähköauton latauspisteEi.
Yhteiset tilatsauna, pesutupa
Lisätiedotsavuton talo, lemmikit sallittu

Sijainti kartalla

Oletko kiinnostunut tästä asunnosta?

Kohdetta välittää:

Sara Huuska

Vuokrausneuvottelija

sara.huuska@rettamanagement.fi

Retta Asuntovuokraus, Pääkaupunkiseutu