Asunnossa:

  • Parveke
  • Laajakaista kuuluu vuokraan
  • Huoneistokohtainen varasto
  • Astianpesukone
  • Lemmikit sallittu

Talossa:

  • Hissi
  • Sauna
  • Rakennusvuosi 2017
  • Pesutupa

Asunnon kuvaus

Suositulla Kuninkaantammen alueella iso kaksio terassipatiolla! Olohuoneesta on helppo jakaa oma erillinen huonetila kalusteratkaisuilla vaikkapa työhuoneeksi. Laadukkaat kaluste- ja materiaalivalinnat. Lemmikit on sallittu. Kiinnostuitko? Asuntoa haetaan täyttämällä hakemus asuntoilmoitukselta! Yleisissä asunnonhakuun liittyvissä kysymyksissä voitte olla yhteydessä myös asiakaspalveluumme, p. 010 228 5555

Asunnon tiedot

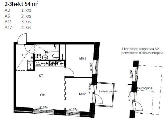
KatuosoiteTaidemaalarinkatu 10 A 2
Pinta-ala54 m²
KaupunkiHelsinki
KaupunginosaKuninkaantammi
Kerros1/0
Kuntohyvä
Huoneiston vapautuminenVapautumassa 01.01.26
SaunaEi
Parvekkeen tiedotKyllä, lasitettu, lasitettu
Lemmikit sallittuKyllä
Muut ehdotAsukkaan vastuulla ottaa oma kotivakuutus. Vuokralainen tekee oman sähkösopimuksen.
Lisätiedotsavuton

Asunnon varustelu

Keittiön varusteluliesi, lieden selite: keraaminen keittotaso, kalusteuuni, astianpesukone, jää-pakastinkaappi
Kylpyhuoneen varustelupeilikaappi, pesukoneliitäntä, lattiamateriaali: laatta, seinämateriaali: laatta, lattialämmitys, mukavuuslattialämmitys asukkaan sähköstä
Lattiamateriaaliparketti
Huoneistokohtainen varastoKyllä, Irtainvarasto
VaatehuoneEi

Hinta ja kustannukset

Vuokra / kk1012 €
Vuokravakuus1012 €
Sopimuksen tyyppiToistaiseksi voimassaoleva, vuokrasopimus voi päättyä aikaisintaan 6 kuukauden päästä ilman sopimussakkoa
Vesimaksu24 €/hlö/kk

Taloyhtiön tiedot

UudiskohdeEi
Taloyhtiön nimiTaidemaalarinkatu 10 - Asunto Oy Helsingin Venny
Rakennuksen tyyppiASUINKERROSTALO
Rakennusvuosi2017
Huoneistojen lukumäärä10
Kerroksia0
HissiKyllä
EnergialuokkaC 2013
EnergiatodistusEi
AutopaikatAutopaikkoja hallinnoi ulkopuolinen toimija, vuokrattava erikseen
Sähköauton latauspisteEi.
Yhteiset tilatkerhohuone, ulkoiluvälinevarasto, sauna, pesutupa
Lisätiedotlemmikit sallittu

Sijainti kartalla

Kohdetta välittää:

Jonna Hyrylä

Vuokrausneuvottelija

Puh. +358401209249

Jonna.Hyryla@rettamanagement.fi

Retta Asuntovuokraus, Pääkaupunkiseutu