Asunnossa:

  • Parveke
  • Sauna
  • Laajakaista kuuluu vuokraan
  • Huoneistokohtainen varasto
  • Astianpesukone
  • Lemmikit sallittu

Talossa:

  • Hissi
  • Rakennusvuosi 2016

Asunnon kuvaus

Halutulta Konepajan asuinalueelta reilun kokoinen ensimmäisen kerroksen kaksio etsii uusia asukkaita. Asunnolla on erinomainen ja keskeinen sijainti, hyvät kulkuyhteydet talon lähettyviltä, sekä kauppakeskus Tripla palveluineen löytyy kävelyetäisyyden päästä. Asunnossa on toimiva pohjaratkaisu, sekä modernit kaluste- ja materiaalivalinnat. Lasitettu parveke lisää asumisviihtyvyyttä ja tämän kodin kruunaa tietysti oma sauna. Lemmikit ovat tervetulleita. Kysy vuokrattavista autopaikoista lisää välittäjältä. Mikäli kiinnostuit asunnosta, täytäthän asuntohakemuksen Rettan sivuilta. Hyväksytyn hakemuksen jälkeen on mahdollista sopia asunnon esittelystä. Hakemus ei sido mihinkään. Yleisissä asunnonhakuun liittyvissä kysymyksissä voitte olla yhteydessä asiakaspalveluumme, p. 030 609 5555.

Asunnon tiedot

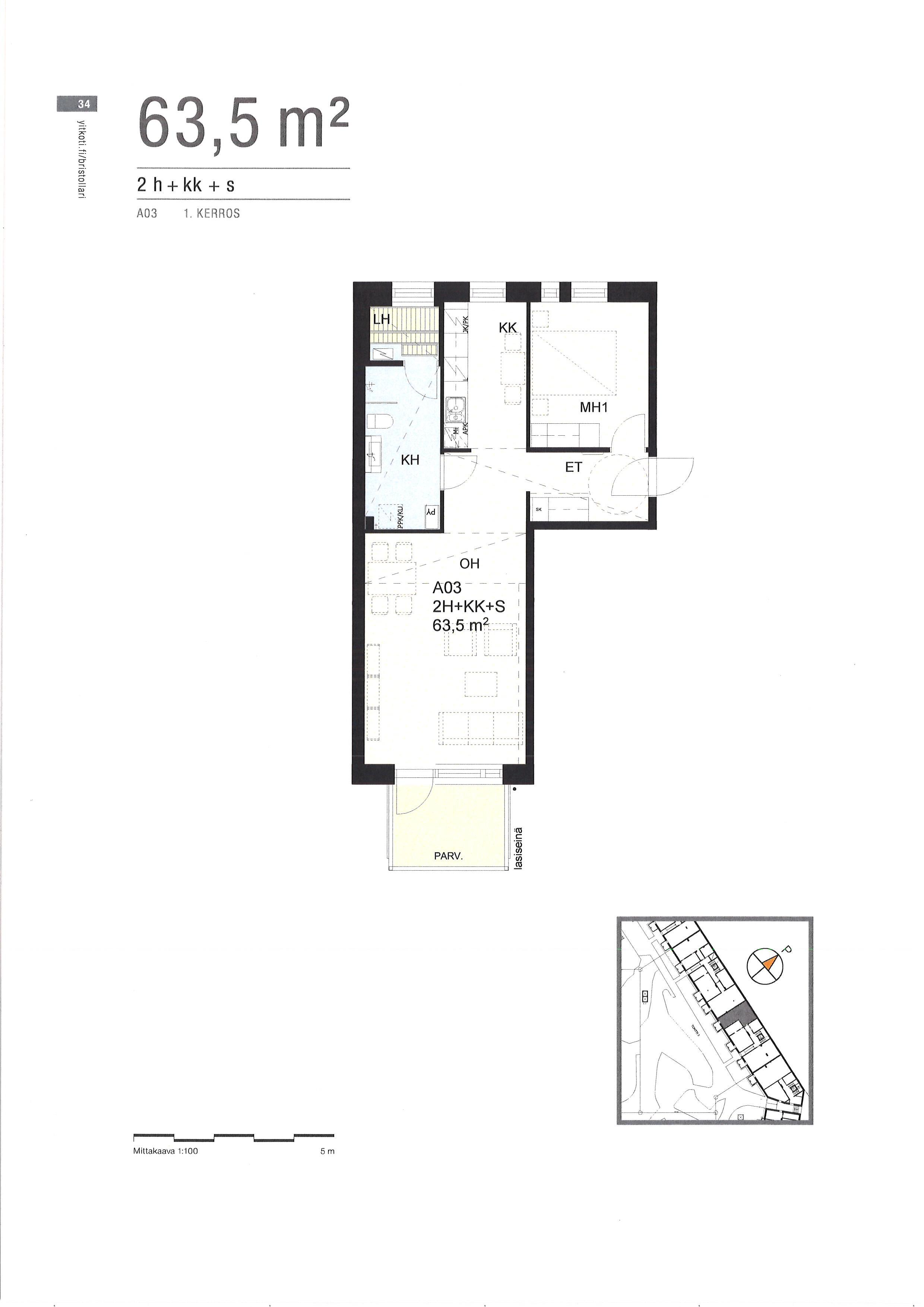
KatuosoiteAleksis Kiven katu 43 A 3
Pinta-ala63.5 m²
KaupunkiHelsinki
KaupunginosaVallila
Kerros1/0
Kuntohyvä
Huoneiston vapautuminenHeti vapaa
SaunaKyllä
Parvekkeen tiedotKyllä, lasitettu
Lemmikit sallittuKyllä
Muut ehdotAsukkaan vastuulla ottaa oma kotivakuutus. Vuokralainen tekee oman sähkösopimuksen.
Lisätiedotsavuton

Asunnon varustelu

Keittiön varusteluliesi, lieden selite: keraaminen keittotaso, kalusteuuni, astianpesukone, jää-pakastinkaappi
Kylpyhuoneen varustelupeilikaappi, pesukoneliitäntä, lattiamateriaali: laatta, seinämateriaali: laatta, lattialämmitys, mukavuuslämmitys asunnon sähköstä
Lattiamateriaaliparketti
Huoneistokohtainen varastoKyllä, Irtainvarasto
VaatehuoneEi

Hinta ja kustannukset

Vuokra / kk1368 €
Vuokravakuus1368 €
Sopimuksen tyyppiToistaiseksi voimassaoleva, vuokrasopimus voi päättyä aikaisintaan 6 kuukauden päästä ilman sopimussakkoa
Vesimaksu24 €/hlö/kk

Taloyhtiön tiedot

UudiskohdeEi
Taloyhtiön nimiAleksis Kiven katu 43 - Asunto Oy Helsingin Bristollari
Rakennuksen tyyppiASUINKERROSTALO
Rakennusvuosi2016
Huoneistojen lukumäärä8
Kerroksia0
HissiKyllä
EnergialuokkaA 2013
EnergiatodistusEi
AutopaikatAutopaikkoja hallinnoi ulkopuolinen toimija, vuokrattava erikseen
Sähköauton latauspisteEi.
Yhteiset tilatkerhohuone, ulkoiluvälinevarasto
Lisätiedotlemmikit sallittu

Sijainti kartalla

Kohdetta välittää:

Sonja Gupta

Vuokrausneuvottelija

Puh. +358444946420

sonja.gupta@rettamanagement.fi

Retta Asuntovuokraus, Pääkaupunkiseutu