

















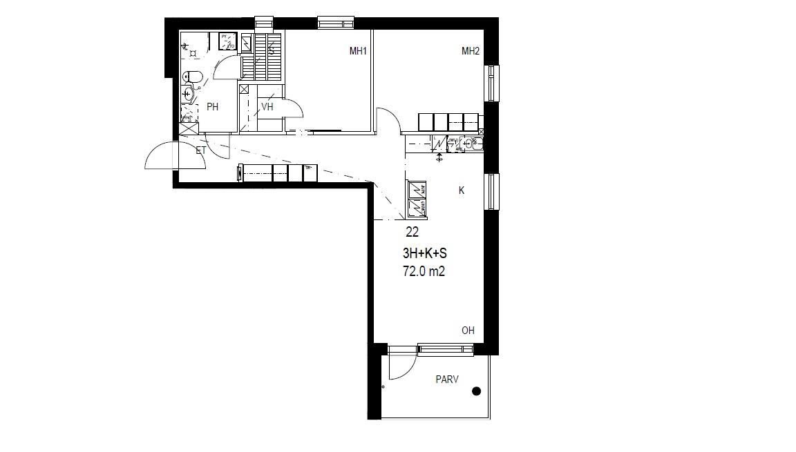
3h, kt, s, lasitettu parveke, 72 m²
1030 €/month
Rental deposit 350 €
Vuokrattavana tilava saunallinen kolmio Keravan Ahjossa. Tässä kodikkaassa asunnossa on kaunis vaaleasävyinen keittiö, joka on varusteltu modernein kodinkonein astianpesukoneella, keraamisella liedellä sekä jääkaappipakastimella. Tilava olohuone sekä asunnon vaaleat pintamateriaalit mahdollistavat monipuoliset sisustusratkaisut. Kylpyhuoneessa on paikkavaraus pesutornille, miellyttävä vesikiertoinen mukavuuslattialämmitys sekä oma sauna. Asumisen mukavuutta tuo iso lasitettu parveke sekä maksuton Telian 10M laajakaista, joka sisältyy vuokraan.
| Street address | Ahjonraitti 1 B 22 |
| Floor area | 72 m² |
| City | Kerava |
| District | Ahjo |
| Floor | 2/4 |
| Condition | hyvä |
| Release of the apartment | Becoming available 02.02.26 |
| Sauna | Yes, sähkökiuas |
| Balcony details | Yes, lasitettu, ilmansuunta: kaakko |
| Pets allowed | Yes |
| Other terms and conditions | Asukkaan vastuulla ottaa oma kotivakuutus. Vuokralainen tekee oman sähkösopimuksen. |
| Additional information | savuton |
| Kitchen equipment | liesi, lieden tyyppi: keraaminen liesi, astianpesukone, jää-pakastinkaappi, uuni, liesikupu |
| Bathroom equipment | peilikaappi, pesukoneliitäntä, lattiamateriaali: laatta, seinämateriaali: laatta, lattialämmitys, vesikiertoinen mukavuuslattialämmitys |
| Floor material | laminaatti |
| Apartment-specific storage unit | Yes, lämmin irtaimistovarasto erillisrakennuksessa |
| Walk-in closet | Yes |
| Additional information | Savuton huoneisto |
| Rent / month | 1030 € |
| Rental deposit | 350 € |
| Type of contract | Open ended rental agreement |
| Water charge | 23 €/person/month |
| New building | No |
| Housing company name | Ahjonraitti 1 - Asunto Oy Keravan Suometar |
| Building type | ASUINKERROSTALO |
| Built in | 2014 |
| Number of apartments | 35 |
| Floors | 4 |
| Lift | Yes |
| Energy class | B 2013 |
| Energy certificate | Yes |
| Antenna system | Kaapelitelevisiojärjestelmä |
| Parking spaces | Autopaikkoja hallinnoi ulkopuolinen toimija, vuokrattava erikseen |
| Electric car charger | No. |
| Common spaces | kuivaushuone, ulkoiluvälinevarasto |
| Additional information | savuton talo, lemmikit sallittu |
Jenna Tuovinen
Vuokravälittäjä
Tel. +358404822225
jenna.tuovinen@rettamanagement.fiRetta Asuntovuokraus, Hyvinkää
Tel. 030 609 5555