


















Tervetuloa tutustumaan tähän upeaan seitsemännen kerroksen kaksioon, joka sijaitsee vuonna 2023 valmistuneessa talossa Helsingin Aurinkolahdessa. Tämä moderni koti on varustettu kauniilla vaaleilla pinnoilla, jotka tuovat tilaan raikkautta ja valoa. Asunnon ehdoton valtti on tilava lasitettu parveke, joka tarjoaa upeat näkymät ja mahdollisuuden nauttia ulkoilmasta ympäri vuoden. Aurinkolahden alue on tunnettu erinomaisista palveluistaan ja loistavista kulkuyhteyksistään. Vain sadan metrin päässä sijaitsee Kauppakeskus Columbus, joka tarjoaa monipuoliset ostosmahdollisuudet sekä päivittäiset palvelut aivan käden ulottuvilla. Lisäksi alueella on upeita ulkoilumahdollisuuksia, sillä Aurinkolahden uimaranta ja Uutelan luonnonsuojelualue ovat vain kävelymatkan päässä. Näissä kauniissa kohteissa voit nauttia luonnosta, rentoutua ja viettää aikaa ulkoillen. Tämä kaksio on ihanteellinen koti sinulle, joka arvostat modernia asumista keskeisellä sijainnilla. Aurinkolahden alue tarjoaa asukkailleen loistavat puitteet ja viihtyisän asuinympäristön. Tule ja löydä uusi kotisi Aurinkolahdessa! Myös lemmikit ovat tervetulleita! Kiinnostuitko? Voit vuokrata asunnon suoraan verkosta tai täyttää asuntohakemuksen osoitteessa: https://vuokraus.rettamanagement.fi/asunnot Tiedustelut vuokranvälittäjältä etunimi.sukunimi@rettamanagement.fi. Yleisimpiin asuntovuokrauksen liittyviin kysymyksiin vastaa myös Retta asiakaspalvelu arkisin 8-16 puh: 030 609 5000
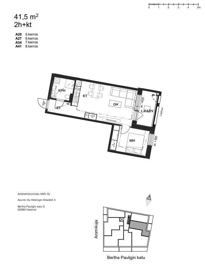
| Street address | Bertha Pauligin katu 3 A 34 |
| Floor area | 41.5 m² |
| City | Helsinki |
| District | Aurinkolahti |
| Floor | 7/0 |
| Condition | erinomainen |
| Release of the apartment | Immediately vacant |
| Sauna | No |
| Balcony details | Yes, lasitettu |
| Pets allowed | Yes |
| Other terms and conditions | Asukkaan vastuulla ottaa oma kotivakuutus. Vuokralainen tekee oman sähkösopimuksen. |
| Additional information | savuton |
| Kitchen equipment | liesi, lieden tyyppi: keraaminen liesi, lieden selite: keraaminen liesitaso- ja kalusteuuni, astianpesukone, jää-pakastinkaappi, liesituuletin |
| Bathroom equipment | pesukoneliitäntä, lattiamateriaali: laatta, seinämateriaali: laatta, lattialämmitys, sähkötoiminen mukavuuslämmitys, asunnon sähköstä, pyykkikaappi |
| Floor material | laminaatti |
| Apartment-specific storage unit | Yes, Irtaimistovarasto |
| Walk-in closet | No |
| Additional information | Savuton huoneisto |
| Rent / month | 989 € |
| Rental deposit | 250 € |
| Type of contract | Open ended rental agreement, rental agreement can be terminated at the earliest after 6 months without a contractual penalty |
| Campaign information | Ensimmäisen kuukauden vuokra 0 € ja 300 € lahjakortti S-ryhmän liikkeisiin! Etu voimassa uusille asiakkaille uusiin vuokrasopimuksiin. Vuokraedun saaminen edellyttää 6 kuukauden sitoutumista asuntoon. |
| Water charge | 23 €/person/month |
| New building | No |
| Housing company name | Bertha Pauligin katu 3 - Asunto Oy Helsingin Sitadelli 4 |
| Building type | ASUINKERROSTALO |
| Built in | 2023 |
| Number of apartments | 53 |
| Floors | 0 |
| Lift | Yes |
| Energy class | B2018 |
| Energy certificate | No |
| Parking spaces | Autopaikkoja hallinnoi ulkopuolinen toimija, vuokrattava erikseen |
| Electric car charger | No. |
| Common spaces | kerhohuone, sauna, pesutupa |
| Additional information | savuton talo, lemmikit sallittu |
Kairit Eenmaa
Vuokravälittäjä
Tel. +358447474855
Kairit.Eenmaa@rettamanagement.fiRetta Asuntovuokraus, Pääkaupunkiseutu