






Viidennen kerroksen reilun kokoinen yksiö etsii uutta asukasta. Sijainti asunolla on erinomainen, lähikauppa Alepa Roihuvuori muutaman minuutin kävelymatkan päässä, sekä hyvät kulkuyhteydet talon lähettyviltä. Myös kauppakeskus Itiksen kattavat palvelut alle 2km etäisyydellä asunnolta. Asunnossa on toimiva pohjaratkaisu, sekä modernit kaluste- ja materiaalivalinnat. Lemmikit ovat tervetulleita. Kysy vuokrattavista autopaikoista lisää välittäjältä. Mikäli kiinnostuit asunnosta, täytäthän asuntohakemuksen Rettan sivuilta. Hyväksytyn hakemuksen jälkeen on mahdollista sopia asunnon esittelystä. Hakemus ei sido mihinkään. Yleisissä asunnonhakuun liittyvissä kysymyksissä voitte olla yhteydessä asiakaspalveluumme, p. 030 609 5555
| Street address | Strömsinlahdenpolku 11 A 24 |
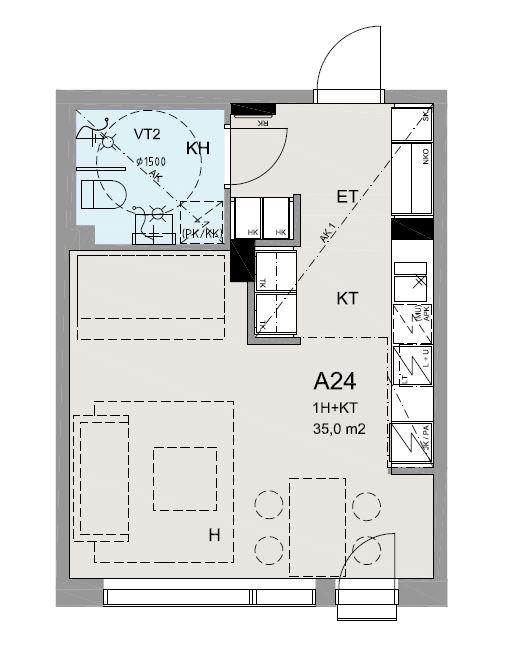
| Floor area | 35 m² |
| City | Helsinki |
| District | Roihuvuori |
| Floor | 5/0 |
| Condition | erinomainen |
| Release of the apartment | Immediately vacant |
| Sauna | No |
| Balcony details | Yes, ranskalainen |
| Pets allowed | Yes |
| Other terms and conditions | Asukkaan vastuulla ottaa oma kotivakuutus. Vuokralainen tekee oman sähkösopimuksen. |
| Additional information | savuton |
| Kitchen equipment | liesi, lieden selite: keraaminen keittotaso, astianpesukone, jääkaappi |
| Bathroom equipment | pesukoneliitäntä, lattiamateriaali: laatta, seinämateriaali: laatta, lattialämmitys, mukavuuslattialämmitys asunnon sähköstä |
| Floor material | parketti |
| Apartment-specific storage unit | Yes, Irtainvarasto |
| Walk-in closet | No |
| Rent / month | 869 € |
| Rental deposit | 869 € |
| Type of contract | Open ended rental agreement, rental agreement can be terminated at the earliest after 12 months without a contractual penalty |
| Campaign information | Kahden ensimmäisen kuukauden vuokra 0 €. Etu käytettävissä vuokranmaksuun aikavälillä 1.1.-31.3.2026. Edun saaminen edellyttää 12 kuukauden sitoutumista asumiseen. Etu on voimassa uusiin vuokrasopimuksiin, jotka allekirjoitettu 31.12.2025 mennessä. |
| Water charge | 24 €/person/month |
| New building | No |
| Housing company name | Strömsinlahdenpolku 11 - Asunto Oy Helsingin Hohto |
| Building type | ASUINKERROSTALO |
| Built in | 2019 |
| Number of apartments | 8 |
| Floors | 0 |
| Lift | Yes |
| Energy class | C 2018 |
| Energy certificate | No |
| Parking spaces | Autopaikkoja hallinnoi ulkopuolinen toimija, vuokrattava erikseen |
| Electric car charger | No. |
| Common spaces | kerhohuone, ulkoiluvälinevarasto, sauna |
| Additional information | lemmikit sallittu |
Sonja Gupta
Vuokrausneuvottelija
Tel. +358444946420
sonja.gupta@rettamanagement.fiRetta Asuntovuokraus, Pääkaupunkiseutu