Espoo, Kilo

Nihtitorpankuja 5 B 88

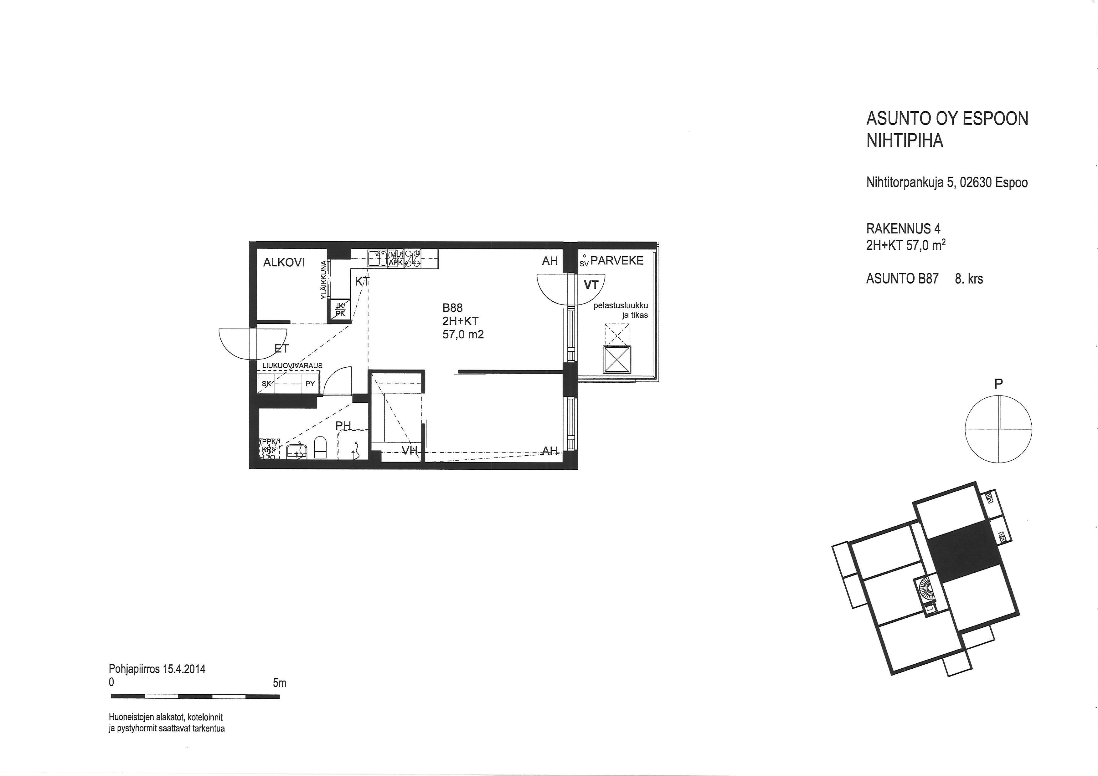
Nihtitorpankuja 5 B - Asunto Oy Espoon Nihtipiha

3h, kt, 57

925 €/month

Rental deposit 350 € / 925 € depending on contract type

In the apartment:

  • Balcony
  • Broadband included in the rent
  • Apartment-specific storage unit
  • Walk-in closet
  • Dishwasher
  • Pets allowed

In the building:

  • Lift
  • Sauna
  • Construction year 2015

Apartment description

Erinomaisella pohjaratkaisulla oleva kahdeksannen kerroksen alkovillinen kaksio. Asunnossa vaaleat pintamateriaalit ja laatoitetussa kylpyhuoneessa liitäntä pyykinpesukoneelle. Tilavassa makuuhuoneessa mukavasti säilytystilaa. Alkovi toimii erinomaisena lisähuoneena esimerkiksi etätyöpisteelle. Koko korttelin yhteinen ja suojaisa sisäpiha leikkipaikkoineen on kaikkien asukkaiden käytössä! Päivittäiset palvelut, kuten S-Market, vieressä. Yhtiössä autohalli, jonne kulku suoraan hissillä. Kilon ja Keran juna-asemat kävelyetäisyydellä, sekä bussit kulkevat läheltä. Ilmoituksen kuvat huoneistoa vastaavasta asunnosta. Huomioithan, että näkymät vaihtelevat kerroksien välillä. Voit vuokrata asunnon verkosta tai täyttämällä asuntohakemuksen. Lisätietoja välittäjältä sähköpostitse. Yleisimpiin vuokraukseen liittyvissä asioissa voit olla yhteydessä asiakaspalveluumme p. 030 609 5555, arkisin klo 8-16.

Apartment details

Street addressNihtitorpankuja 5 B 88
Floor area57 m²
CityEspoo
DistrictKilo
Floor8/0
Conditionhyvä
Release of the apartmentBecoming available 01.11.25
SaunaNo
Balcony detailsYes, lasitettu, lasitettu
Pets allowedYes
Other terms and conditionsAsukkaan vastuulla ottaa oma kotivakuutus. Vuokralainen tekee oman sähkösopimuksen.
Additional informationsavuton

Equipment of the housing unit

Kitchen equipmentliesi, astianpesukone, jääkaappi
Bathroom equipmentpeilikaappi, pesukoneliitäntä, lattiamateriaali: laatta, seinämateriaali: laatta, lattialämmitys, mukavuuslämmitys asunnon sähköstä
Floor materiallaminaatti
Apartment-specific storage unitYes, irtainvarasto
Walk-in closetYes
Additional informationSavuton huoneisto

Price and costs

Rent / month925 €
Rental deposit 350 € / 925 € depending on contract type
Type of contractOpen ended rental agreement or open ended rental agreement, rental agreement can be terminated at the earliest after 12 months without a contractual penalty
Water charge23 €/person/month

Housing company information

New buildingNo
Housing company nameNihtitorpankuja 5 B - Asunto Oy Espoon Nihtipiha
Building typeASUINKERROSTALO
Built in2015
Number of apartments47
Floors0
LiftYes
Energy classC 2013
Energy certificateNo
Parking spacesAutopaikkoja hallinnoi ulkopuolinen toimija, vuokrattava erikseen
Electric car chargerNo.
Common spacesulkoiluvälinevarasto, sauna
Additional informationsavuton talo, lemmikit sallittu

Location on the map

Are you interested in this apartment?

This apartment is brokered by:

Sara Huuska

Vuokrausneuvottelija

sara.huuska@rettamanagement.fi

Retta Asuntovuokraus, Pääkaupunkiseutu