





















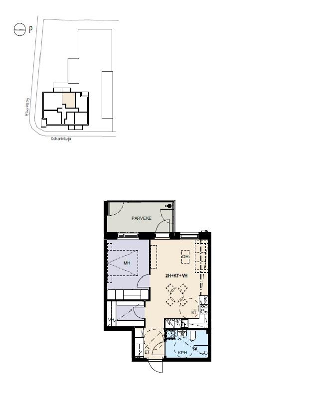
Tyylikäs ja toimiva kaksio, jossa reilun kokoinen vaatehuone tuo arkeen lisämukavuutta ja tilaa. Kodin sydän on avara keittiö-olohuoneen yhdistelmä. Isossa kulmakeittiössä on hyvin säilytys- ja työskentelytilaa sekä modernit, arkea helpottavat kodinkoneet. Makuuhuoneessa on hyvin tilaa sängylle ja säilytystilaa löytyy mukavasti kaapistojen ansiosta. Lisäksi kodin iso vaatehuone pitää huolen siitä, että jokaiselle tavaralle löytyy oma paikkansa. Tyylikkäästi laatoitetussa kylpyhuoneessa on peilikaappi, lasiset suihkuseinät sekä paikka pyykinpesutornille. Tässä kodissa yhdistyvät moderni mukavuus, huolellisesti suunniteltu toiminnallisuus ja ripaus arjen luksusta – kaikki paketissa, jota täydentää ilta-auringossa kylpevä lasitettu länsiparveke. Kiinnostuitko? Tämänkin kodin voit vuokrata verkkokaupastamme tai jätä hakemus, niin lähetämme sinulle asuntotarjouksen sähköpostitse. Yleisissä vuokrausta koskevissa asioissa palvelee asiakaspalvelumme: puh. 030 609 5555 tai asuntovuokraus@rettamanagement.fi
| Street address | Kolsarinkuja 2a A 27 |
| Floor area | 47 m² |
| City | Helsinki |
| District | Konala |
| Floor | 6/7 |
| Release of the apartment | Becoming available 01.12.25 |
| Sauna | No |
| Balcony details | Yes, lasitettu, ilmansuunta: länsi |
| Pets allowed | Yes |
| Other terms and conditions | Asukkaan vastuulla ottaa oma kotivakuutus. Vuokralainen tekee oman sähkösopimuksen. |
| Additional information | savuton |
| Kitchen equipment | liesi, astianpesukone, jää-pakastinkaappi |
| Bathroom equipment | peilikaappi, pesukoneliitäntä, lattiamateriaali: laatta, seinämateriaali: laatta, lattialämmitys |
| Floor material | laminaatti |
| Apartment-specific storage unit | Yes, irtainvarasto |
| Walk-in closet | Yes |
| Additional information | Savuton huoneisto |
| Rent / month | 979 € |
| Rental deposit | 0 € |
| Type of contract | Open ended rental agreement |
| Water charge | 24 €/person/month |
| New building | Yes |
| Housing company name | Kolsarinkuja 2a - Asunto Oy Helsingin Aamuaurinko |
| Building type | ASUINKERROSTALO |
| Built in | 2025 |
| Number of apartments | 35 |
| Floors | 7 |
| Lift | Yes |
| Energy class | A 2018 |
| Energy certificate | Yes |
| Parking spaces | Autopaikkoja hallinnoi ulkopuolinen toimija, vuokrattava erikseen |
| Electric car charger | No. |
| Common spaces | kuivaushuone, kerhohuone, ulkoiluvälinevarasto, sauna, pesutupa |
| Additional information | savuton talo |
Veera Wollsten
Vuokrausneuvottelija
Tel. +358306095579
Veera.Wollsten@rettamanagement.fiRetta Asuntovuokraus, Pääkaupunkiseutu