Espoo, Leppävaara

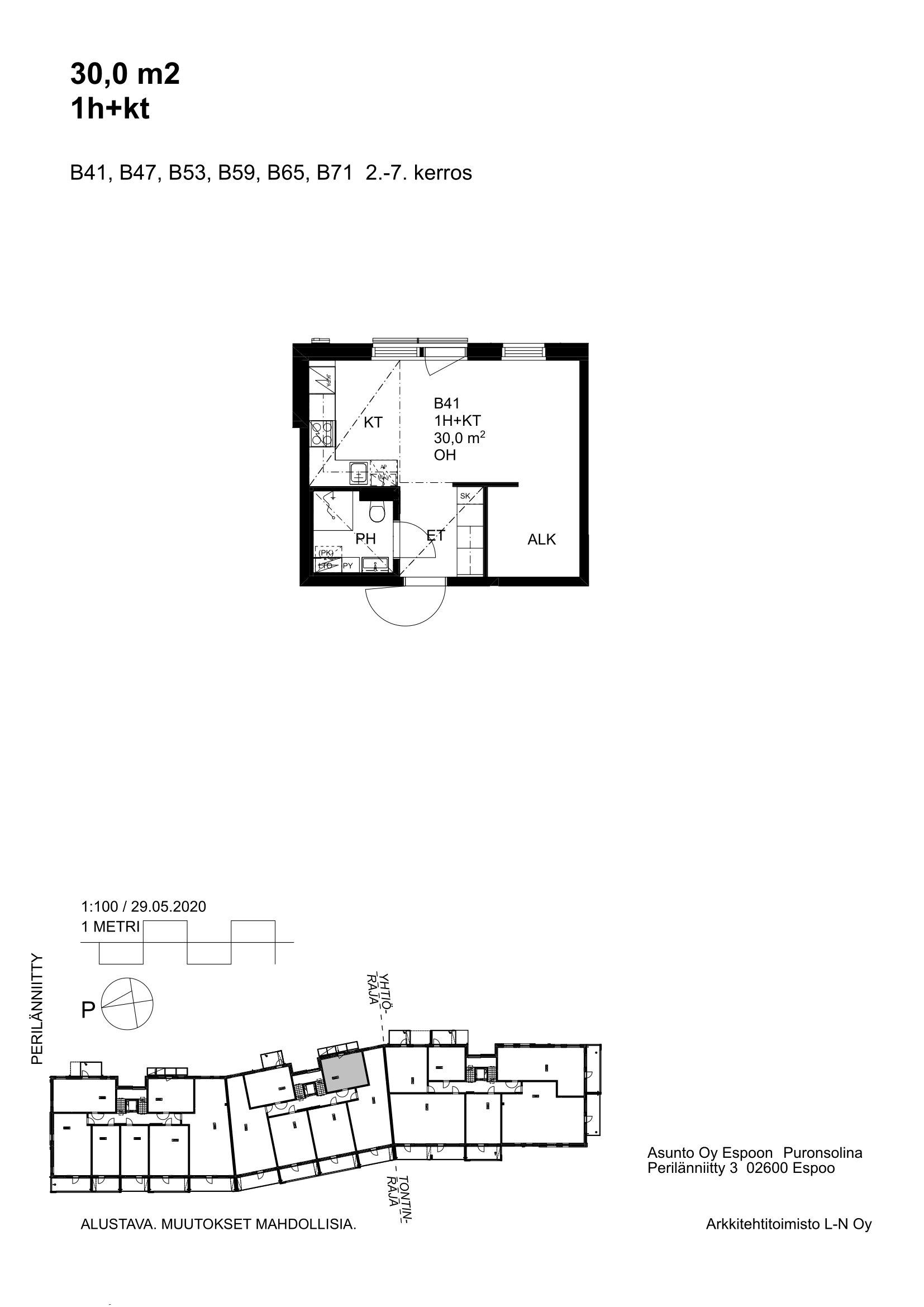
Perilänniitty 3 B 41

Perilänniitty 3 - Asunto Oy Espoon Puronsolina

1h, k, 30

749 €/month

Rental deposit 0 € / 350 € depending on contract type

In the apartment:

  • Broadband included in the rent
  • Apartment-specific storage unit
  • Dishwasher
  • Pets allowed

In the building:

  • Lift
  • Sauna
  • Construction year 2020
  • Loundry room
  • Gym

Apartment description

Valoisa loistavalla pohjalla oleva toisen kerroksen yksiö Perkkaalta. Tämän kodin sydämenä on tyylikäs avokeittiö, joka on varusteltu moderneilla ja laadukkailla kodinkoneilla. Kauniisti laatoitettu kylpyhuone tarjoaa liitännän pyykinpesukoneelle, mukavuuslämmityksen, sekä runsaasti säilytystilaa. Alkoviin saat mukavasti sängyn. Eteisessä hyvin kaappitilaa. Isot ikkunat ja ranskalainen parveke tuo asumiseen viihtyisyyttä ja valoa. Ilmoituksen kuvat huoneistoa vastaavasta asunnosta. Huomioithan, että näkymät vaihtelevat kerroksien välillä. Olisiko tämä uusi kotisi? Voit vuokrata asunnon verkosta tai täyttämällä asuntohakemuksen. Lisätietoja välittäjältä sähköpostitse. Yleisimpiin vuokraukseen liittyvissä asioissa voit olla yhteydessä asiakaspalveluumme p. 030 609 5555, arkisin klo 8-16.

Apartment details

Street addressPerilänniitty 3 B 41
Floor area30 m²
CityEspoo
DistrictLeppävaara
Floor2/0
Release of the apartmentBecoming available 01.12.25
SaunaNo
Balcony detailsNo, Ranskalainen
Pets allowedYes
Other terms and conditionsAsukkaan vastuulla ottaa oma kotivakuutus. Vuokralainen tekee oman sähkösopimuksen.
Additional informationsavuton

Equipment of the housing unit

Kitchen equipmentliesi, astianpesukone, jää-pakastinkaappi
Bathroom equipmentpeilikaappi, pesukoneliitäntä, lattiamateriaali: laatta, seinämateriaali: laatta
Floor materiallaminaatti
Apartment-specific storage unitYes, irtainvarasto
Walk-in closetNo

Price and costs

Rent / month749 €
Rental deposit 0 € / 350 € depending on contract type
Type of contractOpen ended rental agreement or open ended rental agreement, rental agreement can be terminated at the earliest after 12 months without a contractual penalty
Water charge24 €/person/month

Housing company information

New buildingNo
Housing company namePerilänniitty 3 - Asunto Oy Espoon Puronsolina
Building typeASUINKERROSTALO
Built in2020
Number of apartments71
Floors0
LiftYes
Energy certificateYes
Parking spacesAutopaikkoja hallinnoi ulkopuolinen toimija, vuokrattava erikseen
Electric car chargerNo.
Common spaceskerhohuone, ulkoiluvälinevarasto, kuntosali, sauna, pesutupa

Location on the map

This apartment is brokered by:

Matti Lessig-Lajanne

Vuokravälittäjä

Tel. +358306095069

matti.lajanne@rettamanagement.fi

Retta Asuntovuokraus, Pääkaupunkiseutu