Myyrmäessä vuokrattavana kolmannen kerroksen reilun kokoinen yksiö. Asunnolla on erinomainen sijainti, hyvät kulkuyhteydet talon lähettyviltä, sekä kauppakeskus Myyrmanni palveluineen löytyy kävelyetäisyyden päästä. Asunnossa on toimiva pohjaratkaisu, sekä modernit kaluste- ja materiaalivalinnat. Lasitettu parveke lisää asumisviihtyvyyttä ja keittiöstä löytyy astianpesukone helpottamaan arjen askareita. Lemmikit ovat asuntoon tervetulleita. Kysy vuokrattavista autopaikoista lisää välittäjältä. Mikäli kiinnostuit asunnosta, täytäthän asuntohakemuksen Rettan sivuilta. Hyväksytyn hakemuksen jälkeen on mahdollista sopia asunnon esittelystä. Hakemus ei sido mihinkään. Yleisissä asunnonhakuun liittyvissä kysymyksissä voitte olla yhteydessä asiakaspalveluumme, p. 030 609 5555.
| Street address | Kilterinkaari 8 As.18 |
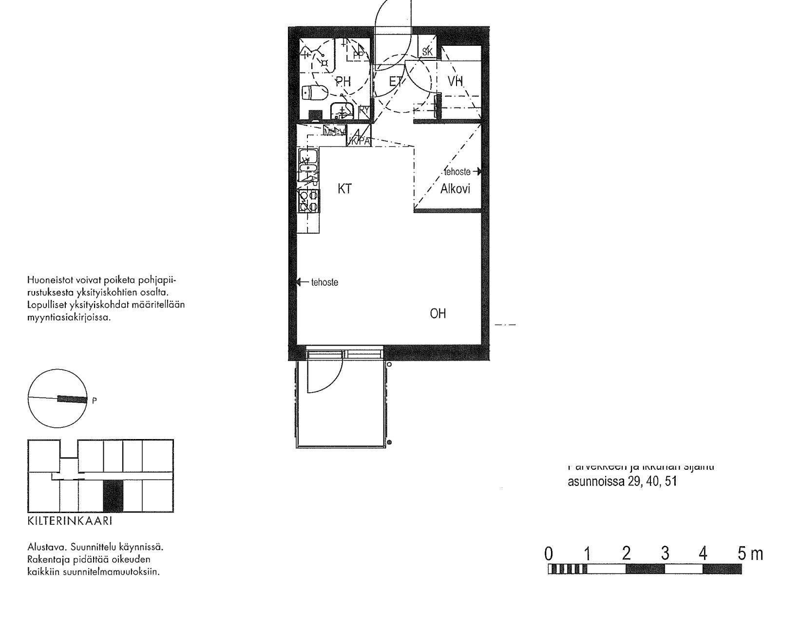
| Floor area | 38 m² |
| City | Vantaa |
| District | Myyrmäki |
| Floor | 3/7 |
| Release of the apartment | Becoming available 01.01.26 |
| Sauna | No |
| Balcony details | Yes, lasitettu |
| Pets allowed | Yes |
| Other terms and conditions | Asukkaan vastuulla ottaa oma kotivakuutus. Vuokralainen tekee oman sähkösopimuksen. |
| Additional information | savuton |
| Kitchen equipment | liesi, astianpesukone, jääkaappi |
| Bathroom equipment | peilikaappi, pesukoneliitäntä, lattiamateriaali: laatta, seinämateriaali: laatta |
| Floor material | parketti |
| Apartment-specific storage unit | Yes, Irtainvarasto |
| Walk-in closet | No |
| Rent / month | 806 € |
| Rental deposit | 806 € |
| Type of contract | Open ended rental agreement, rental agreement can be terminated at the earliest after 6 months without a contractual penalty |
| Water charge | 24 €/person/month |
| New building | No |
| Housing company name | Kilterinkaari 8 - Asunto Oy Vantaan Soma Bertta |
| Building type | ASUINKERROSTALO |
| Built in | 2014 |
| Number of apartments | 14 |
| Floors | 7 |
| Lift | Yes |
| Energy class | B2018 |
| Energy certificate | No |
| Antenna system | Kaapelitelevisiojärjestelmä |
| Parking spaces | Total 37 pcs., vapaana 5 pcs.. |
| Electric car charger | No. |
| Common spaces | ulkoiluvälinevarasto, sauna, pesutupa |
| Additional information | lemmikit sallittu |
Sonja Gupta
Vuokrausneuvottelija
Tel. +358444946420
sonja.gupta@rettamanagement.fiRetta Asuntovuokraus, Pääkaupunkiseutu