Lahti, Ankkuri

Taapelikatu 5 A 16

Taapelikatu 5 - Lahden Taapelikatu 5

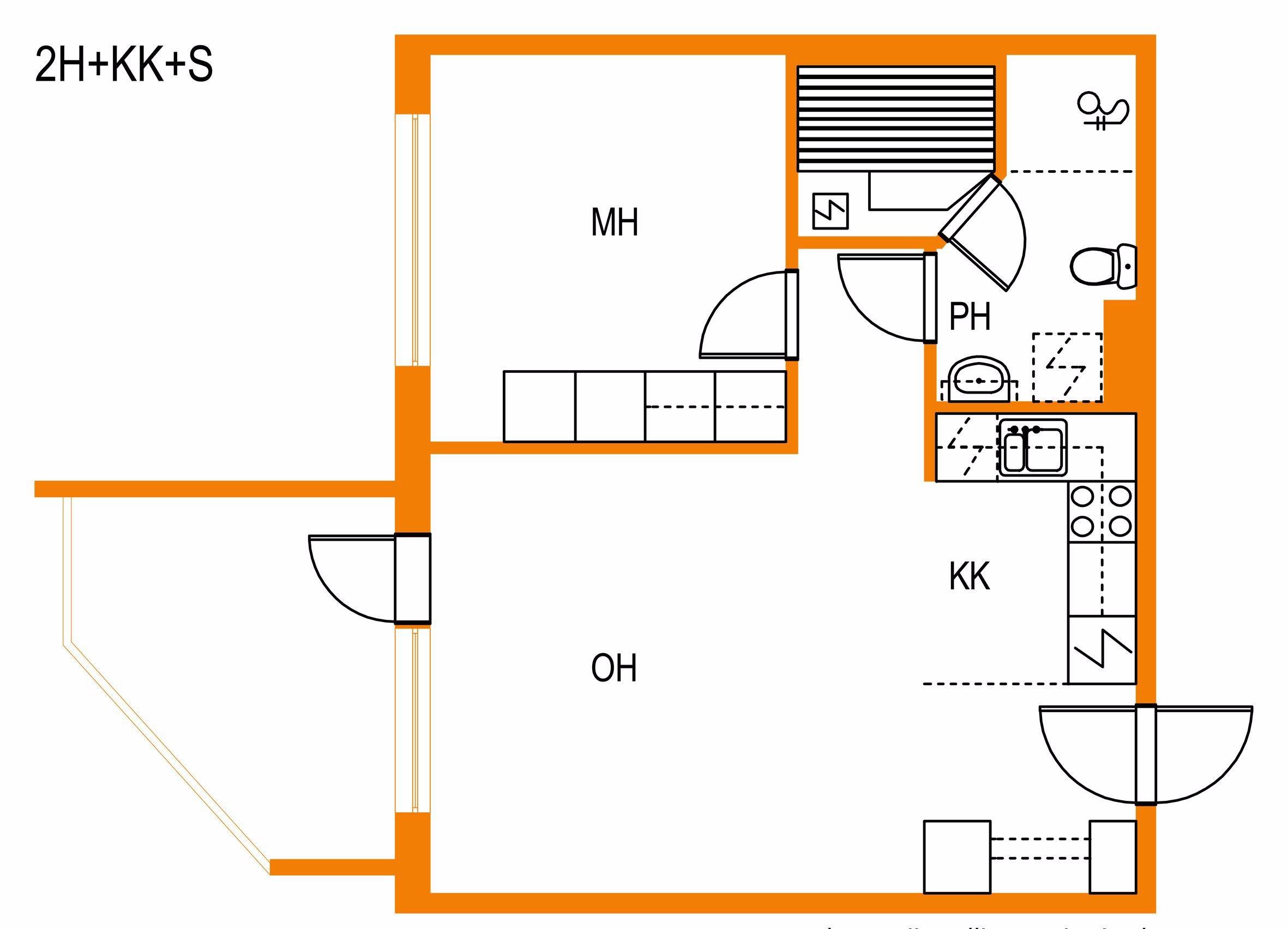
2h, kt, s, parv, 41.5

610 €/month

Rental deposit 250 €

In the apartment:

  • Balcony
  • Sauna
  • Broadband included in the rent
  • Apartment-specific storage unit
  • Dishwasher
  • Pets allowed

In the building:

  • Construction year 1996

Apartment description

Kolmannen kerroksen kaksio parvekkeella ja saunalla! Asunto sijaitsee viihtyisällä alueella lähellä Sibeliustaloa ja satamaa. Asunnolta on lyhyt kävelymatka kauppaan, sekä bussipysäkki aivan asunnon kulmilla. Keittokomerossa kaikki tarpeellinen ruuan laittoon. Olohuoneen puolelta on käynti parvekkeelle, joka tuo lisätilan tuntua asuntoon. Makuuhuoneessa, sekä eteisessä on kaapistot tavaroiden säilytykselle. Kylpyhuoneessa on paikka pyykinpesukoneelle, sekä sauna, joka tuo lisää asuinmukavuutta. Tiedustelut arkisin p. 044 731 0854.

Apartment details

Street addressTaapelikatu 5 A 16
Floor area41.5 m²
CityLahti
DistrictAnkkuri
Floor3/0
Release of the apartmentBecoming available 01.01.26
SaunaYes
Balcony detailsYes
Pets allowedYes
Other terms and conditionsAsukkaan vastuulla ottaa oma kotivakuutus. Vuokralainen tekee oman sähkösopimuksen.
Additional informationsavuton

Equipment of the housing unit

Kitchen equipmentliesi, astianpesukone, jää-pakastinkaappi
Bathroom equipmentpeilikaappi, pesukoneliitäntä, lattiamateriaali: muovimatto, seinämateriaali: laatta
Floor materiallaminaatti
Apartment-specific storage unitYes, Irtaimistovarasto
Walk-in closetNo

Price and costs

Rent / month610 €
Rental deposit250 €
Type of contractOpen ended rental agreement
Water charge22 €/person/month

Housing company information

New buildingNo
Housing company nameTaapelikatu 5 - Lahden Taapelikatu 5
Building typeASUINKERROSTALO
Built in1996
Number of apartments26
Floors0
LiftNo
Energy classD2018
Energy certificateYes
Parking spacesAutopaikkoja hallinnoi ulkopuolinen toimija, vuokrattava erikseen
Electric car chargerNo.
Common spacesulkoiluvälinevarasto
Additional informationlemmikit sallittu

Location on the map

This apartment is brokered by:

Pinja Karvonen

Vuokravälittäjä

pinja.karvonen@rettamanagement.fi

Retta Asuntovuokraus, Lahti