












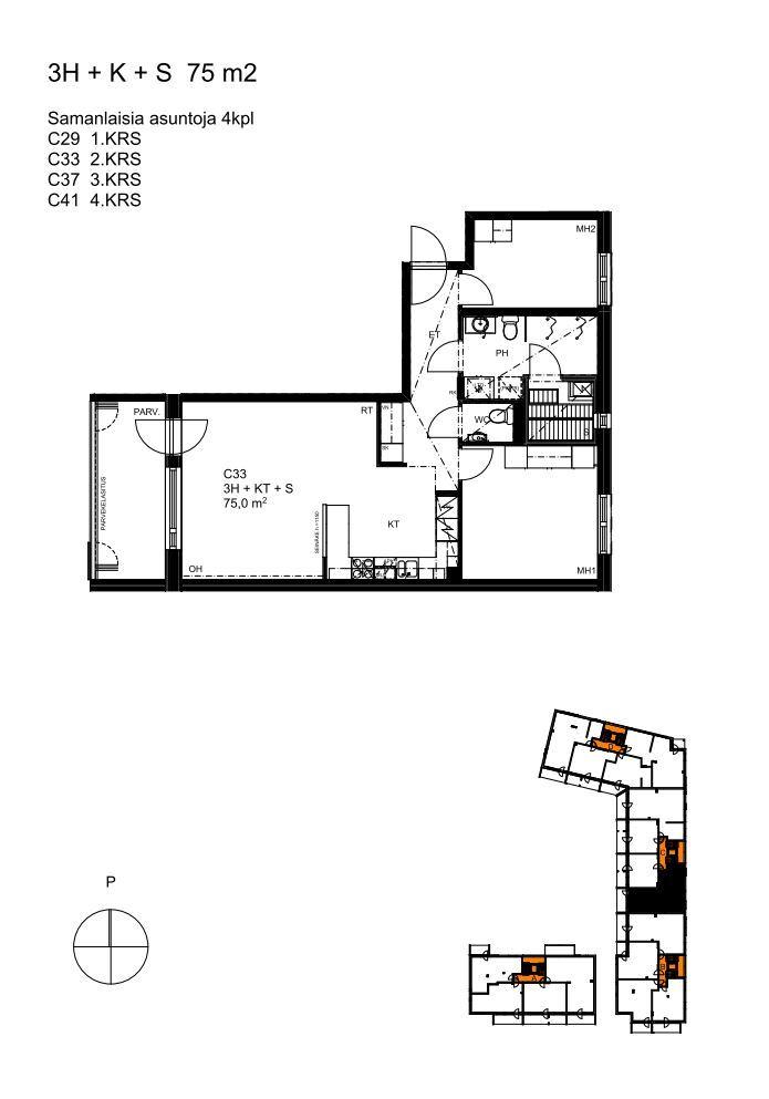
3h, kt, sauna, 75 m²
1259 €/month
Rental deposit 350 € / 1259 € depending on contract type
Tilava läpitalon saunallinen kolmio suositulla alueella Lepolassa Leona-kodin tiedot Viihtyisä perheasunto, jossa on tilavat huoneet, avara yhdistetty keittiö- ja olohuonetila sekä runsaat säilytystilat. Kodin sydän on tyylikäs, nykyaikaisesti varusteltu avokeittiö täyspitkine kylmälaitteineen ja astianpesukoneineen. Madallettu seinä keittiön ja olohuoneen välillä tuo selkeän rajan tilojen välille, mutta yhteys säilyy. Modernissa kylpyhuoneessa on hyvät kodinhoito-, wc- ja pesutilat ja lattiassa miellyttävä sähkötoiminen mukavuuslämmitys. Erillinen wc tuo sujuvuutta erityisesti lapsiperheiden arkiaamuihin. Oman saunan löylyistä pääsee nauttimaan aina halutessaan ja vilvoittelemaan pääsee lasitetulle parvekkeelle, jolta on näkymät ilta-aurinkoon ja sisäpihalle. Kuvat ovat mallikuvia yhtiön toisesta vastaavanlaisesta asunnosta.
| Street address | Tähkä 1 C 41 |
| Floor area | 75 m² |
| City | Järvenpää |
| District | Lepola |
| Floor | 4/4 |
| Release of the apartment | Becoming available 15.01.26 |
| Sauna | Yes |
| Balcony details | Yes, lasitettu, ilmansuunta: länsi |
| Pets allowed | Yes |
| Other terms and conditions | Asukkaan vastuulla ottaa oma kotivakuutus. Vuokralainen tekee oman sähkösopimuksen. |
| Additional information | savuton |
| Kitchen equipment | liesi, lieden tyyppi: keraaminen liesi, lieden selite: liesitaso + erillisuuni, astianpesukone, jääkaappi, pakastin |
| Bathroom equipment | pesukoneliitäntä, lattiamateriaali: laatta, seinämateriaali: laatta, erillinen wc, lattialämmitys, mukavuuslattialämmitys (huoneiston sähköstä) |
| Floor material | laminaatti |
| Apartment-specific storage unit | Yes, irtaimistovarasto |
| Walk-in closet | No |
| Rent / month | 1259 € |
| Rental deposit | 350 € / 1259 € depending on contract type |
| Type of contract | Open ended rental agreement or open ended rental agreement, rental agreement can be terminated at the earliest after 12 months without a contractual penalty |
| Water charge | 25 €/person/month |
| New building | No |
| Housing company name | Tähkä 1 - Asunto Oy Järvenpään Vilja |
| Building type | ASUINKERROSTALO |
| Built in | 2014 |
| Number of apartments | 56 |
| Floors | 4 |
| Lift | Yes |
| Energy certificate | Yes |
| Antenna system | Kaapelitelevisiojärjestelmä |
| Parking spaces | Autopaikkoja hallinnoi ulkopuolinen toimija, vuokrattava erikseen |
| Electric car charger | No. |
| Common spaces | sauna |
| Additional information | lemmikit sallittu |
Annika Rämö
Vuokravälittäjä
Tel. +358406674597
annika.ramo@rettamanagement.fiRetta Asuntovuokraus, Hyvinkää
Tel. 030 609 5555