Vantaa, Simonkylä

Leinikkitie 11 B 28

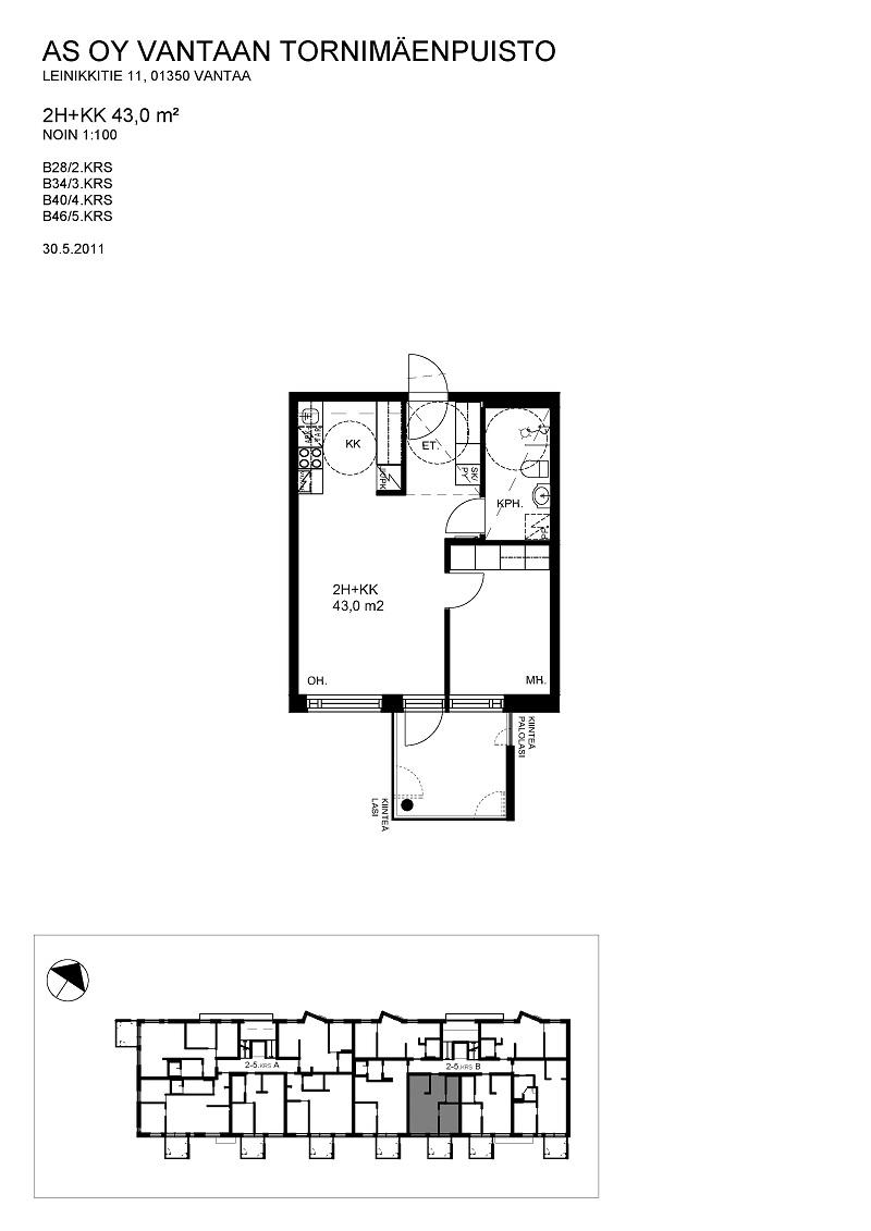
Leinikkitie 11 - Asunto Oy Vantaan Tornimäenpuisto

2h, kk, 43

790 €/month

Rental deposit 350 € / 790 € depending on contract type

In the apartment:

  • Balcony
  • Broadband included in the rent
  • Apartment-specific storage unit
  • Pets allowed

In the building:

  • Number of floors 4
  • Lift
  • Sauna
  • Construction year 2012

Apartment description

Toisen kerroksen kaksio lasitetulla parvekkeella! Tervetuloa tutustumaan tähän viihtyisään ja valoisan pohjaratkaisun omaavaan kaksioon, joka sijaitsee talon toisessa kerroksessa! Tämä koti hurmaa selkeydellään ja arjen toimivuutta tukevilla ratkaisuillaan. Avara ja valoisa olohuone toimii kodin sydämenä – suuret ikkunat tuovat tilaan runsaasti luonnonvaloa, ja parveke lisää avaruuden tuntua. Keittiö on käytännöllisesti suunniteltu ja tarjoaa hyvin säilytys- ja työskentelytilaa niin arkikokkailuun kuin viikonlopun herkkuihin. Makuuhuone tarjoaa rauhallisen paikan levätä, ja tilava vaatekaappi auttaa pitämään kodin järjestyksessä. Kylpyhuoneessa on paikka pyykinpesukoneelle ja kaikki tarpeellinen arjen sujuvuuden takaamiseksi. Tervetuloa ihastumaan – tämä voi olla uusi kotisi! Huom! Kuvat ovat vastaavanlaisesta asunnosta Kiinnostuitko? Voit vuokrata asunnon suoraan verkkokaupan kautta tai täytä asuntohakemus osoitteessa: vuokraus.rettamanagement.fi ja ota yhteyttä kohteen välittäjään sähköpostilla; etunimi.sukunimi@rettamanagement.fi. Yleisimpiin asuntovuokrauksen liittyviin kysymyksiin vastaa myös Retta asiakaspalvelu arkisin 8–16 p. 030 609 5000.

Apartment details

Street addressLeinikkitie 11 B 28
Floor area43 m²
CityVantaa
DistrictSimonkylä
Floor2/4
Release of the apartmentImmediately vacant
SaunaNo
Balcony detailsYes, lasitettu, lasitettu
Pets allowedYes
Other terms and conditionsAsukkaan vastuulla ottaa oma kotivakuutus. Vuokralainen tekee oman sähkösopimuksen.
Additional informationsavuton

Equipment of the housing unit

Kitchen equipmentliesi, astianpesukoneen selite: apk-varaus 45 cm, jää-pakastinkaappi
Bathroom equipmentpeilikaappi, pesukoneliitäntä, lattiamateriaali: laatta, seinämateriaali: laatta, lattialämmitys, mukavuuslämmitys
Floor materiallaminaatti
Apartment-specific storage unitYes, Irtaimistovarasto
Walk-in closetNo
Additional informationSavuton huoneisto

Price and costs

Rent / month790 €
Rental deposit 350 € / 790 € depending on contract type
Type of contractOpen ended rental agreement or open ended rental agreement, rental agreement can be terminated at the earliest after 12 months without a contractual penalty
Water charge23 €/person/month

Housing company information

New buildingNo
Housing company nameLeinikkitie 11 - Asunto Oy Vantaan Tornimäenpuisto
Building typeASUINKERROSTALO
Built in2012
Number of apartments49
Floors4
LiftYes
Energy classB 2013
Energy certificateNo
Antenna systemKaapelitelevisiojärjestelmä
Parking spacesAutopaikkoja hallinnoi ulkopuolinen toimija, vuokrattava erikseen
Electric car chargerNo.
Common spacessauna
Additional informationsavuton talo, lemmikit sallittu

Location on the map

This apartment is brokered by:

Kairit Eenmaa

Vuokravälittäjä

Tel. +358447474855

Kairit.Eenmaa@rettamanagement.fi

Retta Asuntovuokraus, Pääkaupunkiseutu