Espoo, Niittykumpu

Niittykummuntie 12 D 193

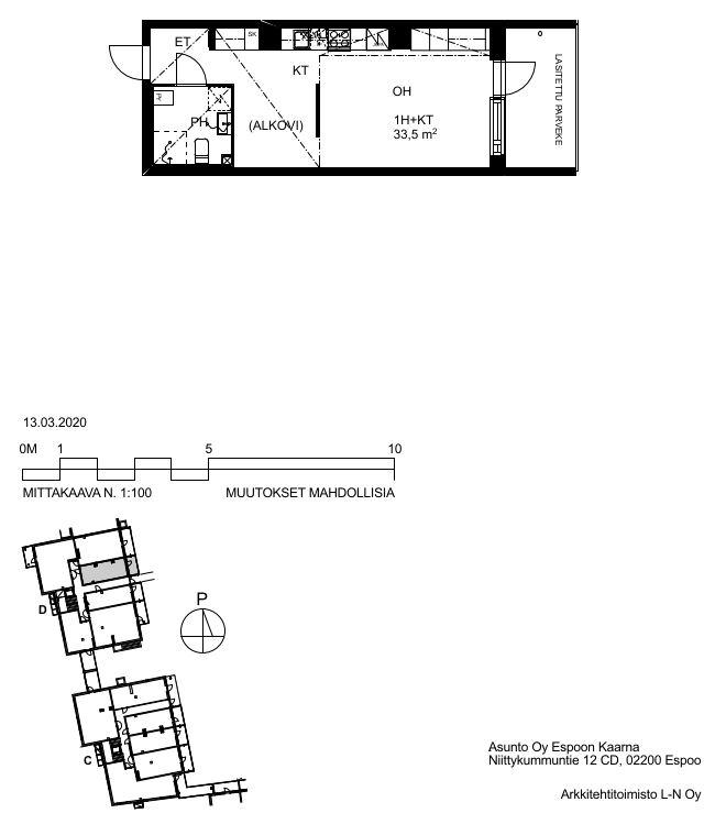
Niittykummuntie 12 - Asunto Oy Espoon Kaarna

1h, kt, parv, 33.5

789 €/month

Rental deposit 0 € / 350 € depending on contract type

In the apartment:

  • Balcony
  • Broadband included in the rent
  • Apartment-specific storage unit
  • Dishwasher
  • Pets allowed

In the building:

  • Lift
  • Sauna
  • Construction year 2022

Apartment description

Tämä koti sijaitsee yhtiön kolmannessa kerroksessa. Keittiössä on jääpakastinkaappi sekä astianpesukone, keraaminen taso, -kalusteuuni. Modernissa laatoitetussa kylpyhuoneessa on peilikaappi, allaskaappi, suihkuseinä ja tilavaraus pyykinpesukoneelle. Alkoviin saat sijoitettua sängyn ja lasitettu huoneiston levyinen parveke antaa lisätilaa aikaisin keväällä myöhäiseen syksyyn! Lemmikit myös tervetulleita. Huom. Kuvat vastaavanlaisesta asunnosta näkymät saattavat vaihdella. Kiinnostuitko? Tämänkin kodin voit verkkokaupastamme tai jätä hakemus, niin lähetämme sinulle asuntotarjouksen sähköpostitse, mikäli voimme tarjota tätä asuntoa. Yleisissä vuokrausta koskevissa asioissa palvelee asiakaspalvelumme: puh. 030 609 5555 tai asuntovuokraus@rettamanagement.fi

Apartment details

Street addressNiittykummuntie 12 D 193
Floor area33.5 m²
CityEspoo
DistrictNiittykumpu
Floor3/0
Release of the apartmentImmediately vacant
SaunaNo
Balcony detailsYes, lasitettu
Pets allowedYes
Other terms and conditionsAsukkaan vastuulla ottaa oma kotivakuutus. Vuokralainen tekee oman sähkösopimuksen.
Additional informationsavuton

Equipment of the housing unit

Kitchen equipmentliesi, lieden tyyppi: keraaminen liesi, lieden selite: keraaminen taso,-kalusteuuni, astianpesukone, jää-pakastinkaappi
Bathroom equipmentpeilikaappi, pesukoneliitäntä, lattiamateriaali: laatta, seinämateriaali: laatta, lattialämmitys, omasta sähköstä
Floor materiallaminaatti
Apartment-specific storage unitYes, irtaimistovarasto
Walk-in closetNo

Price and costs

Rent / month789 €
Rental deposit 0 € / 350 € depending on contract type
Type of contractOpen ended rental agreement or open ended rental agreement, rental agreement can be terminated at the earliest after 11 months without a contractual penalty
Water charge27 €/person/month

Housing company information

New buildingNo
Housing company nameNiittykummuntie 12 - Asunto Oy Espoon Kaarna
Building typeASUINKERROSTALO
Built in2022
Number of apartments76
Floors0
LiftYes
Energy classB 2018
Energy certificateYes
Parking spacesAutopaikkoja hallinnoi ulkopuolinen toimija, vuokrattava erikseen
Electric car chargerNo.
Common spacesulkoiluvälinevarasto, sauna

Location on the map

This apartment is brokered by:

Carla Järventausta

Tiiminvetäjä, asuntovuokrauspalvelut

Tel. +358401597513

carla.jarventausta@rettamanagement.fi

Retta Asuntovuokraus, Pääkaupunkiseutu