Espoo, Leppävaara

Perilänniitty 3 B 49

Perilänniitty 3 - Asunto Oy Espoon Puronsolina

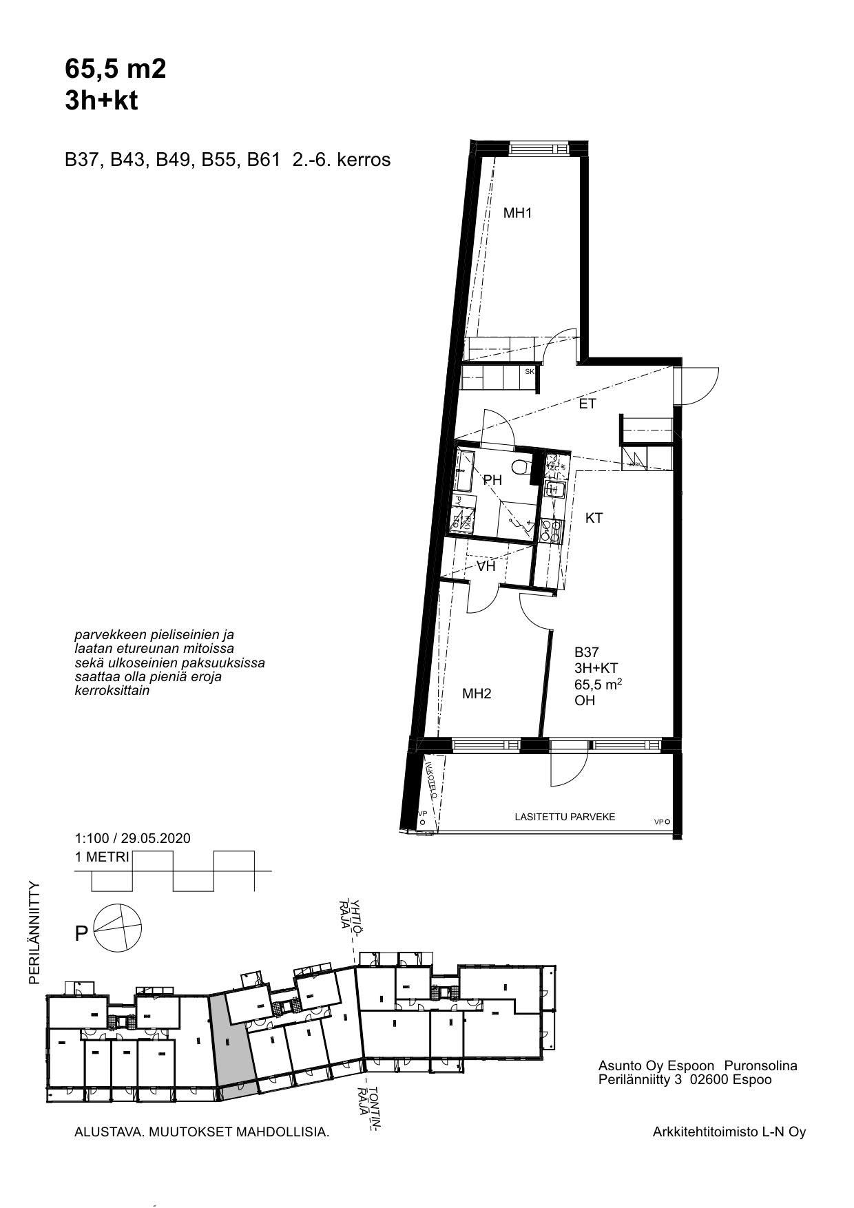
3h, kt, parv, 65.5

1249 €/month

Rental deposit 0 € / 350 € depending on contract type

In the apartment:

  • Balcony
  • Broadband included in the rent
  • Apartment-specific storage unit
  • Dishwasher
  • Pets allowed

In the building:

  • Lift
  • Sauna
  • Construction year 2020
  • Loundry room
  • Gym

Apartment description

Kahden makuuhuoneen läpitalon koti lasitetulla parvekkeella. Moderni, laadukas kolmannen (3) kerroksen koti. Keittiöön saat mukavasti sijoitettua ruokapöydän ja toisen makuuhuoneen yhteydessä on tilava vaatehuone. Huoneiston levyinen lasitettu parveke toimii lisähuoneena pitkälle syksyyn. Vaaleansävyisessä kylpyhuoneessa on keraaminen seinälaatta sekä keraaminen lattialaatta, kääntyvät suihkuseinät. Täysleveälle pyykinpesukoneelle on paikka kylpyhuoneessa, ja säilytystilana toimivat allaslaatikosto sekä pyykkikaappi Asunnon seinäpinnat ovat valkoiset ja lattiassa on laminaatti. Lemmikit toivotetaan myös tervetulleiksi. Kuvat vastaavasta asunnosta, näkymät vaihtelevat kerroksien välillä. Tämänkin kodin voit verkkokaupastamme tai jätä hakemus, niin lähetämme sinulle asuntotarjouksen sähköpostitse, mikäli voimme tarjota tätä asuntoa. Yleisissä vuokrausta koskevissa asioissa palvelee asiakaspalvelumme: puh. 030 609 5555 tai asuntovuokraus@rettamanagement.fi

Apartment details

Street addressPerilänniitty 3 B 49
Floor area65.5 m²
CityEspoo
DistrictLeppävaara
Floor4/0
Release of the apartmentImmediately vacant
SaunaNo
Balcony detailsYes, lasitettu, huoneiston levyinen, tilavava, ilmansuunta: länsi
Pets allowedYes
Other terms and conditionsAsukkaan vastuulla ottaa oma kotivakuutus. Vuokralainen tekee oman sähkösopimuksen.
Additional informationsavuton

Equipment of the housing unit

Kitchen equipmentliesi, lieden tyyppi: keraaminen liesi, lieden selite: keraaminen taso,-kalusteuuni, astianpesukone, astianpesukoneen leveys: 60cm, jää-pakastinkaappi, liesituuletin, paikka mikrolle
Bathroom equipmentpesukoneliitäntä, lattiamateriaali: laatta, seinämateriaali: laatta, lattialämmitys, sähkö, kääntyvät suihkuseinät, allaslaatikosto, isohko valaistu peili , pyykkikaappi
Floor materiallaminaatti
Apartment-specific storage unitYes, Irtainvarasto
Walk-in closetNo

Price and costs

Rent / month1249 €
Rental deposit 0 € / 350 € depending on contract type
Type of contractOpen ended rental agreement or open ended rental agreement, rental agreement can be terminated at the earliest after 12 months without a contractual penalty
Water charge24 €/person/month

Housing company information

New buildingNo
Housing company namePerilänniitty 3 - Asunto Oy Espoon Puronsolina
Building typeASUINKERROSTALO
Built in2020
Number of apartments71
Floors0
LiftYes
Energy classB 2018
Energy certificateYes
Parking spacesAutopaikkoja hallinnoi ulkopuolinen toimija, vuokrattava erikseen
Electric car chargerNo.
Common spaceskerhohuone, ulkoiluvälinevarasto, kuntosali, sauna, pesutupa

Location on the map

This apartment is brokered by:

Matti Lessig-Lajanne

Vuokravälittäjä

Tel. +358306095069

matti.lajanne@rettamanagement.fi

Retta Asuntovuokraus, Pääkaupunkiseutu