Valoisa ja avara kaksio omalla tilavalla parvekkeella. Asunnossa vaaleat pinnat sekä laminaattilattiat. Makuuhuoneesta käynti parvekkeelle. Keittiössä astianpesukone lisäämässä asuinmukavuutta. Laatoitetussa kylpyhuoneessa pesukoneliitäntä. Huom! Huoneistokuvat vastaavanlaisesta asunnosta. Mikäli kiinnostuit asunnosta niin käythän jättämässä asuntohakemuksen www.rettamanagement.fi sivun kautta kyseiseen asuntoon.
| Katuosoite | Salonaukio 2 As 18 |
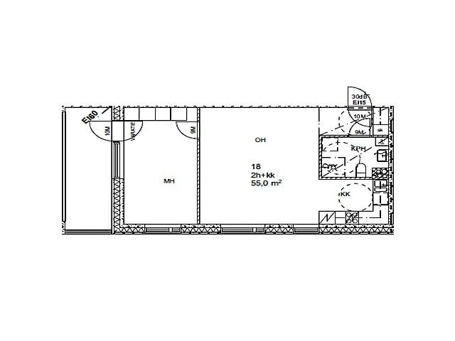
| Pinta-ala | 55 m² |
| Kaupunki | Lahti |
| Kaupunginosa | Tonttila |
| Kerros | 4/5 |
| Kunto | erinomainen |
| Huoneiston vapautuminen | Vapautumassa 01.01.26 |
| Sauna | Ei |
| Parvekkeen tiedot | Kyllä, lasitettu |
| Lemmikit sallittu | Kyllä |
| Muut ehdot | Asukkaan vastuulla ottaa oma kotivakuutus. Vuokralainen tekee oman sähkösopimuksen. |
| Lisätiedot | savuton |
| Keittiön varustelu | liesi, lieden tyyppi: keraaminen liesi, astianpesukone, jää-pakastinkaappi |
| Kylpyhuoneen varustelu | peilikaappi, pesukoneliitäntä, lattiamateriaali: laatta, seinämateriaali: laatta, lattialämmitys, sähkötoiminen |
| Lattiamateriaali | laminaatti |
| Huoneistokohtainen varasto | Kyllä, irtaimistovarasto |
| Vaatehuone | Ei |
| Vuokra / kk | 735 € |
| Vuokravakuus | 735 € |
| Sopimuksen tyyppi | Toistaiseksi voimassaoleva |
| Vesimaksu | 23 €/hlö/kk |
| Uudiskohde | Ei |
| Taloyhtiön nimi | Salonaukio 2 - As Oy Lahden Salonaukio 2 |
| Rakennuksen tyyppi | ASUINKERROSTALO |
| Rakennusvuosi | 2017 |
| Huoneistojen lukumäärä | 30 |
| Kerroksia | 5 |
| Hissi | Kyllä |
| Energialuokka | C |
| Energiatodistus | Kyllä |
| Antennityyppi | Kaapelitelevisiojärjestelmä |
| Autopaikat | Autopaikkoja hallinnoi ulkopuolinen toimija, vuokrattava erikseen |
| Sähköauton latauspiste | Ei. |
| Yhteiset tilat | ulkoiluvälinevarasto, sauna, pesutupa |
| Lisätiedot | lemmikit sallittu |