



















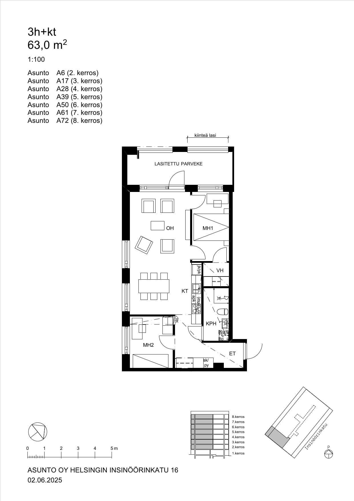
3h, kt, 63 m²
1320 €/kk
Vuokravakuus 0 €
Viidennen kerroksen kulmahuoneisto. Tässä tyylikkäässä ja modernissa kodissa on KT, joka on varustettu laadukkailla kodinkoneilla. Laatoitetussa kylpyhuoneessa on mukavasti säilytystilaa, peilikaappi, allaslaatikosto, sekä kääntyvät suihkuseinät ja tilavaraus pyykinpesukoneelle. Molemmista makuuhuoneista löytyy käytännöllistä säilytystilaa, ja toisessa makuuhuoneessa on lisäksi vaatehuone. Avarassa olohuoneessa on ikkunat kahteen ilmansuuntaan, mikä luo tilaan valoa. Tilaa lisää tarjoaa lasitettu parveke, joka tuo mukanaan mahdollisuuden nauttia kevään ja syksyn lämpimistä hetkistä pidempään. Lemmikit ovat tervetulleita. Ilmoituksen kuvat kuvaavat huoneistoa vastaavaa asuntoa. Huomioithan, että näkymät voivat vaihdella kerroksesta toiseen. Kiinnostuitko? Vuokraa asunto helposti verkosta tai jätä asuntohakemus. Lisätietoja saat välittäjältä sähköpostitse. Yleisissä vuokraukseen liittyvissä asioissa palvelee asiakaspalvelumme: Puh: 030 609 5555
| Katuosoite | Insinöörinkatu 16 A 39 |
| Pinta-ala | 63 m² |
| Kaupunki | Helsinki |
| Kaupunginosa | Herttoniemi |
| Kerros | 5/8 |
| Huoneiston vapautuminen | Vapautumassa 01.04.26 |
| Sauna | Ei |
| Parvekkeen tiedot | Kyllä, lasitettu |
| Lemmikit sallittu | Kyllä |
| Muut ehdot | Asukkaan vastuulla ottaa oma kotivakuutus. Vuokralainen tekee oman sähkösopimuksen. |
| Lisätiedot | savuton |
| Keittiön varustelu | liesi, lieden tyyppi: induktio, lieden selite: induktiotaso,-kalusteuuni, astianpesukone, jää-pakastinkaappi |
| Kylpyhuoneen varustelu | peilikaappi, pesukoneliitäntä, lattiamateriaali: laatta, seinämateriaali: laatta, lattialämmitys, mukavuuslattialämmitys asunnon omasta sähköstä |
| Lattiamateriaali | laminaatti |
| Huoneistokohtainen varasto | Kyllä, irtainvarasto |
| Vaatehuone | Kyllä |
| Vuokra / kk | 1320 € |
| Vuokravakuus | 0 € |
| Sopimuksen tyyppi | Toistaiseksi voimassaoleva |
| Vesimaksu | 27 €/hlö/kk |
| Uudiskohde | Kyllä |
| Taloyhtiön nimi | Insinöörinkatu 16 - Asunto Oy Helsingin Insinöörinkatu 16 |
| Rakennuksen tyyppi | ASUINKERROSTALO |
| Rakennusvuosi | 2025 |
| Huoneistojen lukumäärä | 73 |
| Kerroksia | 8 |
| Hissi | Kyllä |
| Energialuokka | A 2018 |
| Energiatodistus | Kyllä |
| Autopaikat | Autopaikkoja hallinnoi ulkopuolinen toimija, vuokrattava erikseen |
| Sähköauton latauspiste | Kyllä. |
| Yhteiset tilat | kuivaushuone, kerhohuone, sauna, pesutupa |
Taina Mertala
Asuntovuokrauspalvelut
Puh. +358306095171
taina.mertala@rettamanagement.fiRetta Asuntovuokraus, Pääkaupunkiseutu