Asunnossa:

  • Parveke
  • Sauna
  • Laajakaista kuuluu vuokraan
  • Huoneistokohtainen varasto
  • Astianpesukone
  • Lemmikit sallittu

Talossa:

  • Hissi
  • Rakennusvuosi 2009

Asunnon kuvaus

Polkkakujalta löydät tämän saunallisen ja parvekkeellisen kaksion. Huoneiston varustelutasoon kuuluu astianpesukone, laajakaistayhteys sekä kokonaan laatoitettu kylpyhuone. Vesikiertoinen lattialämmitys helpottaa asunnon sisustamista. Polkkakuja sijaitsee mukavalla sijainnilla, ja on päättyvän kadun viimeinen talo. Läheltä löytyy lähikauppa, ja rantaraittiakin pääsee kiertämään lyhyen matkan päästä. Kuokkalan palveluille ei tule pitkää matkaa, mutta keskustaankin pääsee hyviä kulkureittejä pitkin. Jos kiinnostuitte asunnosta, jätättehän hakemuksen osoitteessa https://vuokraus.rettamanagement.fi/asunnot

Asunnon tiedot

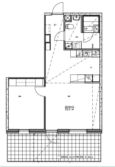
KatuosoitePolkkakuja 5 A 13
Pinta-ala55.5 m²
KaupunkiJyväskylä
KaupunginosaKekkola
Kerros3/0
Kuntohyvä
Huoneiston vapautuminenVapautumassa 01.02.26
SaunaKyllä
Parvekkeen tiedotKyllä, lasitettu, lasitettu
Lemmikit sallittuKyllä
Muut ehdotAsukkaan vastuulla ottaa oma kotivakuutus. Vuokralainen tekee oman sähkösopimuksen.
Lisätiedotsavuton

Asunnon varustelu

Keittiön varusteluliesi, astianpesukone, jää-pakastinkaappi
Kylpyhuoneen varustelupesukoneliitäntä, lattiamateriaali: laatta, seinämateriaali: laatta, lattialämmitys, vesikiertoinen
Lattiamateriaalilaminaatti
Huoneistokohtainen varastoKyllä, Irtaimistovarasto
VaatehuoneEi

Hinta ja kustannukset

Vuokra / kk810 €
Vuokravakuus0 €
Sopimuksen tyyppiToistaiseksi voimassaoleva, vuokrasopimus voi päättyä aikaisintaan 12 kuukauden päästä ilman sopimussakkoa
Vesimaksu25 €/hlö/kk

Taloyhtiön tiedot

UudiskohdeEi
Taloyhtiön nimiPolkkakuja 5 - Asunto Oy Jyväskylän Ametisti
Rakennuksen tyyppiASUINKERROSTALO
Rakennusvuosi2009
Huoneistojen lukumäärä34
Kerroksia0
HissiKyllä
EnergialuokkaC 2018
EnergiatodistusKyllä
AntennityyppiKaapelitelevisiojärjestelmä
AutopaikatAutopaikkoja hallinnoi ulkopuolinen toimija, vuokrattava erikseen
Sähköauton latauspisteEi.
Lisätiedotlemmikit sallittu

Sijainti kartalla

Kohdetta välittää:

Sari Hyvönen

Myyntineuvottelija

sari.hyvonen@rettamanagement.fi

Retta Asuntovuokraus, Jyväskylä