Asunnossa:

  • Parveke
  • Sauna
  • Laajakaista kuuluu vuokraan
  • Huoneistokohtainen varasto
  • Lemmikit sallittu

Talossa:

  • Kerroksia 8
  • Hissi
  • Rakennusvuosi 1995

Asunnon kuvaus

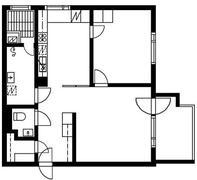
1.3.2026 vapautuva kaksio. Lattia muovimattoa, seinät maalattu. Vaalea keittiö. Tilava kylpyhuone, oma sauna. Erillinen wc. Vaatehuone. Parveke. Raision keskustan monipuoliset palvelut kävelyetäisyydellä. Lisätiedot ja esittelyt Raija Pulli 040 706 7234 tai raija.pulli@rettamanagement.fi

Asunnon tiedot

KatuosoiteKruunuvoudinkatu 4 AS 5
Pinta-ala61.5 m²
KaupunkiRaisio
KaupunginosaKeskusta
Kerros2/8
Huoneiston vapautuminenVapautumassa 01.03.26
SaunaKyllä
Parvekkeen tiedotKyllä
Lemmikit sallittuKyllä
Muut ehdotAsukkaan vastuulla ottaa oma kotivakuutus. Vuokralainen tekee oman sähkösopimuksen.
Lisätiedotsavuton

Asunnon varustelu

Keittiön varusteluliesi, jää-pakastinkaappi
Kylpyhuoneen varustelupesukoneliitäntä, lattiamateriaali: laatta, seinämateriaali: laatta
Lattiamateriaalimuovimatto
Huoneistokohtainen varastoKyllä, häkkivarasto
VaatehuoneEi

Hinta ja kustannukset

Vuokra / kk865 €
Vuokravakuus250 €
Sopimuksen tyyppiToistaiseksi voimassaoleva
Vesimaksu26 €/hlö/kk

Taloyhtiön tiedot

UudiskohdeEi
Taloyhtiön nimiKruunuvoudinkatu 4 - Asunto Oy Raision Kruunuvoudinkatu 4
Rakennuksen tyyppiASUINKERROSTALO
Rakennusvuosi1995
Huoneistojen lukumäärä21
Kerroksia8
HissiKyllä
EnergiatodistusEi
AutopaikatAutopaikkoja hallinnoi ulkopuolinen toimija, vuokrattava erikseen
Sähköauton latauspisteEi.

Sijainti kartalla

Oletko kiinnostunut tästä asunnosta?

Kohdetta välittää:

Raija Pulli

Vuokravälittäjä

raija.pulli@rettamanagement.fi

Retta Asuntovuokraus, Turku

Puh. 030 609 5555