











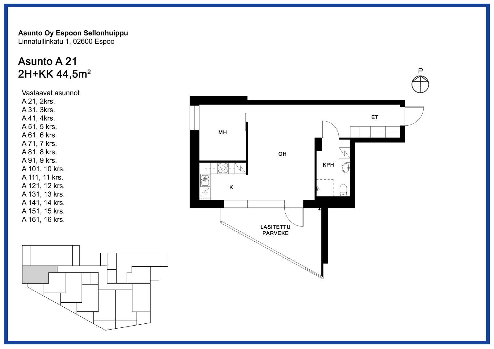
Kodikas toisen kerroksen koti, jonka avokeittiöratkaisu avartaa tilaa entisestään. Laatoitetussa kylpyhuoneessa on peilikaappi sekä tilavaraus pyykinpesukoneelle. Olohuoneessa on tilaa vaikkapa etätyöpisteelle, ruokapöydälle ja sohvaryhmälle. Etelä-Länsi-suuntaan avautuva lasitettu, tilava parveke toimii käytännössä lisähuoneena, sillä sen lasitus mahdollistaa tilan hyödyntämisen pitkälle syksyyn ja jopa ympäri vuoden. Asunnon kuvat on otettu vastaavan asuntotyypin asunnosta, joten pieniä eroja esimerkiksi maisemien osalta voi esiintyä. Mikäli asunnossa on vielä rautaliesi, päivitetään se induktiolieteen viimeistään vuokrauksen yhteydessä. Autopaikkoja on saatavilla yhteistyökumppaneiden kautta, erityisesti Selloparkista. Autopaikat vuokraa huoltoyhtiö, ja paikkoja on heti vapaana. Asuntoon voit valita joustavan toistaiseksi voimassa olevan sopimustyypin, jossa ensimmäinen mahdollinen irtisanomisaika on välittömästi 1kk kuluttua sopimuksen aloituksesta tai hyödyntää kampanjaamme, jossa sitoutumalla asuntoon vuodeksi säästät yhden kokonaisen kuukauden vuokran! Voit vuokrata asunnon verkosta tai täyttämällä asuntohakemuksen https://vuokraus.rettamanagement.fi. Lisätietoja välittäjältä sähköpostitse etunimi.sukunimi@rettamanagement.fi.
| Street address | Linnatullinkatu 1 A 21 |
| Floor area | 44.5 m² |
| City | Espoo |
| District | Leppävaara |
| Floor | 2/20 |
| Condition | hyvä |
| Release of the apartment | Immediately vacant |
| Sauna | No |
| Balcony details | Yes, lasitettu |
| Pets allowed | Yes |
| Other terms and conditions | Asukkaan vastuulla ottaa oma kotivakuutus. Vuokralainen tekee oman sähkösopimuksen. |
| Additional information | savuton |
| Kitchen equipment | liesi, lieden tyyppi: induktio, astianpesukone, jää-pakastinkaappi |
| Bathroom equipment | peilikaappi, pesukoneliitäntä, lattiamateriaali: laatta, seinämateriaali: laatta |
| Floor material | laminaatti |
| Apartment-specific storage unit | Yes, irtaimistovarasto |
| Walk-in closet | No |
| Rent / month | 935 € |
| Rental deposit | 350 € / 350 € depending on contract type |
| Type of contract | Open ended rental agreement or open ended rental agreement, rental agreement can be terminated at the earliest after 12 months without a contractual penalty |
| Campaign information | Ensimmäisen kokonaisen kuukauden vuokra 0€. Vuokraedun saaminen edellyttää 12 kuukauden sitoutumista asuntoon. Etu voimassa uusiin vuokrasopimuksiin. Ei koske käyttökorvauksia (autopaikka, vesimaksu) |
| Water charge | 20 €/person/month |
| New building | No |
| Housing company name | Linnatullinkatu 1 - Asunto Oy Espoon Sellonhuippu |
| Building type | ASUINKERROSTALO |
| Built in | 2011 |
| Number of apartments | 151 |
| Floors | 20 |
| Lift | Yes |
| Energy class | D2013 |
| Energy certificate | No |
| Antenna system | Kaapelitelevisiojärjestelmä |
| Parking spaces | Autopaikkoja hallinnoi ulkopuolinen toimija, vuokrattava erikseen |
| Electric car charger | No. |
| Common spaces | ulkoiluvälinevarasto, sauna, pesutupa |
| Additional information | lemmikit sallittu |
Carla Järventausta
Tiiminvetäjä, asuntovuokrauspalvelut
Tel. +358401597513
carla.jarventausta@rettamanagement.fiRetta Asuntovuokraus, Pääkaupunkiseutu